? Vila spațioasă cu 6 camere, 180 mp utili, curte generoasă și 4 băi — Strada Sfântul Nicolae, zona Olteniței
Confort, intimitate și funcționalitate într-o casă ideală pentru familie
Dacă ești în căutarea unei vile moderne, bine compartimentate, cu curte proprie și poziționare excelentă într-o zonă urbană dar liniștită, această proprietate situată pe strada Sfântul Nicolae, în apropiere de Șoseaua Olteniței, oferă echilibrul perfect între spațiu generos, facilități complete și confortul unei locuințe individuale.
? Detalii tehnice:
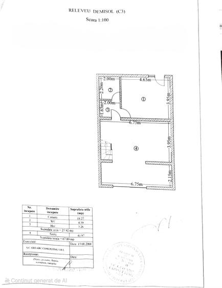
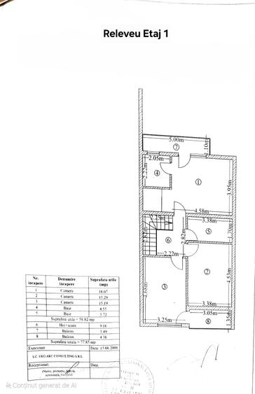
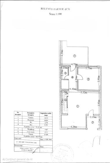
Suprafață construită: 256 mp
Suprafață utilă: 180 mp
Regim de înălțime: Demisol + Parter + Etaj
Compartimentare: 6 camere (ideală pentru familie numeroasă sau birou la domiciliu)
4 băi, distribuite eficient pe fiecare nivel
Curte liberă de 130 mp (60 mp în față – ideală pentru parcare sau amenajare decorativă, 70 mp în spate – perfectă pentru relaxare, grătar sau grădină)
Poartă de acces cu telecomandă
Casă complet izolată pe exterior, eficientă energetic
Toate utilitățile disponibile: apă, gaze, canalizare, electricitate
? Interior modern & versatil
Vila este ideală pentru o familie care își dorește mai mult spațiu și intimitate, dar poate fi adaptată ușor și pentru desfășurarea de activități profesionale. Camerele sunt luminoase și bine proporționate, iar compartimentarea oferă flexibilitate în amenajare.
Spațiul de zi este generos și primitor, perfect pentru reuniuni de familie sau socializare, iar dormitoarele oferă oaze de liniște la finalul zilei. Fiecare etaj este gândit funcțional, cu băi bine poziționate și spații de depozitare bine integrate.
? Locație excelentă – Strada Sfântul Nicolae, zona Olteniței
Situată într-un cartier matur și bine conectat la oraș, vila beneficiază de acces rapid către:
Șoseaua Olteniței, Piața Sudului, Apărătorii Patriei
Mijloace de transport în comun (STB, metrou – stația cea mai apropiată la 10-12 min cu mașina)
Supermarketuri și centre comerciale: Sun Plaza, Grand Arena, Kaufland, Lidl, Profi
Școli, grădinițe, licee și clinici private în proximitate
? Un cadru ideal pentru viața de zi cu zi
Zona este curată și liniștită, cu vecinătate civilizată și acces facil la spații verzi, precum Parcul Tudor Arghezi și Parcul Natural Văcărești (10-12 minute cu mașina). Ideală pentru familii cu copii, iubitori de grădinărit sau cei care doresc un stil de viață echilibrat.
✅ De ce merită să o vezi:
Vilă spațioasă, modernă și complet funcțională
Curte liberă proprie, perfectă pentru relaxare sau activități outdoor
6 camere, 4 băi — versatilitate pentru familie mare sau activități de tip home-office
Poziționare excelentă, cu acces rapid la facilități urbane
Construcție izolată, cu toate utilitățile deja racordate
O alegere ideală atât pentru locuit, cât și pentru investiție pe termen lung
? Contactează-ne acum pentru a programa o vizionare și a descoperi această vilă spațioasă, primitoare și perfect poziționată — locuința pe care o cauți s-ar putea să fie chiar aici.
Sediul central - Timișoara
Bulevardul Victor Babeș nr. 2, 300230, Timișoara, România
Tel: +40.374.40.44.98 / Fax: +40.256.401.179
Email: suport@imobiliare.ro
Luni - Vineri 08:00 - 20:00
Punct de lucru - București: Iride Business Park, Bld. Dimitrie
Pompeiu 9-9A, Clădirea B2B,
020335, Sector 2, București, România
CONTACT
Sediul central - Timișoara
Bulevardul Victor Babeș nr. 2, 300230, Timișoara, România
Tel: +40.374.40.44.98 / Fax: +40.256.401.179
Email: suport@imobiliare.ro
Luni - Vineri 08:00 - 20:00
Punct de lucru - București: Iride Business Park, Bld. Dimitrie
Pompeiu 9-9A, Clădirea B2B,
020335, Sector 2, București, România
Salvează căutarea ca să primești pe email ultimele anunțuri publicate
Case și vile cu 4+ camere de vânzare în zona Berceni, Sector 4
Cere detalii prin email
*
*
*
*
Detaliile tale de contact vor fi partajate cu Team Business Imob.
Preț total1.532.048 RON (300.643 €)
Costuri cu achiziția54.237 RON
Preț de achiziție1.477.811 RON
Costuri cu achiziția54.237 RON
Comision agenție 2.8%41.379 RON
Onorariu notarial10.641 RON
Taxă înscriere OCPI2.217 RON
Preț de achiziție1.477.811 RON
Preț locuință1.477.811 RON
TVA 0%Inclus în prețul cerut
Cost total281.513 RON (55.243 €)
Avans (15%)221.672 RON
Cost achitat în prima lună3.260 RON
Costuri cu achiziția56.581 RON
Cost achitat în prima lună3.260 RON
Comision analiză dosar
400 RON - 900 RON
Taxă evaluare imobil(până la)
900 RON
Rata lunară (variabilă)6.583 RON
Asigurare anuală imobil1.478 RON
Arhivă electronică102 RON
Poliță PAD130 RON
Asigurare de viață/lună Costul este variabil. În funcție de banca aleasă, procentul variază între 0.0259% și 0.035% din soldul creditului.
Costuri cu achiziția56.581 RON
Comision agenție 2.8%41.379 RON
Onorariu notarial10.641 RON
Taxă întabulare OCPI2.217 RON
Autentificare contract credit2.344 RON
Preț de achiziție1.477.811 RON
Preț locuință1.477.811 RON
TVA 0%Inclus în prețul cerut
Preț de achiziție1.477.811 RON
Preț locuință1.477.811 RON
TVA 0%
Inclus în prețul cerut
Avans minim871.399 RON
Credit pe 30 de ani606.412 RON
Cost achitat în prima lună
Taxa evaluare imobil(până la)
900 RON
Rata lunară (variabilă)4.261 RON
Depozit colateral12.783 RON
Comision de garantare FNGCIMM123 RON
Asigurare anuală imobil1.478 RON
Poliță PAD130 RON
Tarif arhivă electronică102 RON
Costuri adiționale1.618 RON + taxe notariale
Asigurare viață și complexă (opțională)Costul este variabil. În funcție de banca aleasă, procentul variază între 0.0259% și 0.035% din soldul creditului
Onorariu notarialconform tarif notarial
Taxă întabulare OCPI1.618 RON
i
Toate valorile de mai sus sunt estimative și nu reprezintă în mod obligatoriu costurile exacte pe care le veți primi de la companiile/instituțiile prin care veți încheia tranzacția.