3

Consolidated and Restored Villa, Aviatorilor – Kiseleff Park

12.000 € / lună

Aviatorilor, București

Nr. cam.:
10
Sup. utilă:
445 mp
Sup. teren:
431 mp
Tip prop.:
Individuală
  • • Locație exactă

Descriere casă

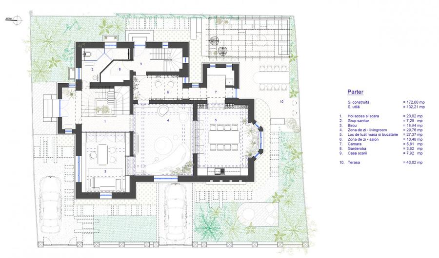
The property is located in the Aviatorilor District, one of the most exclusive and emblematic areas of Bucharest. Just 150 m from the Aviators’ Statue, a few steps from Herastrau Park and the Aviatorilor metro station. General Features Architecture: Authentic Neo-Romanian style, fully restored and reinforced, with refurbished original decorative elements Year of construction: 1927, with an extension added in 1940 Restoration & reinforcement: 2023–2025 (building permit no. 172/21224) Total usable area: 445 sqm + 21 sqm terraces Land: 431 sqm Height regime: Basement + Ground Floor + First Floor + Attic Ceiling height: 4 m on the ground and first floors Versatile Functionality Thanks to its architecture and structure, the property is suitable for both residential and commercial use, including: Prestigious private residence Representative company headquarters Boutique clinic / premium medical office Offices, embassy, or showroom The plans and renderings shown in this presentation were created for a residential scenario and include the following proposed layout: Basement: Bedroom with bathroom for live-in staff Laundry room Gym room Main kitchen for cooking Storage room and technical space Ground Floor: Entrance vestibule with wardrobe and guest bathroom Office room Living room with dining area and ground-floor kitchenette Storage room First Floor: Master bedroom with separate walk-in closet and en-suite bathroom (free-standing tub and shower) + two terraces Two secondary bedrooms and a second fully equipped bathroom (bathtub + shower) Attic: An area that can function independently, configured with: Office Kitchen Living area Two bedrooms Two bathrooms (each with shower) Garden Area: Arranged with: 2 parking spaces Relaxation area with sofas, table, and barbecue space Technical Details & Premium Materials Roof: Fully rebuilt with Jacobi Walter ceramic tiles Structure: Complete reinforcement and new waterproofing Windows: Triple-layer Nordic wood, triple-glazed 36 mm, MACO hardware Entrance doors: Triple-layered oak, professional finish Main staircase: Fully restored, made of solid wood Advantages of purchasing in “shell” condition Maximum flexibility in choosing the function (residential or commercial) Freedom to customize the interior without additional demolition or modification costs Ideal foundation for a premium interior design tailored to the buyer’s vision A unique property on the Bucharest real estate market, combining historical value, high-quality restoration, and versatile usability.
Citește mai mult Citește mai puțin
Curte 2 Parcări 2 Parcări / Garaje / Parcări subterane

Detalii casă

ID anunț: X5CV1103R Copiat! 274203720 Copiat!
Actualizat în: 23 Februarie 2026
Suprafață construită: 172 mp
Nr. băi: 6
Nr. balcoane / Terase / Logii: 2
Nr. terase: 1
Front stradal: 27 m
Structură rezistență: Beton
Regim înălțime: D+P+1E+M

Utilități

Utilități
Curent Apă Canalizare Gaze
Ușă intrare
Lemn
Ferestre cu geam termopan
Lemn
Diverse
Scară interioară
Alte spații utile
WC Serviciu Anexe Dependințe
Amenajare străzi
Asfaltate Betonate Iluminat stradal Mijloace de transport în comun
Comision
standard

Vecinătăți:

Statuia Aviatorilor, Piata Aviatorilor, Parcul Kiseleff

Disponibilitate proprietate:

imediat

Puncte de interes

Mijloace transport
metro-station
Piata Aviatorilor (M2)
Stații metrou aprox. 544 m
bus-station
Statia Piata Charlles de Gaulle linii : 131,282,301,330,331,335.
Stații autobuz aprox. 570 m
tram-station
Dr. Constantin Caracas
Stații tramvai aprox. 824 m
trolleybus-station
Statie Soseaua Nicolae Titulescu 65, 97, 86
Stații troleibuz aprox. 1651 m
Școală
kindergarten
Gradinita cu program normal ""Ge Ce Pic Englishkinder"
Gradinițe aprox. 360 m
school
Gradinita de copii nr.52
Școli aprox. 374 m
kindergarten
Gradinita de Copii Nr. 52
Gradinițe aprox. 380 m
university
SNSPA
Universități aprox. 1339 m
Recreere
public-square
Piața Aviatorilor
Piețe publice aprox. 114 m
park
Piateta regelui
Parcuri aprox. 298 m
supermarket
Mega Image
Supermarket aprox. 515 m
mall
"METROPLIS CENTER"
Mall aprox. 1318 m

Proprietăți recomandate

Detalii de contact

PLATINUM Real Estate & Arhitecture

Raluca Nicolae Broker Owner

PLATINUM Real Estate & Arhitecture
PRO

Abonează-te la newsletter să fii primul care primește cele mai noi recomandări de proprietăți și sfaturi de la experți.

CONTACT

Creează alertă

Salvează căutarea ca să primești pe email ultimele anunțuri publicate

Case individuale cu 4+ camere de închiriat în zona Aviatorilor, Sector 1