Casa Colentina Doamna Ghica

2.500 € / lună

Colentina, București

Nr. cam.:
9
Sup. utilă:
300 mp
Sup. teren:
168 mp
Tip prop.:
Individuală
  • • Locație aproximativă
  • • Vizionare prin apel video

Descriere casă

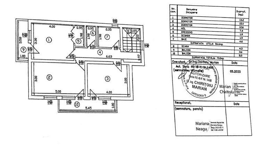
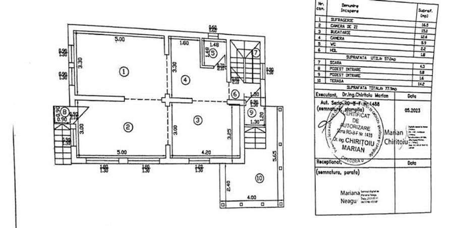
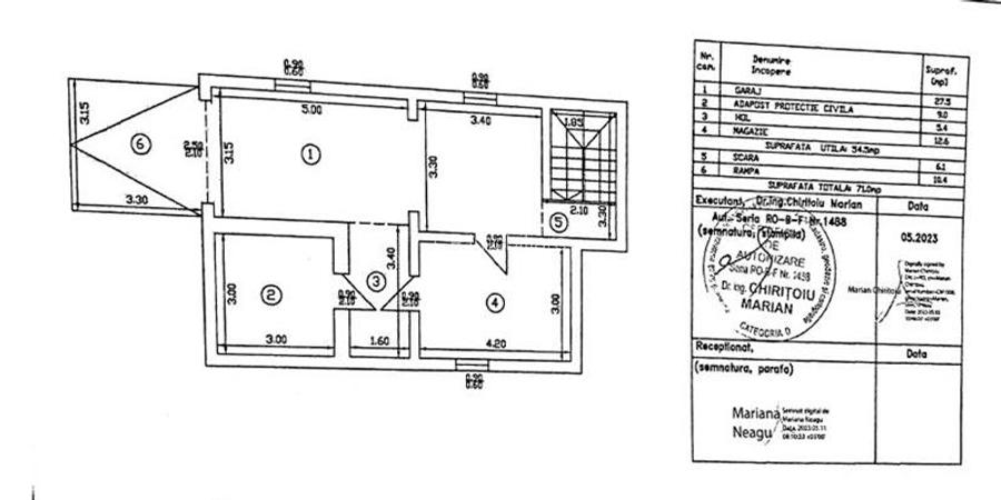
ID intern: 366009 Vila individuala de inchiriere in zona Colentina - Bucuresti, reper Hotel Sir, Pasaj Doamna Ghica, desfasurata pe Demisol, Parter, Etaj si Mansarda, avand 9 camere, 6 dormitoare, suprafata totala construita 350mp, suprafata utila 300 mp si suprafata teren 168 mp. Deschiderea este de 10 ml. Imobilul are amprenta 75 mp, curtea individuala si teren in proprietate libera. Are structura din caramida, este construita in anul 2006, renovat, constructie din caramida, beton armat, lemn, alte, avand 3 bai, 1 bucatarii si 2 balcoane, o terasa. Dotari: acoperis: lindab; bucatarie: da, mobilata, inchisa; calorifere: da; ferestre casa: term. pvc; incalzire casa: centrala termica; izolatii termice: exterior; mobilat: partial, stare buna; pereti: faianta, lavabil; plansee: beton armat; podele: parchet, gresie; structura casa: caramida; tip curte: individuala, teren in proprietate. Pretabil Clinica medicala, locuinta, spatiu de birouri, locuinta birou, spatiu comercial. Vizionarea acestui imobil se face doar în baza semnării unui acord de vizionare conform codului civil, art 2.096-2.102 . Se percepe comision 50%. Politica agentiei este de a optimiza negocierea pretului in raport cu comisionul.
Citește mai mult Citește mai puțin
Mobilat Parțial mobilat Centrală proprie Bine întreținut (Bună)

Detalii casă

ID anunț: X9I6119M6 Copiat! 275230052 Copiat!
Actualizat în: 09 Martie 2026
Suprafață construită: 350 mp
Suprafață desfășurată: 350 mp
Nr. bucătării: 1
Nr. băi: 3
Nr. balcoane / Terase / Logii: 2
Nr. terase: 1
Nr. fronturi stradale: 1
Front stradal: 12 m
Învelitoare acoperiș: Țiglă
An construcție: 2006 (Finalizată)
Structură rezistență: Altele
Etaj: Etaj 1 / 1
Regim înălțime: D+P+1E+M

Utilități

Destinație
Comercial
Jaluzele
Orizontale
Pereți
Faianță Vopsea lavabilă
Podele
Parchet Gresie
Izolații termice
Exterior
Ferestre cu geam termopan
PVC
Bucătărie
Mobilată
Electrocasnice
Aragaz Hotă Frigider Hotă Mașină de spălat
Diverse
Scară interioară Senzor de fum Sistem de alarmă
Alte spații utile
WC Serviciu Dressing Dependințe
Utilități
Apă Curent Gaze Canalizare CATV
Internet
Cablu Fibră optică Wireless
Amenajare străzi
Asfaltate
Comision
50%

Certificat energetic:

Clasa energetică: A

Vecinătăți:

Spatii industriale, Scoala/gradinita, Centru universitar, Restaurant/pub, Mall, Parc, Hotel, Piata, Benzinarie, Fastfood, Cinema, Supermarket, Banca, Zona comerciala, Autobuz

Puncte de interes

Mijloace transport
bus-station
Statia Doamna Ghica, linia 182,282,682
Stații autobuz aprox. 110 m
trolleybus-station
Statia Doamna Ghica, linia 66
Stații troleibuz aprox. 160 m
tram-station
Statia Doamna Ghica, linia 21
Stații tramvai aprox. 181 m
train-station
Gara Obor Bucuresti-EST
Stații tren aprox. 1719 m
Școală
kindergarten
Gradinita numarul 137
Gradinițe aprox. 253 m
school
Scoala Nr. 30 Grigore Ghica Voievod
Școli aprox. 515 m
kindergarten
Gradinita nr. 233
Gradinițe aprox. 606 m
university
Facultatea de Cai Ferate Drumuri si Poduri, Facultate de Geodezie
Universități aprox. 730 m
Recreere
park
Parc
Parcuri aprox. 123 m
sports-ground
Teren sportiv
Terenuri sport aprox. 202 m
supermarket
ED&SA
Supermarket aprox. 264 m
public-square
Piata Bucur Obor
Piețe publice aprox. 1745 m

Proprietăți similare

Casă individuală cu 9 camere în Andronache
2.500 € / lună
București, Andronache
9 camere
330 mp
700 mp teren
Casă individuală cu 9 camere în Ștefan cel Mare
2.499 € / lună
București, Ștefan cel Mare
9 camere
380 mp
500 mp teren
Casă individuală cu 4 camere în Muncii
2.500 € / lună
București, Muncii
4 camere
150 mp
300 mp teren

Detalii de contact

CR Imobiliare

Marius Mandica Broker imobiliar

5.00(3 review-uri)

CR Imobiliare
PRO

Abonează-te la newsletter să fii primul care primește cele mai noi recomandări de proprietăți și sfaturi de la experți.

CONTACT

Creează alertă

Salvează căutarea ca să primești pe email ultimele anunțuri publicate

Case individuale cu 4+ camere de închiriat în zona Colentina, Sector 2