The Class Villas 3, la cheie, gata de mutare, proprietar

1.480 € / lună

Tunari, Județul Ilfov

Nr. cam.:
4
Sup. utilă:
120,9 mp
Sup. teren:
300 mp
Tip prop.:
Individuală
  • • Comision 0%
  • • Locație exactă
  • • Proprietate nelocuită

Descriere casă

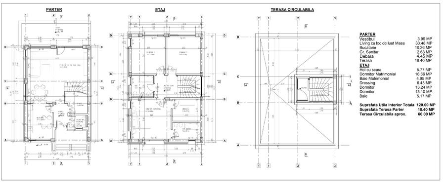
Casă individuală P+1 cu rooftop – The Class Villas 3 | Tunari, Str. Alexandru Ioan Cuza | COMISION 0% Casă individuală finalizată în 2025, predată la cheie, cu mutare imediată. Proprietatea este complet finisată, inclusiv cu corpuri de iluminat montate, pregătită pentru locuire imediată. Detalii generale Regim de înălțime: Parter + 1 Etaj Teren: 300 mp 3 locuri de parcare Grădină amenajată, cu sistem de irigare automatizat Terasă parter + terasă circulabilă tip rooftop Finisaje premium, materiale de calitate superioară Compartimentare și suprafețe interioare Parter Vestibul: 3,95 mp Living + zonă de dining: 33,48 mp Bucătărie: 10,26 mp Grup sanitar: 2,63 mp Debara: 4,45 mp Etaj Hol + scară: 5,77 mp Dormitor matrimonial: 16,66 mp Baie matrimonială: 4,95 mp Dressing: 6,43 mp Dormitor: 13,24 mp Dormitor: 13,10 mp Baie: 5,17 mp Suprafețe Suprafață utilă interioară totală: 120,09 mp Terase Terasă parter: 18,40 mp Terasă circulabilă rooftop: 60 mp Suprafață totală (interior + terase): 198,49 mp Avantaje cheie Casă individuală, intimitate maximă Rooftop de 60 mp, ideal pentru relaxare, socializare sau zonă lounge Grădină proprie amenajată Casă nouă, finalizată, fără costuri suplimentare Mutare imediată Modalități de plată Surse proprii Credit bancar Localizare Poziționare excelentă în Tunari, cu acces rapid către: Școala Americană Zonele de business și rezidențiale din Nordul Capitalei DN1, Aeroport Otopeni, Pipera Siguranță, intimitate și confort Un stil de viață premium într-o comunitate modernă și liniștită.
Citește mai mult Citește mai puțin
3 Parcări

Detalii casă

ID anunț: X7TK0114Q Copiat! 275108542 Copiat!
Actualizat în: 25 Februarie 2026
Suprafață construită: 200 mp
Suprafață desfășurată: 198.49 mp
Nr. bucătării: 1
Nr. băi: 3
Nr. balcoane / Terase / Logii: 1
Nr. terase: 1
Suprafață terase: 17 mp
Nr. fronturi stradale: 1
Front stradal: 10 m
An construcție: 2025 (Finalizată)
Structură rezistență: Beton
Regim înălțime: P+1E+M

Utilități

Destinație
Rezidențial
Comision
0%

Certificat energetic:

Clasa energetică: A

Disponibilitate proprietate:

imediat

Puncte de interes

Școală
school
Scoala Nr. 1 Tunari
Școli aprox. 1296 m
university
School American Bucharest-Voluntari
Universități aprox. 1321 m
school
Scoala Americana
Școli aprox. 1383 m
school
American International School of Bucharest (en)
Școli aprox. 1386 m
Recreere
sports-ground
Teren sportiv
Terenuri sport aprox. 1263 m
park
Parc
Parcuri aprox. 1286 m
sports-ground
Teren sportiv
Terenuri sport aprox. 1432 m
sports-ground
Teren sportiv
Terenuri sport aprox. 1496 m

Proprietăți recomandate

Detalii de contact

Abonează-te la newsletter să fii primul care primește cele mai noi recomandări de proprietăți și sfaturi de la experți.

CONTACT

Creează alertă

Salvează căutarea ca să primești pe email ultimele anunțuri publicate

Case individuale cu 4+ camere de închiriat în Tunari, Județul Ilfov