Casa | 8 Camere | Central | Hostel | Inchiriere *Calea Plevnei*

3.250 € / lună

Calea Plevnei, București

Nr. cam.:
8
Sup. utilă:
203 mp
Sup. teren:
160 mp
Tip prop.:
Individuală
  • • Locație aproximativă

Descriere casă

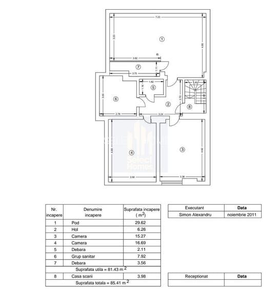
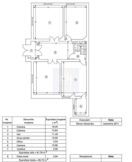
SelectHomes va prezinta spre inchiriere o casa cu 8 camere, dispusa pe 3 niveluri D+P+M, pozitionata in zona Calea Plevnei. Casa a functionat ca si hostel si se poate inchiria impreuna cu cele 32 de paturi suprapuse sau fara, in functie de nevoile chiriasului. Are o suprafata utila de 203mp si este compartimentata astfel: - demisol : bucatarie, camera de luat masa - parter : hol, 3 dormitoare, baie, vestibul, oficiu - mansarda: hol, 3 dormitoare, baie, doua spatii de depozitare Dusurile, chiuvetele si toaletele din cele doua bai sunt in spatii separate, astfel incat 12 persoane le pot folosi concomitent. Fiecare dormitor este echipat cu aer conditionat. Incalzirea se realizeaza prin calorifere si centrala termica proprie, de asemenea exista si un boiler pe gaz/electric pentru asigurarea apei calde a dusurilor si chiuvetelor. Bucatarie este complet utilata. Chiria este de 3250 euro/luna iar conditiile de inchiriere sunt o luna chirie + doua luni garantie, cu contract pe minim 2 ani. Va stam la dispozitie pentru stabilirea unei vizionari sau orice detaliu aditional.
Citește mai mult Citește mai puțin
Parțial mobilat Curte Aer condiționat Calorifere Bine întreținut (Bună)

Detalii casă

ID anunț: XAG311066 Copiat! 275301725 Copiat!
Actualizat în: 17 Martie 2026
Suprafață construită: 110 mp
Suprafață desfășurată: 250 mp
Nr. bucătării: 1
Nr. băi: 2
Front stradal: 3.0 m
Învelitoare acoperiș: Tabla
An construcție: 1930 (Finalizată)
Structură rezistență: Cărămidă
Regim înălțime: S+P+M

Utilități

Pereți
Faianță Var
Podele
Gresie Parchet
Ușă intrare
Metal
Uși interior
Celulare
Ferestre cu geam termopan
PVC
Contorizare
Apometre Contor gaz
Bucătărie
Mobilată Utilată
Electrocasnice
Aragaz Frigider Hotă TV
Diverse
Scară interioară
Alte spații utile
WC Serviciu
Utilități
Curent Apă Canalizare CATV Gaze Telefon
Internet
Cablu
Amenajare străzi
Iluminat stradal Mijloace de transport în comun Asfaltate
Comision
standard

Vecinătăți:

spitalul militar de urgenta Carol Davila

Disponibilitate proprietate:

Imediat

Puncte de interes

Mijloace transport
bus-station
Statia Primaria Sector 6, linia 133, 635
Stații autobuz aprox. 175 m
train-station
Gara Bucuresti Nord
Stații tren aprox. 460 m
metro-station
Metrorex. Stația Gara de Nord 2 (M4)(2000)
Stații metrou aprox. 533 m
trolleybus-station
Statia Pod Cotroceni, linia 93, 62, 96
Stații troleibuz aprox. 587 m
Școală
kindergarten
Gradinita Dreams World
Gradinițe aprox. 194 m
kindergarten
Gradinita Madeleine
Gradinițe aprox. 198 m
university
ICECHIM - Institutul National de Cercetare - Dezvoltare pentru Chimie si Petrochimie
Universități aprox. 292 m
school
Institutul Medico-Militar
Școli aprox. 299 m
Recreere
supermarket
Shop & Go - Mega Image
Supermarket aprox. 385 m
park
Parc
Parcuri aprox. 394 m
hypermarket
Intrarea in caminele C si D din grozavesti
Hipermarket aprox. 455 m
sports-ground
Teren sportiv
Terenuri sport aprox. 504 m

Proprietăți similare

Casă individuală cu 5 camere în Romană
3.000 € / lună
București, Romană
5 camere
190 mp
180 mp teren
Casă individuală cu 7 camere în P-ța Victoriei
3.000 € / lună
București, P-ța Victoriei
7 camere
160 mp
200 mp teren
Casă individuală cu 5 camere în Romană
3.000 € / lună
București, Romană
5 camere
180 mp
170 mp teren

Detalii de contact

SELECT HOMES

Petrut Ochiulet Real Estate Manager

4.75(4 review-uri)

SELECT HOMES
PRO

Abonează-te la newsletter să fii primul care primește cele mai noi recomandări de proprietăți și sfaturi de la experți.

CONTACT

Creează alertă

Salvează căutarea ca să primești pe email ultimele anunțuri publicate

Case individuale cu 4+ camere de închiriat în zona Calea Plevnei, Ultracentral