16

Casa solida de vanzare in Bordenii Mari

59.000 €

Bordenii Mari, Județul Prahova

Nr. cam.:
4
Sup. utilă:
100 mp
Sup. teren:
1.434 mp
Tip prop.:
Individuală
  • • Locație exactă

Descriere casă

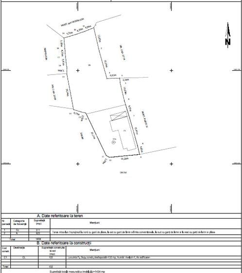
O oportunitate rara intr-o zona linistita si accesibila! Se ofera spre vanzare o casa solida, construita in 1970, cu teren intravilan de 1.434 mp, pozitionata pe colt, cu deschidere impresionanta de 47 m, situata pe o strada asfaltata, linistita si civilizata, ideala pentru familie sau investitie. Detalii proprietate: Suprafata construita: 132 mp Teren intravilan: 1.434 mp Compartimentare: 4 camere spatioase 1 bucatarie 1 baie 2 intrari separate Constructie din caramida pe fundatie de beton, acoperis din tabla – structura solida, durabila. Finisaje: Termopan (partial) Parchet laminat in camere Pereti zugraviti curat Garaj inclus Gradina generoasa – perfecta pentru relaxare, hobby-uri sau agricultura urbana. Utilitati si Avantaje: -Apa curenta -Curent electric -Gaze la poarta -Plan cadastral in lucru – acte clare in curs de actualizare Pret: negociabil – oferta direct de la proprietar! Pentru mai multe detalii sau pentru a programa o vizionare, nu ezitati sa ne contactati. O casa cu suflet, intr-o zona cu potential – o raritate pe piata!
Citește mai mult Citește mai puțin
Parțial mobilat Curte Sobă/teracotă 1 Garaj Bine întreținut (Bună)

Detalii casă

ID anunț: X5V6110AB Copiat! 258620855 Copiat!
Actualizat în: 03 Februarie 2026
Suprafață construită: 132 mp
Nr. bucătării: 1
Nr. băi: 1
Nr. terase: 1
Front stradal: 46 m
An construcție: 1970 (Finalizată)
Structură rezistență: Cărămidă
Regim înălțime: P

Utilități

Pereți
Vopsea lavabilă Faianță
Podele
Parchet Gresie
Ușă intrare
PVC
Uși interior
Celulare
Ferestre cu geam termopan
PVC
Contorizare
Apometre Contor gaz
Bucătărie
Mobilată Utilată
Alte spații utile
Anexe
Utilități
Curent Apă Gaze
Amenajare străzi
Asfaltate
Comision
2.5%

Disponibilitate proprietate:

imediat

Puncte de interes

Școală
school
Scoala Bordeni
Școli aprox. 692 m
school
Scoala Generala 1-8
Școli aprox. 1517 m
Recreere
pub
carciuma din sat
Pub aprox. 1667 m

Detalii despre preț și costuri

Costuri cu achiziția

Fără credit
11.695 RON
Credit ipotecar
12.916 RON
Noua casă
441 RON+ taxe notariale

i

Costuri adiționale mai puțin știute la achiziție: taxe notariale, comisioane etc.

Proprietăți recomandate

Detalii de contact

Truism Imobiliara

Georgiana Ionita

Truism Imobiliara

Abonează-te la newsletter să fii primul care primește cele mai noi recomandări de proprietăți și sfaturi de la experți.

CONTACT

Creează alertă

Salvează căutarea ca să primești pe email ultimele anunțuri publicate

Case individuale cu 4+ camere de vânzare în Județul Prahova