Casă individuală P+l E, în cel mai exclusivist ansamblu privat din Bragadiru

230.000 €

Bragadiru, Județul Ilfov

Nr. cam.:
5
Sup. utilă:
122 mp
Sup. teren:
243 mp
Tip prop.:
Individuală
  • • Comision 0%
  • • Locație exactă

Descriere casă

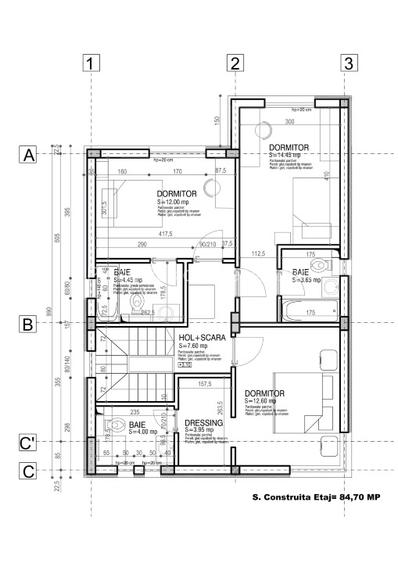
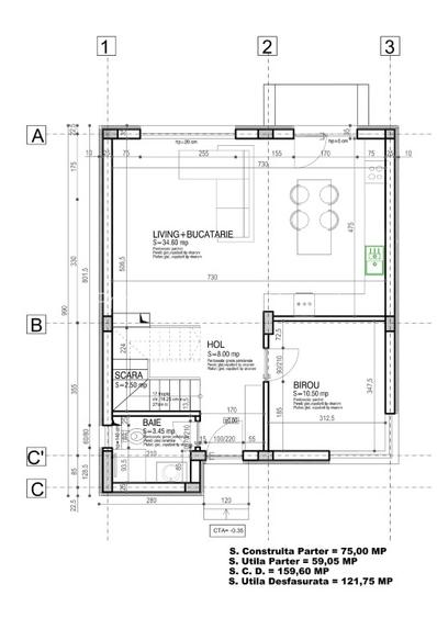
Casa individuala P+1, situata intr-un ansamblu privat exclusivist din Bragadiru, pe strada Safirului (Prelungirea Ghencea), chiar la granita cu Sectorul 5. 📍 Adresa: Str. Safirului, Bragadiru 📐 Suprafata teren: intre 243 si 433 mp ✔️ Casa individuala — nu este tip duplex sau insiruita ✔️ Vanzare direct de la dezvoltator 🚗 Acces facil catre Metrou Raul Doamnei si Centura Bucuresti 🌳 Parc Ghidigeni in apropiere, dotat cu locuri de joaca pentru copii ✔️ Strazi asfaltate ✔️ Drum interior cu latime de 7 m ✔️ 2 locuri de parcare amenajate 🏡 Compartimentare inteligenta si generoasa: Etaj: 3 dormitoare 3 bai matrimoniale Parter: 1 baie cu cabina de dus Birou separat — ideal pentru work from home Living spatios Bucatarie separata Terasa exterioara de 12 mp ✨ Dotari premium si constructie de calitate superioara: Structura pe cadre din beton armat si caramida tip Porotherm (inclusiv compartimentari interioare) Izolatie termica eficienta + placa de beton peste etaj Incalzire in pardoseala la parter si etaj Ferestre mari cu tamplarie Rehau si sticla tripan pentru lumina naturala abundenta Priza pentru incarcare masina electrica Finisaje moderne la alegere, cu buget alocat pentru fiecare camera Obiecte sanitare premium: Grohe, baterii negre, dus walk-in 🔌 Utilitati complete: Apa si canalizare Gaze naturale Energie electrica Fibra optica (internet de mare viteza) 🏪 Facilitati in zona: Kaufland, Lidl, Mega Image, Penny, Pepco, McDonald's Scoli, gradinite, sali de fitness Acces rapid la transportul public STB 📅 Termen de predare: septembrie 2026 📞 Programeaza o vizionare: 🏡 Locuinta perfecta pentru familia ta, intr-un cartier linistit, sigur si bine conectat. Te invitam sa o descoperi! Cel mai vandut ansamblu din zona: berceni domnesti clinceni popesti leordeni chiajna ciorogarla dragomiresti bolintin cornetu magurele varteju mogosoaia chitila bacu joita otopeni tunari
Citește mai mult Citește mai puțin
Nemobilat Aer condiționat Centrală proprie 2 Parcări / Garaje / Parcări subterane

Detalii casă

ID anunț: XV100140B Copiat! 275326883 Copiat!
Actualizat în: 21 Martie 2026
Nr. băi: 2
Nr. balcoane / Terase / Logii: 1
An construcție: 2026
Regim înălțime: P+1E
Curte/Grădină: Curte

Utilități

Utilități
Apă Canalizare Gaze Electricitate CATV Internet
Sistem încălzire
Centrală proprie pe Gaz cu Încălzire prin pardoseală
Servicii imobil
Pază Supraveghere video Administrare
Comision
0%

Puncte de interes

Mijloace transport
bus-station
Statia Celofibrei, linia 302
Stații autobuz aprox. 820 m
bus-station
Statia Campului, linia 302
Stații autobuz aprox. 899 m
bus-station
Independentei
Stații autobuz aprox. 900 m
bus-station
Campului
Stații autobuz aprox. 909 m
Școală
school
Scoala PROINGENIO
Școli aprox. 1530 m
school
ȘCOALA CU CLASELE I-VIII NR. 144
Școli aprox. 1653 m
kindergarten
Watoto
Gradinițe aprox. 1711 m
kindergarten
Gradinita Nr. 218
Gradinițe aprox. 1997 m
Recreere
supermarket
Penny
Supermarket aprox. 893 m
restaurant
Green Restaurant
Restaurant aprox. 1417 m
supermarket
eMAG Supermarket
Supermarket aprox. 1633 m
restaurant
Domino's Pizza
Restaurant aprox. 1675 m

Detalii despre preț și costuri

Costuri cu achiziția

Fără credit
10.798 RON
Credit ipotecar
12.887 RON
Noua casă
1.312 RON+ taxe notariale

i

Costuri adiționale mai puțin știute la achiziție: taxe notariale, comisioane etc.

Proprietăți similare

Casă individuală cu 4 camere în Central
249.900 €
Județul Ilfov, Bragadiru
4 camere
130 mp
390 mp teren
Casă individuală cu 5 camere în Central
215.000 €
Județul Ilfov, Bragadiru
5 camere
170 mp
320 mp teren
Casă individuală cu 4 camere în Central
210.000 €
Județul Ilfov, Bragadiru
4 camere
120 mp
300 mp teren

Detalii de contact

Prime Residence Vanzari

Prime Residence Vanzari

Abonează-te la newsletter să fii primul care primește cele mai noi recomandări de proprietăți și sfaturi de la experți.

CONTACT

Creează alertă

Salvează căutarea ca să primești pe email ultimele anunțuri publicate

Case individuale cu 4+ camere de vânzare în Bragadiru, Județul Ilfov