2

Casa 3 camere, 90 mp, zona Campenesti

169.000 €

Câmpenești, Județul Cluj

Nr. cam.:
3
Sup. utilă:
90 mp
Sup. teren:
490 mp
Tip prop.:
Individuală
  • • Locație aproximativă

Descriere casă

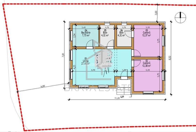
Casă nouă de vânzare – Câmpenești, la intrare în localitate* Oferim spre vânzare o casă individuală, situată într-o zonă liniștită și accesibilă, la intrarea în Câmpenești. Detalii proprietate: - Suprafață construită: 90 mp - Suprafață teren: 490 mp - Compartimentare: • 3 camere (un dormitor cu baie proprie) • 2 băi • Bucătărie separată Caracteristici: - Construcție nouă din cărămidă, izolată cu polistiren de 10 cm - Țiglă din beton - Geamuri termopan Salamander - Tencuită interior - Utilități: apă, gaz, curent, canalizare Se predă cu: - Încălzire în pardoseală + centrală pe gaz - Instalație electrică și sanitară pe poziții - Tencuială + glet Acte: • Casă și teren cu CF, toate actele în regulă Pentru mai multe detalii sau programarea unei vizionări, nu ezitați să ne contactați.
Citește mai mult Citește mai puțin
Zonă rurală
ID anunț: XEGT11014 Copiat! 274303391 Copiat!
Actualizat în: 20 Ianuarie 2026

Utilități

Ușă intrare
Metal
Uși interior
Celulare
Facilități imobil
Acoperiș
Utilități
Curent Apă Canalizare
Amenajare străzi
Iluminat stradal Mijloace de transport în comun Asfaltate Betonate

Disponibilitate proprietate:

Imediat

Puncte de interes

Recreere
restaurant
Han Km 17
Restaurant aprox. 1198 m

Detalii despre preț și costuri

Costuri cu achiziția

Fără credit
8.707 RON
Credit ipotecar
10.537 RON
Noua casă
1.002 RON+ taxe notariale

i

Costuri adiționale mai puțin știute la achiziție: taxe notariale, comisioane etc.

Proprietăți recomandate

Detalii de contact

bravaestate ro

Moca Bogdan Manager

bravaestate ro

Abonează-te la newsletter să fii primul care primește cele mai noi recomandări de proprietăți și sfaturi de la experți.

CONTACT

Creează alertă

Salvează căutarea ca să primești pe email ultimele anunțuri publicate

Case individuale cu 3 camere de vânzare în Câmpenești, Județul Cluj