Casa individuala cu Arhitectura Moderna ,situata in cartierul Borhanci!

690.000 €

Borhanci, Cluj-Napoca

Nr. cam.:
5
Sup. utilă:
208 mp
Sup. teren:
500 mp
Tip prop.:
Individuală
  • • Locație aproximativă
  • • Vizionare prin apel video

Descriere casă

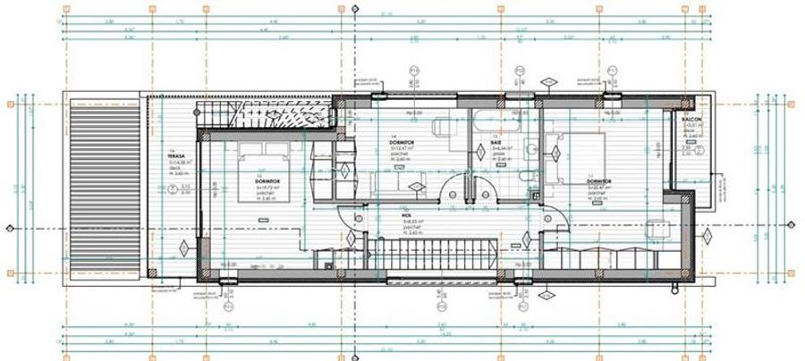
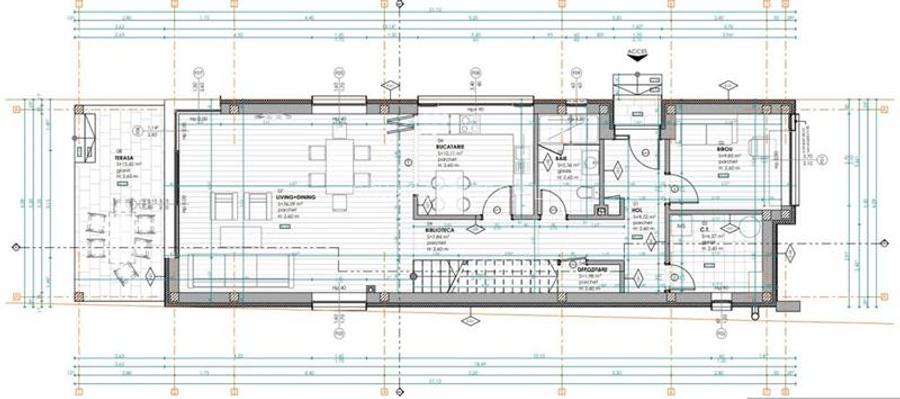
Rower Estate va propune spre Vanzare Casa Individuala cu un regim de inaltime Parter + Etaj +Etaj Retras fiind situata in cartierul Borhanci intr-o zona privata de Case-Vile , avand 5 camere cu o suprafata de 208 mp utili si teren in proprietate cu suprafata totala de 500 mp.Optional se poate achizitiona separat si gradina (inca 500 mp cu CF separat) cu foisor, copaci si imprejmuire Casa este compartimentata astfel : PARTER : 1 living open space,1 bucatarie cu loc de luat masa,1 hol intrare,1 baie,1 camera tehnica,1 terasa . ETAJ : 3 Dormitoare,1 hol casa scarii,1 dressing,1 baie,2 balcoane terasa. ETAJ RETRAS : 1 camera open space. Casa se vinde la stadiul de finisat ,utilat si mobilat complet.Materialele folosite la casa sunt Premium,interiorul fiind configurat de un designer .Casa beneficiaza de Centrala Termica, Incalzire pardoseala, Tamplarie PVC . Casa dispune de Sistem Securitate - Alarma , Automatizare porti acces cu telecomanda,. Gradina este amenajata cu gazon + plante ornamentale, Imprejmuire cu gard, fundatie de beton si grilaj metalic.Modalitati de plata: Cash sau Credit Imobiliar. ID intern: ROW1999
Citește mai mult Citește mai puțin
Mobilat Mobilat Centrală proprie Încălzire prin pardoseală 2 Parcări Bine întreținut (Bună)

Detalii casă

ID anunț: XBUG110JK Copiat! 130043 Copiat!
Actualizat în: 24 Februarie 2026
Suprafață construită: 208 mp
Suprafață desfășurată: 208 mp
Nr. bucătării: 1
Nr. băi: 2
Nr. balcoane / Terase / Logii: 1
Nr. terase: 1
Suprafață terase: 15 mp
Nr. fronturi stradale: 1
Învelitoare acoperiș: Tabla
An construcție: 2016 (Finalizată)
Structură rezistență: Altele
Etaj: Etaj 2 / 2
Regim înălțime: P+2E

Utilități

Destinație
Rezidențial
Pereți
Faianță Vopsea lavabilă
Podele
Parchet Gresie
Izolații termice
Exterior
Ferestre cu geam termopan
PVC
Bucătărie
Utilată Mobilată
Electrocasnice
Aragaz Hotă Frigider Cuptor microunde TV Hotă Mașină de spălat
Diverse
Scară interioară
Alte spații utile
WC Serviciu Dressing
Utilități
Apă Curent Gaze Canalizare Fosa septică CATV
Internet
Cablu Fibră optică Wireless
Amenajare străzi
Asfaltate
Comision
2%

Vecinătăți:

Scoala/gradinita, Restaurant/pub, Hotel, Autobuz

Puncte de interes

Mijloace transport
bus-station
Voievodul Gelu Vest
Stații autobuz aprox. 20 m
bus-station
Voievodul Gelu Est
Stații autobuz aprox. 26 m
bus-station
Violetelor
Stații autobuz aprox. 451 m
bus-station
Theodor Pallady
Stații autobuz aprox. 463 m
Școală
university
Casa Agronomului (en)
Universități aprox. 1741 m
school
Happy Kids Internaional school
Școli aprox. 1927 m
school
Scoala Internationala Cluj - Transilvania College
Școli aprox. 1936 m
kindergarten
Grăd.Dumbrăvioara
Gradinițe aprox. 1989 m
Recreere
park
Parc
Parcuri aprox. 1455 m
sports-ground
Teren sportiv
Terenuri sport aprox. 1513 m
sports-ground
Teren sportiv
Terenuri sport aprox. 1695 m
park
Parcul Detunata
Parcuri aprox. 1824 m

Detalii despre preț și costuri

Costuri cu achiziția

Fără credit
96.879 RON
Credit ipotecar
100.920 RON
Noua casă
3.655 RON+ taxe notariale

i

Costuri adiționale mai puțin știute la achiziție: taxe notariale, comisioane etc.

Proprietăți recomandate

Detalii de contact

ROWER ESTATE S.R.L.

Razvan Suciu Broker Imobiliar

4.33(3 review-uri)

ROWER ESTATE S.R.L.
PRO

Abonează-te la newsletter să fii primul care primește cele mai noi recomandări de proprietăți și sfaturi de la experți.

CONTACT

Creează alertă

Salvează căutarea ca să primești pe email ultimele anunțuri publicate

Case individuale cu 4+ camere de vânzare în zona Borhanci, Cluj-Napoca