Proprietar, dezvoltator imobiliar cu experiență de peste 10 ani ,
Little England Residence Comana vă oferă pentru cumpărare case individuale pe parter cu 3 camere.
Ansamblul Rezidențial,securizat prin poartă automatizată, va fi format din 10 case individuale pe parter ,unde dorim să creăm o comunitate la fel de frumoasă și de liniștită ca și cele de până acum.
De ce am ales Comana?
Am ales Comana în primul rând pentru că este o Oază naturală de verdeață și liniște.
Am ales Comana pentru că drumul nu este niciodată aglomerat.
Am ales locația,vis-a-vis de A Doua Deltă a României,fiind totodată ferită de agitația rurală.
Suprafața de teren este de 500 mp plus cota-parte din drumul de acces cu lățime de 9 ml, ce va fi pavat și securizat cu poartă automatizată.
Casele vor fi predate în perioada iulie 2026- decembrie 2026
Prețul pentru casă *La Cheie*
- Casa Crina - preț 100000 euro :
- Tâmplărie Pvc 5 camere culoare albă cu geam termopan
- Centrală Gaz Ariston în condensație 25 kw
- Radiatoare oțel
- Parchet laminat 8 mm
- Plinte pvc culoare parchet
- Vopsea lavabilă albă
- Obiecte sanitare gama Basic
- Baterii Ferro
- Uși modulare fără geam
- Casa Bianca - preț 120000 euro :
- Tâmplărie Pvc 5 camere culoare Antracit/Maro cu geam tripan
- Centrală Gaz Ariston în condensație 25 kw
- Încălzire în pardoseală
- Parchet SPC -Stone Plastic Compozite 8 mm
- Plinte polimer culoare albă
- Vopsea lavabilă specială
- Obiecte sanitare gama Ideal Standard/Grohe
- Baterii Grohe
- Uși modulare pline/cu geam
- Casa Anca - preț 145000 euro
(independentă energetic)
- Pompe căldură
- Panouri fotovoltaice
- Tâmplărie Pvc 5 camere culoare Antracit/Maro cu geam tripan
- Centrală Gaz Ariston în condensație 25 kw
- Încălzire în pardoseală
- Parchet SPC -Stone Plastic Compozite 8 mm
- Plinte polimer culoare albă
- Vopsea lavabilă specială
- Obiecte sanitare gama Ideal Standard/Grohe
- Baterii Grohe
- Uși modulare pline/cu geam
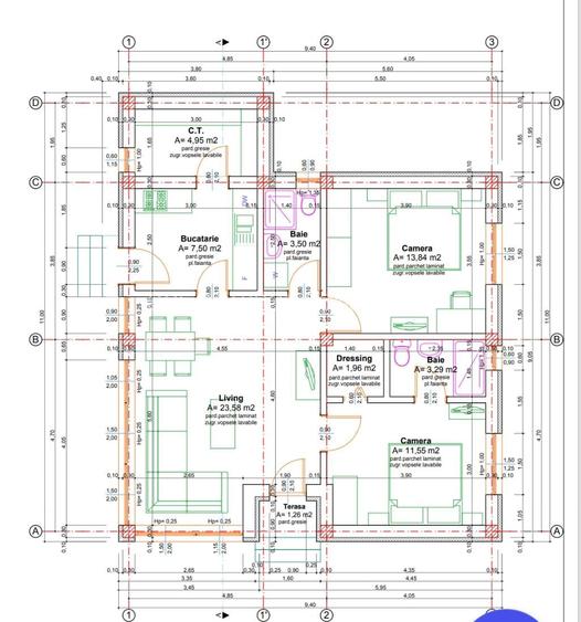
Casa este formată din :
- Cameră de zi - 24 mp
- Bucătărie - 8 mp
- Cameră tehnică -4 mp
- Dormitor 1 - 12.5 mp + Baie proprie cu duș (3.5 mp) și dressing (2 mp )
- Dormitor 2 - 13.5 mp
- Baie cu duș - 3.5 mp
- Vestibul - 2 mp
Structură din beton și zidărie.
Pereți interiori din zidărie
Izolație exterior polistiren 10 cm.
Izolație acoperiș
Centrală proprie .
Ferestre cu geam termopan.
Învelitoare acoperiș din țiglă metalică.
Finisaje la alegere.
Zonă este liniștită,retrasă față de agitația rurală.
Parcul national și rezervația Comana, aflate la doar 30 kilometri de București, sunt unele dintre cele mai pitorești zone ale țării fiind supranumite împreună, a doua Deltă a României. Pentru că zona este încă puțin cunoscută , in ciuda potențialului turistic extraordinar și a opțiunilor de cazare și de agrement de cea mai înaltă calitate , cei ce aleg să locuiască sau să își petreacă weekendul la Comana evită aglomerația din majoritatea destinațiilor populare de weekend.
Colțul de Rai aflat la doar 35 de minute de București. Stațiunea e renumită pentru aerul curat și pentru mâncarea gustoasă
Comana este o localitate cu un bogat patrimoniu istoric și natural, situată în județul Giurgiu, România. Este cunoscută atât pentru legăturile sale istorice, cât și pentru rezervația naturală unică pe care o găzduiește.
Istoria ComaneiComana a fost atestată documentar pentru prima dată în secolul al XV-lea, când Vlad Țepeș, domnitorul Țării Românești, a construit o mănăstire fortificată aici. De-a lungul timpului, Comana a fost un important punct strategic, fiind situat pe drumul ce lega Bucureștiul de Giurgiu. Mănăstirea Comana, distrusă de mai multe ori și reconstruită în secolele următoare, a devenit un centru spiritual și un loc de refugiu în timpul invaziilor otomane.
Obiective turistice în Comana
Parcul Natural Comana: – Este una dintre cele mai mari și mai bine conservate rezervații naturale din sudul României, având o suprafață de peste 25.000 de hectare. – Parcul include Lacul Comana și Delta Neajlovului, o zonă unică ce adăpostește specii rare de plante și animale, inclusiv stufărișuri, păsări și specii de pești pe cale de dispariție. Parcul este comparat adesea cu Delta Dunării și atrage pasionații de natură, observatorii de păsări și iubitorii de aventură.
Mănăstirea Comana: – Fondată inițial de Vlad Țepeș în 1461, mănăstirea a fost reconstruită în secolul al XVI-lea de Radu Șerban și restaurată de mai multe ori. Este cunoscută ca „Mănăstirea Neamurilor” datorită cimitirului militar în care sunt îngropați soldați români și străini căzuți în Primul și Al Doilea Război Mondial. Așezământul monahal este renumit pentru arhitectura sa deosebită, cu influențe bizantine și otomane, și atrage pelerini din întreaga țară.
Aventura Park Comana: – Este un parc de aventură situat în mijlocul naturii, ideal pentru activități în aer liber. Parcul oferă trasee de escaladă, tiroliene, plimbări cu caiacul și alte activități pentru toate vârstele. Este o destinație populară pentru familii și grupuri de prieteni.
Casa Memorială Gellu Naum: – În apropiere de Comana se află și casa memorială dedicată poetului suprarealist Gellu Naum, care a locuit în zonă. Aceasta oferă o perspectivă asupra vieții și operei acestui important scriitor român.
Balta Comana: – Este un loc ideal pentru pescuit, iar zona înconjurătoare oferă trasee pentru drumeții, fotografii de peisaj și plimbări relaxante.
Alte activități și atracții
Comana este ideală pentru iubitorii de natură, fotografie de peisaj, drumeții, ciclism și birdwatching. Traseele prin pădurea Comana și prin Delta Neajlovului sunt foarte apreciate de turiști, iar festivalurile locale sau târgurile cu produse tradiționale din zonă adaugă o notă autentică vizitei.
Fie că dorești să iți cumperi o casă de vacanță sau chiar o locuință permanentă departe de zgomotul și agitația orașului, dar totodată la doar o aruncătură de băț față de oraș(45 minute până la Piața Unirii),acesta este locul cel mai propice, având parte de liniște, natură și multe altele.
Dacă proiectul nostru de casă nu iți satisface toate dorințele , iți putem construi casa pe care o dorești.
Te putem ajuta cu toate etapele realizării casei, de la proiectare până la intabularea construcției.
Sună acum și fă una din cele mai bune investiții pentru tine și familia ta.
Asfaltate
Mijloace de transport în comun
Iluminat stradal
Comision
0%
Vecinătăți:
Parcul Natural Comana
Balta Comana
Pădurea Comana
Mănăstirea Comana
Școli
Liceu
Grădiniță
Magazine
Restaurante
Sediu Poliție
Parc Aventură
Gara Comana
Mun București 27 km
Orașul Giurgiu 33 km
Graniță 37 km
Bulgaria-Ruse 42 km
Detalii despre preț și costuri
Costuri cu achiziția
Fără credit
6.108 RON
Credit ipotecar
7.645 RON
Noua casă
649 RON+ taxe notariale
i
Costuri adiționale mai puțin știute la achiziție: taxe notariale, comisioane etc.
Calculul ipotecarului
Proprietăți recomandate
Pornind de la căutarea ta îți recomandăm următoarele anunțuri
Sediul central - Timișoara
Bulevardul Victor Babeș nr. 2, 300230, Timișoara, România
Tel: +40.374.40.44.98 / Fax: +40.256.401.179
Email: suport@imobiliare.ro
Luni - Vineri 08:00 - 20:00
Punct de lucru - București: Iride Business Park, Bld. Dimitrie
Pompeiu 9-9A, Clădirea B2B,
020335, Sector 2, București, România
CONTACT
Sediul central - Timișoara
Bulevardul Victor Babeș nr. 2, 300230, Timișoara, România
Tel: +40.374.40.44.98 / Fax: +40.256.401.179
Email: suport@imobiliare.ro
Luni - Vineri 08:00 - 20:00
Punct de lucru - București: Iride Business Park, Bld. Dimitrie
Pompeiu 9-9A, Clădirea B2B,
020335, Sector 2, București, România
Sună acum și cere detalii sau programează o vizionare.
Nu rata ocazia să afli mai multe!
Sună acum și cere detalii sau programează o vizionare.
Cere detalii prin email
*
*
*
*
Parcări
Parcare
aprox.
1794 m
Înainte să pleci...
Ești sigur că ai văzut și aceste proprietăți?
115.000 €
Județul Giurgiu, Comana
3 camere
93 mp
508 mp teren
100.000 €
Județul Giurgiu, Comana
3 camere
100 mp
500 mp teren
80.000 €
Județul Giurgiu, Comana
4 camere
80 mp
1.300 mp teren
100.000 €
Județul Giurgiu, Comana
3 camere
100 mp
500 mp teren
179.990 €
Județul Giurgiu, Adunații-Copăceni
4 camere
226 mp
835 mp teren
28.000 €
Județul Giurgiu, Budeni
3 camere
80 mp
1.900 mp teren
Creează alertă
Salvează căutarea ca să primești pe email ultimele anunțuri publicate
Case individuale cu 3 camere de vânzare în Comana, Județul Giurgiu
Cere detalii prin email
*
*
*
*
Detaliile tale de contact vor fi partajate cu Oceanu Bros Construct
Preț total515.518 RON (101.199 €)
Costuri cu achiziția6.108 RON
Preț de achiziție509.410 RON
Costuri cu achiziția6.108 RON
Comision agenție Întreabă agenţia
Onorariu notarial5.344 RON
Taxă înscriere OCPI764 RON
Preț de achiziție509.410 RON
Preț locuință509.410 RON
TVA 0%Inclus în prețul cerut
Cost total86.348 RON (16.950 €)
Avans (15%)76.412 RON
Cost achitat în prima lună2.291 RON
Costuri cu achiziția7.645 RON
Cost achitat în prima lună2.291 RON
Comision analiză dosar
400 RON - 900 RON
Taxă evaluare imobil(până la)
900 RON
Rata lunară (variabilă)2.269 RON
Asigurare anuală imobil509 RON
Arhivă electronică102 RON
Poliță PAD130 RON
Asigurare de viață/lună Costul este variabil. În funcție de banca aleasă, procentul variază între 0.0259% și 0.035% din soldul creditului.
Costuri cu achiziția7.645 RON
Comision agenție Întreabă agenţia
Onorariu notarial5.344 RON
Taxă întabulare OCPI764 RON
Autentificare contract credit1.537 RON
Preț de achiziție509.410 RON
Preț locuință509.410 RON
TVA 0%Inclus în prețul cerut
Preț de achiziție509.410 RON
Preț locuință509.410 RON
TVA 0%
Inclus în prețul cerut
Avans minim76.412 RON
Credit pe 30 de ani432.998 RON
Cost achitat în prima lună
Taxa evaluare imobil(până la)
900 RON
Rata lunară (variabilă)3.042 RON
Depozit colateral9.126 RON
Comision de garantare FNGCIMM42 RON
Asigurare anuală imobil509 RON
Poliță PAD130 RON
Tarif arhivă electronică102 RON
Costuri adiționale649 RON + taxe notariale
Asigurare viață și complexă (opțională)Costul este variabil. În funcție de banca aleasă, procentul variază între 0.0259% și 0.035% din soldul creditului
Onorariu notarialconform tarif notarial
Taxă întabulare OCPI649 RON
i
Toate valorile de mai sus sunt estimative și nu reprezintă în mod obligatoriu costurile exacte pe care le veți primi de la companiile/instituțiile prin care veți încheia tranzacția.