Casa 5 camere 140mp | 0 Comision | Tamasi Corbeanca | finisat

250.000 €

Corbeanca, Județul Ilfov

Nr. cam.:
5
Sup. utilă:
140 mp
Sup. teren:
550 mp
Tip prop.:
Individuală
  • • Comision 0%
  • • Locație exactă

Descriere casă

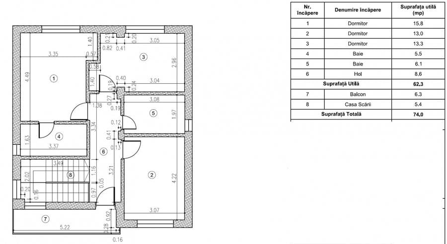
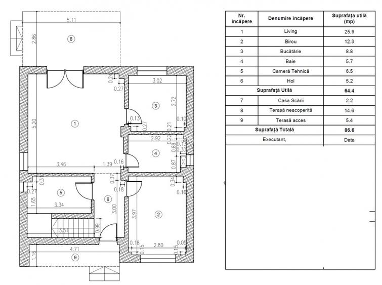
Va oferim pentru achizitie, fara comision, o casa individuala foarte spatioasa localizata in Tamasi Corbeanca pe strada Conacului. Casa se poate livra complet finisata la pretul de 250 000 EUR, tva inclus, in aproximativ 30 de zile. Alternativ, se poate preda la stadiul actual pentru 225 000 EUR (TVA inclus). Asa cum v-am obisnuit: - toate ofertele Monga Imobiliare sunt fara comision din partea cumparatorului - pentru ca iubim transparenta, toate preturile afisate de Monga Imobiliare includ TVA (daca se aplica). Pretul afisat de noi este intotdeauna pretul final pe care il vei achita. Acceseaza Monga Imobiliare (Monga RO) pentru mai mai multe poze si pentru intreg portofoliul nostru de case si apartamente din Otopeni, Tunari, Balotesti, Corbeanca, Pipera si chiar nordul Bucurestiului. Printre punctele forte ale aceste case subliniem curtea foarte generoasa, dar si spatiile interioare mari, ofering in total 5 camere, 4 dormitoare si 3 bai. Locatia este una foarte linistita in zona cu multe case noi. Despre spatiu: Parter: Accesul se face intr-un hol ce comunica cu scara catre etaj, o camera tehnica/ depozitare, o baie si cu o zona de living spatioasa. Aceasta comunica cu bucataria inchis si cu terasa/ curtea. La etaj avem un dormitor matrimonial cu baie, inca doua dormitoare si o baie. Utilitati si climatizare: - conectata la apa, curent si elecricitate. Are fosa septica; canalizarea exista in zona. - centrala proprie cu incalzire prin pardoseala Daca se alege varianta finisata, se pot alege finisajele. Zona este una foarte linisita cu multe case noi si vecini foarte ok. Apeleaza cu incredere la Monga Imobiliare. Suntem alaturi de tine pana la finalizarea tranzactiei si te ajutam sa treci cu incredere si in cunostinta de cauza prin toti pasii necesari. Te putem ajuta in pregatirea documentelor, selectia notarului, obtinerea finantarii, si altele. Te asteptam sa ne contactezi.
Citește mai mult Citește mai puțin
Centrală proprie Încălzire prin pardoseală 2 Parcări 2 Parcări / Garaje / Parcări subterane

Detalii casă

ID anunț: XFHP1104M Copiat! 264949055 Copiat!
Actualizat în: 20 Februarie 2026
Nr. băi: 3
Nr. balcoane / Terase / Logii: 1
An construcție: 2024 (Finalizată)
Regim înălțime: P+1E

Utilități

Utilități
Curent Apă Gaze Fosa septică

Disponibilitate proprietate:

imediat

Puncte de interes

Recreere
sports-ground
Teren sportiv
Terenuri sport aprox. 1027 m
park
Pădurea Tămași
Parcuri aprox. 1639 m

Detalii despre preț și costuri

Costuri cu achiziția

Fără credit
11.485 RON
Credit ipotecar
13.659 RON
Noua casă
1.414 RON+ taxe notariale

i

Costuri adiționale mai puțin știute la achiziție: taxe notariale, comisioane etc.

Proprietăți recomandate

Detalii de contact

MONGA

Razvan Ceapa Managing Partner

5.00(3 review-uri)

MONGA
PRO

Abonează-te la newsletter să fii primul care primește cele mai noi recomandări de proprietăți și sfaturi de la experți.

CONTACT

Creează alertă

Salvează căutarea ca să primești pe email ultimele anunțuri publicate

Case individuale cu 4+ camere de vânzare în Corbeanca, Județul Ilfov