4

Casa 4 camere 120mp | 0 comision | Corbeanca Laguna Albastra | 280mp teren

240.000 €

Corbeanca, Județul Ilfov

Nr. cam.:
4
Sup. utilă:
120 mp
Sup. teren:
280 mp
Tip prop.:
Individuală
  • • Comision 0%
  • • Locație aproximativă

Descriere casă

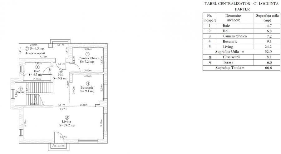
0 comision. Va oferim spre achizitie fara comision o casa individuala cu 4 camere si 120mp localizata in Corbeanca pe strada Laguna Albastra, intr-o zona foarte linistita. Casa de la strada cu teren de 280mp se vinde la pretul de 240 000 EUR (nu se adauga TVA). Casa din plan secund si teren de 480mp se vinde la pretul de 255 000 EUR (nu se adauga TVA). Pretul mai poate fi negociat. Asa cum v-am obisnuit: - toate ofertele Monga Imobiliare sunt fara comision din partea cumparatorului - pentru ca iubim transparenta, toate preturile afisate de Monga Imobiliare includ TVA (daca se aplica). Pretul afisat de noi este intotdeauna pretul final pe care il vei achita. Acceseaza Monga Imobiliare (Monga RO) pentru mai mai multe poze si pentru intreg portofoliul nostru de case si apartamente din Otopeni, Tunari, Balotesti, Corbeanca, Pipera si chiar nordul Bucurestiului. Punctele forte al acestei case il reprezinta compartimentarea eficienta si functionala, finisajele de calitate si zona foarte linistita. Despre spatiu: La parter, accesul se face intr-un hol ce comunica cu o baie, camera tehnica spatioasa ce permite spatiu amplu de depozitare, scara, si o zona spatioasa cu living, dining si bucatarie deschisa. Din living se poate accesa curtea. La etaj avem dormitorul matrimonial cu dressing si baie, inca o baie si doua dormitoare (dintre care unul cu balcon) Alte detalii: - incalzire prin pardoseala - centrala pe gaz - tamplari tip Salamander cu geam Tripan - priza pentru incarcare masina elecctrica - curte amenajata cu gazon si sistem de irigatie automat Casa este localizata intr-o zona foarte linistita, cu acces rapid catre DNA1 Value Center, DN1 si Bucuresti. Apeleaza cu incredere la Monga Imobiliare. Suntem alaturi de tine pana la finalizarea tranzactiei si te ajutam sa treci cu incredere si in cunostinta de cauza prin toti pasii necesari. Te putem ajuta in pregatirea documentelor, selectia notarului, obtinerea finantarii, si altele. Te asteptam sa ne contactezi.
Citește mai mult Citește mai puțin
Centrală proprie Încălzire prin pardoseală 2 Parcări

Detalii casă

ID anunț: XFHP11048 Copiat! 261977215 Copiat!
Actualizat în: 13 Februarie 2026
Suprafață construită: 168 mp
Nr. bucătării: 1
Nr. băi: 3
Nr. terase: 1
Regim înălțime: P+1E

Utilități

Utilități
Curent Apă Canalizare Gaze
Amenajare străzi
Asfaltate

Disponibilitate proprietate:

imediat

Puncte de interes

Școală
school
Scoala Nr. 1 Corbeanca
Școli aprox. 733 m
school
Scoala Nr 1
Școli aprox. 925 m
school
Scoala generala
Școli aprox. 928 m
Recreere
park
Pădurea Corbeanca
Parcuri aprox. 692 m
park
Pădurea Tămași
Parcuri aprox. 995 m
sports-ground
Teren sportiv
Terenuri sport aprox. 1462 m

Detalii despre preț și costuri

Costuri cu achiziția

Fără credit
11.145 RON
Credit ipotecar
13.277 RON
Noua casă
1.363 RON+ taxe notariale

i

Costuri adiționale mai puțin știute la achiziție: taxe notariale, comisioane etc.

Proprietăți recomandate

Detalii de contact

MONGA

Razvan Ceapa Managing Partner

5.00(3 review-uri)

MONGA
PRO

Abonează-te la newsletter să fii primul care primește cele mai noi recomandări de proprietăți și sfaturi de la experți.

CONTACT

Creează alertă

Salvează căutarea ca să primești pe email ultimele anunțuri publicate

Case individuale cu 4+ camere de vânzare în Corbeanca, Județul Ilfov