18

Casa 4 Camere 190mp | Corbeanca | 0 Comision | Laguna Albastra | teren 640mp

295.000 €

Corbeanca, Județul Ilfov

Nr. cam.:
4
Sup. utilă:
190 mp
Sup. teren:
640 mp
Tip prop.:
Individuală
  • • Comision 0%
  • • Locație exactă

Descriere casă

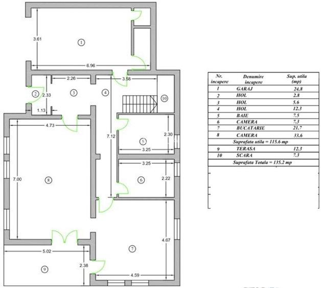
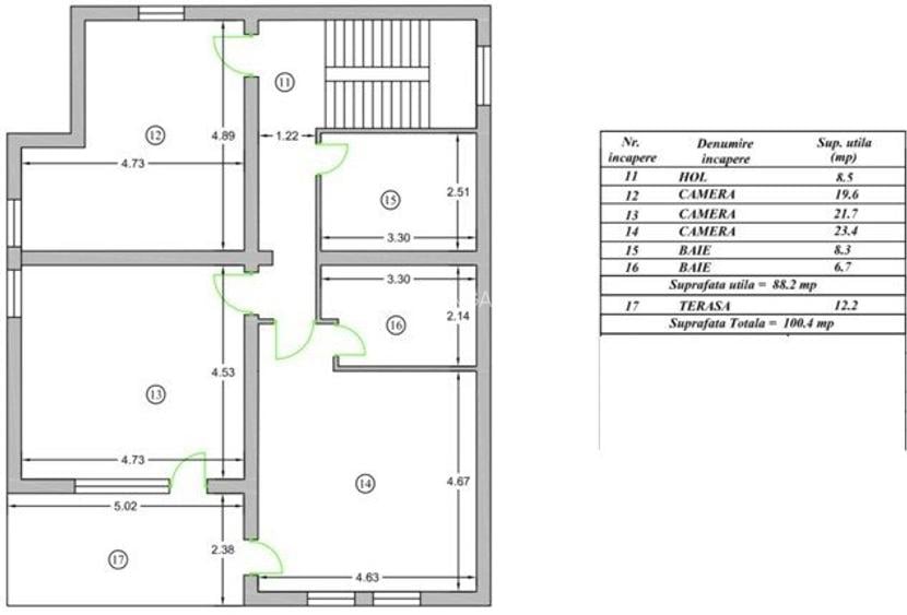
Va oferim pentru achizitie fara comision o casa individuala foarte spatioasa si curte mare, localizata in Corbeanca in zona Laguna Albastra. Un punct forte al acestei case este curtea foarte mare de 600mp dar si spatiul intern generos. Aceasta casa va ofera un spatiu adevarat linistit intr-o zona deosebita a comunei Corbeanca. Asa cum v-am obisnuit: - toate ofertele Monga Imobiliare sunt fara comision din partea cumparatorului - pentru ca iubim transparenta, toate preturile afisate de Monga Imobiliare includ TVA (daca se aplica). Pretul afisat de noi este intotdeauna pretul final pe care il vei achita. Acceseaza Monga Imobiliare (Monga RO) pentru mai mai multe poze si pentru intreg portofoliul nostru de case si apartamente din Otopeni, Tunari, Balotesti, Corbeanca, Pipera si chiar nordul Bucurestiului. Despre spatiu: Parter: accesul se face intr-un mic hol. Acesta comunica cu Living-ul spatios si cu un al doilea hol. Din al doilea hol se acceseaza garajul incalzit, scara catre etaj, o baie, o camera mica/ tehnica si bucataria. Bucatarie sptioasa comunica si direct cu living-ul. Bucataria si living-ul au fiecare acces direct catre terasa si curte. La etaj avem un dormitor matrimonial cu baie, inca doua dormitoare si inca o baie. Toate incaperile sunt foarte spatioase, conform cu pozele si schitele atasate acestui anunt. Casa se vinde complet mobilata si utilata. Anul cosntructiei 2010; finisata si renovata in 2019. Casa este localizata in zona Laguna Albastra, cu acces usor catre punctele de interes din Corbeanca, si mai departe prin DN1 si A0 catre Bucuresti si zonele invecinatate. In apropiere exista supermarket-uri, scoli, gradinite, DN1 Value Center, Therme. Cateva detalii suplimentare: - Este conectata la toate utilitatile - Sistem video de supraveghere - Garaj inchis, incalzit cu usa automata; comunica direct cu casa - Gradina amenata cu gazon si vegetatie matura. - Finisaje Interioare si mobilier conform cu pozele atasate. Apeleaza cu incredere la Monga Imobiliare. Suntem alaturi de tine pana la finalizarea tranzactiei si te ajutam sa treci cu incredere si in cunostinta de cauza prin toti pasii necesari. Te putem ajuta in pregatirea documentelor, selectia notarului, obtinerea finantarii, si altele. Te asteptam sa ne contactezi.
Citește mai mult Citește mai puțin
Mobilat Mobilat 1 Garaj

Detalii casă

ID anunț: XFHP1101O Copiat! 251239860 Copiat!
Actualizat în: 04 Martie 2026
Nr. băi: 3
Nr. terase: 2
An construcție: 2010 (Finalizată)
Regim înălțime: P

Utilități

Utilități
Curent Apă Canalizare Gaze

Disponibilitate proprietate:

imediat

Puncte de interes

Școală
school
Scoala generala
Școli aprox. 801 m
school
Scoala Nr 1
Școli aprox. 820 m
school
Scoala Nr. 1 Corbeanca
Școli aprox. 1102 m
Recreere
park
Pădurea Tămași
Parcuri aprox. 1021 m
park
Pădurea Corbeanca
Parcuri aprox. 1939 m
sports-ground
Teren sportiv
Terenuri sport aprox. 1941 m

Detalii despre preț și costuri

Costuri cu achiziția

Fără credit
13.034 RON
Credit ipotecar
15.399 RON
Noua casă
1.644 RON+ taxe notariale

i

Costuri adiționale mai puțin știute la achiziție: taxe notariale, comisioane etc.

Proprietăți recomandate

Detalii de contact

MONGA

Razvan Ceapa Managing Partner

5.00(3 review-uri)

MONGA
PRO

Abonează-te la newsletter să fii primul care primește cele mai noi recomandări de proprietăți și sfaturi de la experți.

CONTACT

Creează alertă

Salvează căutarea ca să primești pe email ultimele anunțuri publicate

Case individuale cu 4+ camere de vânzare în Corbeanca, Județul Ilfov