Casa individuala cu 4 camere, 120mp utili, 750mp teren, Cristian

295.000 €

Cristian, Județul Sibiu

Nr. cam.:
4
Sup. utilă:
120 mp
Sup. teren:
750 mp
Tip prop.:
Individuală
  • • Locație aproximativă

Descriere casă

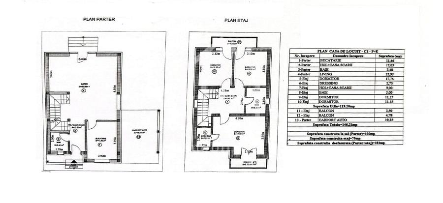
Casa individuala cu 4 camere + foisor 35mp, pod mansardabil, clasa energetica A Avantaje: -cea mai buna clasa energetica -foisor spatios (in proces de intabulare) -pod inalta -teren generos compus din doua parcele -carpot auto -spatiu de depozitare -casa se preda mobilata si utilata + zugravita inainte de predare -strada asfalta -dispune de toate utilitatile -bai cu geam pentru aerisire -situata la 20 minute de centrul Sibiului -transport public in apropiere Compartimetare: Parter: -hol de acces -baie -debara -bucatarie -living Etaj: -hol -2 dormitoare -baie -dormitor cu dressing si balcon -balcon Locatia: Sibiu, localitatea Cristian. Iti doresti mai mult decat o simpla locuinta? Noi suntem aici pentru a-ți oferi cele mai bune soluții. Oferim servicii de DESIGN SI AMENAJARI INTERIOARE, PROPERTY MANAGEMENT, REGIM HOTELIER, HOME STAGING, VIRTUAL INVESTMENT, SERVICII DE CURATENIE.
Citește mai mult Citește mai puțin
Mobilat Calorifere Centrală proprie 2 Parcări 1 Garaj

Detalii casă

ID anunț: XDQ4110IV Copiat! 275290751 Copiat!
Actualizat în: 16 Martie 2026
Suprafață construită: 102 mp
Suprafață desfășurată: 146 mp
Nr. bucătării: 1
Nr. băi: 2
Nr. balcoane / Terase / Logii: 2
Suprafață terase: 35 mp
An construcție: 2021
Regim înălțime: P+1E

Utilități

Pereți
Faianță
Podele
Gresie Parchet
Izolații termice
Exterior
Bucătărie
Mobilată
Facilități imobil
Interfon
Utilități
Curent Apă Canalizare CATV Gaze Telefon
Internet
Cablu
Amenajare străzi
Iluminat stradal Mijloace de transport în comun Asfaltate
Comision
standard

Disponibilitate proprietate:

Imediat

Puncte de interes

Mijloace transport
bus-station
Cristian Sibiu
Stații autobuz aprox. 963 m

Detalii despre preț și costuri

Costuri cu achiziția

Fără credit
13.027 RON
Credit ipotecar
15.392 RON
Noua casă
1.643 RON+ taxe notariale

i

Costuri adiționale mai puțin știute la achiziție: taxe notariale, comisioane etc.

Proprietăți similare

Casă individuală cu 5 camere în Cristian
305.000 €
Județul Sibiu, Cristian
5 camere
146 mp
478 mp teren
Casă individuală cu 5 camere în Cristian
305.000 €
Județul Sibiu, Cristian
5 camere
145 mp
530 mp teren
Casă individuală cu 5 camere în Cristian
279.000 €
Județul Sibiu, Cristian
5 camere
153 mp
723 mp teren

Detalii de contact

Virtual Imobiliare

Petru Caburgan Consultant Imobiliar

Virtual Imobiliare

Abonează-te la newsletter să fii primul care primește cele mai noi recomandări de proprietăți și sfaturi de la experți.

CONTACT

Creează alertă

Salvează căutarea ca să primești pe email ultimele anunțuri publicate

Case individuale cu 4+ camere de vânzare în Cristian, Județul Sibiu