*Vila Bucium-Visan* - 650mp teren - *toate utilitatile*

230.000 €

Vișani, Iași

Nr. cam.:
4
Sup. utilă:
127 mp
Sup. teren:
650 mp
Tip prop.:
Individuală
  • • Comision 0%
  • • Locație aproximativă

Descriere casă

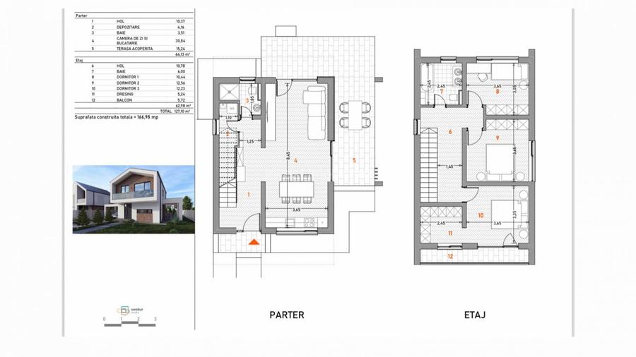
Invest Imobiliare va prezinta unul dintre cele mai recente proiecte rezidentiale dezvoltate in zona Bucium-Visan, un concept rezidential gandit pentru rafinament si confort. Realizat special pentru clientii atenti la detalii, acest ansamblu rezidential moderna ofera: *Design inovator: Combinatie perfecta intre estetica si functionalitate; *Spatii generoase: -parter: living, bucatarie, debara/camera tehnica, grup sanitar și terasa acoperita; -etaj: trei dormitoare, dressing, baie și balcon; *Suprafața utila de 127 mp si construita de 167 mp. *Dotari si facilitati: •Caramida portanta BKS 25; •Izolatie termica cu vata bazaltica 10cm; •Tamplarie PVC tripan premium; •Incalzire in pardoseala; •Tavane cu scafe si lumina led; •Finisaje de calitate superioara: var lavabil, faianta, gresie, parchet, klinker; •Usi interioare din lemn de calitate superioara; •Obiecte sanitare incastrate de calitate superioara; •Acoperis din tigla metalica; •Cartea constructiei; -Racordare la toate utilitatile: energie electrica, gaz, apa curenta si canalizare. Disponibilitate pentru mai multe tipuri de compartimentari, design si modele de case: - tip 1 - 190.000€ - ⁠tip 2 - 180.000€ - ⁠tip 3 - 170.000€ - ⁠tip 4 (stil mediteranean) - 205mp construiti/ 155mp uitli - 230.000€ Pentru mai multe detalii, nu ezitati sa ne contactati la numarul: – Lorian Gherasim
Citește mai mult Citește mai puțin
Centrală proprie Încălzire prin pardoseală

Detalii casă

ID anunț: XB88110RJ Copiat! 263162121 Copiat!
Actualizat în: 09 Martie 2026
Suprafață construită: 166.98 mp
Nr. bucătării: 1
Nr. băi: 2
Nr. balcoane / Terase / Logii: 1
Nr. terase: 1
An construcție: 2025 (Finalizată)
Structură rezistență: Beton
Regim înălțime: P+1E

Utilități

Utilități
Curent Apă Canalizare Gaze CATV
Izolații termice
Exterior

Vecinătăți:

Visani-Bucium

Disponibilitate proprietate:

imediat

Puncte de interes

Mijloace transport
bus-station
Statia "Scoala generala nr.2", linia 30,30b,46
Stații autobuz aprox. 1049 m
bus-station
Han Trei Sarmale
Stații autobuz aprox. 1064 m
bus-station
Statia "han Trei Sarmale", linia 30,30b,46
Stații autobuz aprox. 1064 m
bus-station
Han Trei Sarmale
Stații autobuz aprox. 1100 m
Școală
kindergarten
Gradinita PP Surorile Providentei
Gradinițe aprox. 668 m
school
Scoala Generala nr. 2 Veronica Micle
Școli aprox. 1005 m
kindergarten
Scoala Veronica Micle
Gradinițe aprox. 1027 m
school
Scoala Primara Visan
Școli aprox. 1251 m
Recreere
sports-ground
Teren sportiv
Terenuri sport aprox. 518 m
pub
La Matale
Pub aprox. 1037 m
restaurant
La Taifas
Restaurant aprox. 1051 m
park
Plopii fără soț
Parcuri aprox. 1189 m

Detalii despre preț și costuri

Costuri cu achiziția

Fără credit
10.795 RON
Credit ipotecar
12.884 RON
Noua casă
1.312 RON+ taxe notariale

i

Costuri adiționale mai puțin știute la achiziție: taxe notariale, comisioane etc.

Proprietăți recomandate

Detalii de contact

Invest Imobiliare

Lorian-Emanuel Gherasim Agent Imobiliar

Invest Imobiliare
PRO

Abonează-te la newsletter să fii primul care primește cele mai noi recomandări de proprietăți și sfaturi de la experți.

CONTACT

Creează alertă

Salvează căutarea ca să primești pe email ultimele anunțuri publicate

Case individuale cu 4+ camere de vânzare în zona Vișani, Iași