Mogosoaia,vila robusta cu vedere spectaculoasa catre lac,palat,parc,1750mp teren

1.600.000 €

Mogoșoaia, Județul Ilfov

Nr. cam.:
6
Sup. utilă:
517 mp
Sup. teren:
1.750 mp
Tip prop.:
Individuală
  • • Exclusivitate
  • • Locație exactă
  • • Proprietate nelocuită

Descriere casă

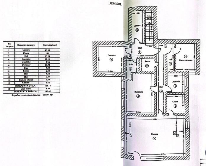
Vila robusta pe teren in panta catre lacul palatului Mogosoaia,cu gradina generoasa amenajata cu plante exotice si autohtone adulte, alei pavate si foisor cu grup sanitar si spatiu barbeque pe malul lacului,ponton amenajat. Vila a fost construita pentru uz propriu din materiale de cea mai buna calitate.Finisaje deosebite. Poarta de acces in curte este automatizata,ca si poarta de acces in garaj. Pe nivelul hochparter este garaj incapator pentru 2 masini, 2 bai complete,grup sanitar,2 dormitoare,bucatarie si un living generos pe 2 nivele..La nivelul Mansarda sunt 2 dormitoare, multiple spatii de depozitare,sauna si un living de 50mp. Nivelul demisol are si el un dormitor,living,terase,2 bai.Incalzirea pe demisol este in pardoseala,iar la urmatoarele nivele este prin calorifere de otel.Aport de apa calda de la panouri solare.Vila este foarte bine izolata- 10cm polistiren extrudat pe esterio r,asa incat vara e racoare,iar iarna se mentine cald. Casa are semine pe lemne si soba de teracota. Ambientul interior si exterior este foarte placut.
Citește mai mult Citește mai puțin
Mobilat Parțial mobilat Grădină Aer condiționat Calorifere Centrală proprie Încălzire prin pardoseală Sobă/teracotă Beci 5 Parcări 1 Garaj Renovat

Detalii casă

ID anunț: X6V9010FD Copiat! 261681803 Copiat!
Actualizat în: 20 Ianuarie 2026
Suprafață construită: 280 mp
Suprafață desfășurată: 705 mp
Nr. bucătării: 1
Nr. băi: 6
Nr. terase: 3
Suprafață terase: 80 mp
Front stradal: 27 m
Învelitoare acoperiș: Țiglă
An construcție: 2012 (Finalizată)
Structură rezistență: Beton
Regim înălțime: D+P+M

Utilități

Destinație
Rezidențial Birouri De vacanță
Pereți
Vopsea lavabilă
Podele
Parchet Gresie
Rulouri/Obloane
Aluminiu
Ușă intrare
Metal
Uși interior
Lemn
Izolații termice
Exterior
Ferestre cu geam termopan
Lemn
Contorizare
Apometre Contor gaz
Bucătărie
Mobilată Utilată
Alte spații utile
Cramă Spațiu depozitare Dressing WC Serviciu Anexe Dependințe
Facilități imobil
Interfon
Utilități
Curent trifazic Apă Canalizare
Amenajare străzi
Asfaltate Mijloace de transport în comun Iluminat stradal
Comision
standart%

Alte detalii despre preț:

negociabil

Disponibilitate proprietate:

imediata

Puncte de interes

Școală
school
Scoala generala
Școli aprox. 677 m
school
Scoala Mogosoaia
Școli aprox. 683 m
Recreere
park
Domeniul Mogosoaia
Parcuri aprox. 415 m
sports-ground
Teren sportiv
Terenuri sport aprox. 698 m
supermarket
MegaImage
Supermarket aprox. 1178 m
restaurant
Casa Vanatoreasca
Restaurant aprox. 1259 m

Proprietăți recomandate

Detalii de contact

PRIMOB

Victoria administrator agentie

4.43(7 review-uri)

PRIMOB
PRO

Abonează-te la newsletter să fii primul care primește cele mai noi recomandări de proprietăți și sfaturi de la experți.

CONTACT

Creează alertă

Salvează căutarea ca să primești pe email ultimele anunțuri publicate

Case individuale cu 4+ camere de vânzare în Mogoșoaia, Județul Ilfov