Mogosoaia - de vanzare - vila in stil Brancovenesc

550.000 €

Mogoșoaia, Județul Ilfov

Nr. cam.:
4
Sup. utilă:
275,21 mp
Sup. teren:
1.100 mp
Tip prop.:
Casă individuală
  • • Locație exactă

Descriere casă

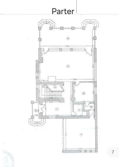
Va invit cu drag sa descoperiti o vila ridicata in stil brancovenesc, o declaratie de eleganta, radacina si continuitate, un loc unde arhitectura intalneste confortul modern iar fiecare detaliu o fost ales cu rabdare, respect si viziune. Pe un teren generos de 1100mp, cu o curte libera de 850mp, linistea se aseaza natural. Diminetile au miros de verde, iar serile se traiesc afara, cu luminile calde ale casei reflectate in ferestrele inalte. Spatiul pentru locuit are o suprafata de 387,18mp si se defasoara armonios pe parter, etaj si mansarda locuibila, fiecare nivel avand propria energie. Parterul este format din living cu semineu, bucatarie, baie, spatii depozitare, 2 terase, garaj. Etajul are 2 dormitoare matrimoniale cu dressing, baie si balcon. Mansarda este inundata de lumina prin 7 ferestre Velux, fiind locul perfect pentru visare, creatie si retragere. UTILITATI: Casa este independenta, eficienta si pregatita pentru viitor: caldura vine de jos, linistita- incalzire si racire in pardoseala la parter si etaj. Energia este inteligent gandita: panouri solare de 4kw, instalatie de apa calda de la soare, curent trifazic. Casa dispune de 2 puturi de foraj mare si fosa septica, sistem de drenaj al apelor pluviale, canalizarea si apa fiind la poarta. La doar cateva minute de Palatul Brancovenesc Mogosoaia, lac si zone de promenada, aceasta vila iti ofera luxul rar al proximitatii fata de natura fara a renunta la accesul rapid catre Bucuresti. Aceasta casa este potrivita pentru cei care cauta sens, stabilitate si frumusete care nu se demodeaza, o resedinta care onoreaza trecutul si traieste in prezent. Cu drag, va stau la dispozitie pentru detalii si vizionare!
Citește mai mult Citește mai puțin
Parțial mobilat Curte Aer condiționat Calorifere Centrală proprie Încălzire prin pardoseală Sobă/teracotă 6 Parcări 1 Garaj Bine întreținut (Bună)

Detalii casă

ID anunț: XG6P0100Q Copiat! 273254362 Copiat!
Actualizat în: 09 Martie 2026
Suprafață construită: 521.54 mp
Nr. bucătării: 1
Nr. băi: 4
Nr. balcoane / Terase / Logii: 2
Nr. terase: 1
An construcție: 2012 (Finalizată)
Structură rezistență: data_properties.building_structure.BCA
Regim înălțime: P+2E

Utilități

Pereți
Vopsea lavabilă Faianță Tapet
Podele
Parchet
Ușă intrare
Metal
Uși interior
Lemn
Izolații termice
Exterior Interior
Ferestre cu geam termopan
PVC
Bucătărie
Mobilată Utilată
Diverse
Șemineu Sistem de alarmă Telecomandă poartă garaj Telecomandă poartă acces auto
Utilități
Curent Gaze Fosa septică Curent trifazic CATV Telefon
Internet
Fibră optică
Amenajare străzi
Asfaltate Iluminat stradal Mijloace de transport în comun

Puncte de interes

Școală
school
Scoala generala
Școli aprox. 1336 m
school
Scoala Mogosoaia
Școli aprox. 1342 m
Recreere
restaurant
Restaurant Casa Vanatoreasca
Restaurant aprox. 860 m
park
Parcul Mogosoaia
Parcuri aprox. 1079 m
sports-ground
Teren sportiv
Terenuri sport aprox. 1217 m
supermarket
Mega Image
Supermarket aprox. 1410 m

Detalii despre preț și costuri

Costuri cu achiziția

Fără credit
21.781 RON
Credit ipotecar
25.228 RON
Noua casă
2.942 RON+ taxe notariale

i

Costuri adiționale mai puțin știute la achiziție: taxe notariale, comisioane etc.

Proprietăți recomandate

Detalii de contact

EXP REALTY ROMANIA

Violeta Vintila Team Leader

EXP REALTY ROMANIA
PRO

Abonează-te la newsletter să fii primul care primește cele mai noi recomandări de proprietăți și sfaturi de la experți.

CONTACT

Creează alertă

Salvează căutarea ca să primești pe email ultimele anunțuri publicate

Case individuale cu 4+ camere de vânzare în Mogoșoaia, Județul Ilfov