12

CASA INDIVIDUALA, MOSNITA NOUA, 4 CAMERE

150.000 €

Moșnița Nouă, Județul Timiș

Nr. cam.:
4
Sup. utilă:
128 mp
Sup. teren:
606 mp
Tip prop.:
Individuală
  • • Locație aproximativă

Descriere casă

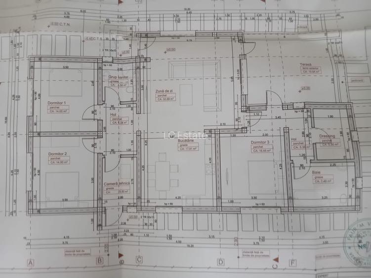
LC Estate ofera spre vanzare Casa Individuala in Mosnita Noua. Este compartimentata in felul urmator: hol de acces, living generos cu bucatarie open space si acces pe terasa, 3 dormitoare, 2 bai, dressing si camera tehnica. Dispune de urmatoarele utilitatile : apa, canalizare, curent, gaz Incalzirea este in pardoseala. Imobilul se poate achizitiona la ROSU la pretul de 80.000 EURO , dar si la cheie cu finisaje premium la pretul de 150.000 EURO. Va asteptam la vizionare!
Citește mai mult Citește mai puțin
Centrală proprie Încălzire prin pardoseală

Detalii casă

ID anunț: XG9101004 Copiat! 274485467 Copiat!
Actualizat în: 26 Ianuarie 2026
Nr. bucătării: 1
Nr. băi: 2
Nr. terase: 1
Suprafață terase: 20 mp
An construcție: 2025
Structură rezistență: Cărămidă

Utilități

Izolații termice
Exterior
Utilități
Curent Apă Canalizare CATV Gaze Telefon
Acces internet
Cablu
Amenajare străzi
Iluminat stradal Mijloace de transport în comun Asfaltate

Disponibilitate proprietate:

Imediat

Puncte de interes

Recreere
restaurant
La Paul
Restaurant aprox. 443 m

Detalii despre preț și costuri

Costuri cu achiziția

Fără credit
8.053 RON
Credit ipotecar
9.802 RON
Noua casă
904 RON+ taxe notariale

i

Costuri adiționale mai puțin știute la achiziție: taxe notariale, comisioane etc.

Proprietăți recomandate

Detalii de contact

LC Estate

Sebastian Hepes Manager

LC Estate
PRO

Abonează-te la newsletter să fii primul care primește cele mai noi recomandări de proprietăți și sfaturi de la experți.

CONTACT

Creează alertă

Salvează căutarea ca să primești pe email ultimele anunțuri publicate

Case individuale cu 4+ camere de vânzare în Moșnița Nouă, Județul Timiș