9

COMISION 0! Duplex finalizat cu 5 camere si 3 bai. Panouri fotovoltaice.

172.000 €

Moșnița Nouă, Județul Timiș

Nr. cam.:
5
Sup. utilă:
120 mp
Sup. teren:
380 mp
Tip prop.:
Duplex
  • • Locație aproximativă

Descriere casă

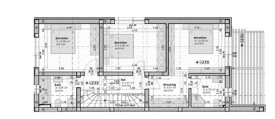
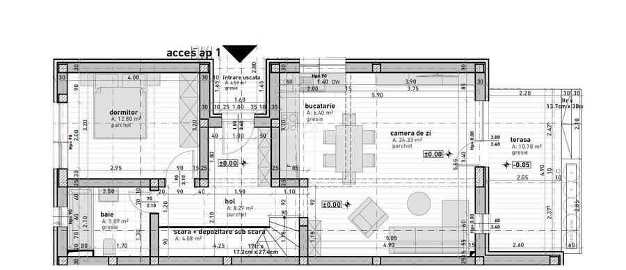
ZayHome va propune spre vanzare cu COMISION 0 , case tip duplex cu regim de inaltime Parter+Etaj situate in Mosnita Noua. Compartimentare si suprafata: - Parter: Hol acces cu loc pentru dressing, baie, dormitor/birou, camera de zi + bucatarie - Etaj: hol cu spatiu depozitare, dormitor cu loc pentru dressing si baie proprie, 2 dormitoare, baie cu cada, terasa Suprafata utila : 117 mp + 15 mp terasa , teren 380 mp : 120 mp + 15 mp terasa , teren 260 mp Finisaje si dotari: - Centrala proprie cu incalzire prin pardoseala - Termostat individual de ambient în fiecare cameră - Panouri fotovoltaice 3,5 kw - Sistem electric- Gewiss - Usi interioare marca PortaDoors -Gresie, faianta marca Tempini - Parchet laminat - Ferestre cu tamplarie PVC si geam termopan tripan Salamander Detalii constructive: - Ziduri din caramida Porotherm : 30 cm perete exterior, 25 cm perete interior - Termoizolatie exterioara polistiren 10 cm - Placa de beton - Pod izolat - Acoperis din tigla Utilitati: curent trifazic, gaz, apa , fosa cu drenaj. Casa se preda finisata la cheie, iar finisajele inca se mai pot alege. Fotografiile sunt doar cu titlu de prezentare din proiecte anterioare finalizate. Fiind multe de vazut si de prezentat in realitate, te invitam la o intalnire in urma careia vei obtine raspunsuri la toate intrebarile tale. Lasa procesul de achizitie al imobilului mult visat in seama noastra, vei avea mai putine griji si vei beneficia de consultanta imobiliara, financiar-bancara si juridica pe tot parcusul acestuia.
Citește mai mult Citește mai puțin
Grădină Curte Centrală proprie Încălzire prin pardoseală 2 Parcări

Detalii casă

ID anunț: XC6P1104Q Copiat! 274537405 Copiat!
Actualizat în: 16 Aprilie 2026
Tip tranzacție: De vânzare prin agent
Nr. bucătării: 1
Nr. băi: 3
Nr. terase: 1
Suprafață terase: 15 mp
Învelitoare acoperiș: Țiglă
An construcție: 2025 (Finalizată)
Structură rezistență: Cărămidă
Regim înălțime: P+1E
Modalitate de plată: Cash sau Credit

Utilități

Pereți
Faianță Vopsea lavabilă
Podele
Gresie Parchet
Ușă intrare
Metal
Izolații termice
Exterior
Ferestre cu geam termopan
PVC
Contorizare
Apometre Contor gaz
Alte spații utile
WC Serviciu
Facilități imobil
Acoperiș Interfon
Utilități
Curent Apă Canalizare CATV Gaze Telefon
Internet
Cablu
Amenajare străzi
Iluminat stradal Mijloace de transport în comun Asfaltate
Comision
standard

Certificat energetic:

Clasa energetică: A

Disponibilitate proprietate:

Imediat

Puncte de interes

Recreere
restaurant
La Paul
Restaurant aprox. 813 m

Detalii despre preț și costuri

Costuri cu achiziția

Fără credit
Credit ipotecar
Noua casă

i

Costuri adiționale mai puțin știute la achiziție: taxe notariale, comisioane etc.

Acces la informații premium după autentificare
Login Gratuit

Proprietăți similare

Duplex cu 4 camere în Moșnița Nouă
177.990 €
Județul Timiș, Moșnița Nouă
4 camere
105 mp
300 mp teren
Duplex cu 4 camere în Moșnița Nouă
177.990 €
Județul Timiș, Moșnița Nouă
4 camere
104 mp
250 mp teren
Duplex cu 4 camere în Moșnița Nouă
168.990 €
Județul Timiș, Moșnița Nouă
4 camere
100,5 mp
290 mp teren

Detalii de contact

Abonează-te la newsletter să fii primul care primește cele mai noi recomandări de proprietăți și sfaturi de la experți.

Feedback apel

CONTACT

Creează alertă

Salvează căutarea ca să primești pe email ultimele anunțuri publicate

Duplexuri cu 4+ camere de vânzare în Moșnița Nouă, Județul Timiș