3

Casa 5 camere 166mp | 0 comision | Otopeni str Maramures | Metrou | 510mp teren

389.000 €

Otopeni, Județul Ilfov

Nr. cam.:
5
Sup. utilă:
166 mp
Sup. teren:
510 mp
Tip prop.:
Individuală
  • • Comision 0%
  • • Locație exactă

Descriere casă

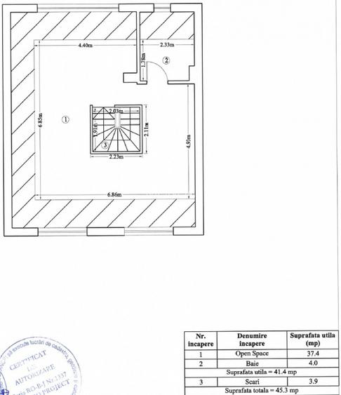
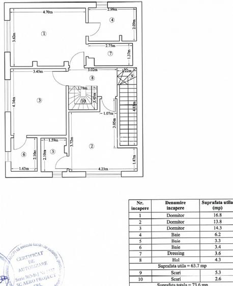
0 COMISION. Va oferim spre achizitie fara comision o casa tip duplex (la calcan) cu 5 camere si o suprafata totala de 210mp (166mp utilit). Casa este localizata intr-o zona linistita din Otopeni cu acces din Strada Maramures si este la doar 10 minute (800metri) de o viitoare statie de metrou. Casa este acum la alb, dar se vinde finisata; cumparatorul isi poate alege finisajele. Pozele cu finisaje sunt ilustrative; sunt din casa vecina, care este foarte asemanatoare. Aceasta are suprafata putin mai mare, o curte mai mica, si este disponibila la pretul de 375 000 EUR. Asa cum v-am obisnuit: - toate ofertele Monga Imobiliare sunt fara comision din partea cumparatorului - pentru ca iubim transparenta, toate preturile afisate de Monga Imobiliare includ TVA (daca se aplica). Pretul afisat de noi este intotdeauna pretul final pe care il vei achita. Acceseaza Monga Imobiliare (Monga RO) pentru mai mai multe poze si pentru intreg portofoliul nostru de case si apartamente din Otopeni, Tunari, Balotesti, Corbeanca, Pipera si chiar nordul Bucurestiului. Punctele forte al acestei case il reprezinta curtea foarte spatioasa intr-o locatie excelenta, linistita si la doar 10 minute de o viitoare statie de metrou. Despre spatiu: La parter, accesul se face intr-un vestibul ce comunica cu un spatiu de dressing cu o baie, cu scara catre etaj si cu living-ul spatios cu semineu pe lemne. Din living se acceseaza bucataria cu dining. Accesul catre terasa se face din living si dining. In exterior avem si o anexa tehnica. La etaj avem trei dormitorare, toate cu baie proprie. Dormitorul matrimonial are si dressing. Mansarda poate fi accesata pe o scara elicoidala si este formata dintr-un open space generos de 40mp plus o baie. Poate fi folosita ca dormitor, birou, spatiu de joaca, sport, etc. Casa se vinde complet finisata inclusiv curtea amenajata ca in poze. Cumparatorul isi poate alege finisajele. Alte detalii: - conectata la toate utilitatile - semineu pe lemne - incalzire prin pardoseala TECE - centrala pe gaz - tamplari tip Salamander cu geam Tripan - parchet triplustratificat Casa este localizata intr-o zona foarte linistita, cu acces rapid catre DN1 si Centura Capitalei si mai departe catre nordul Bucurestiului si zonele importante din apropiere. Apeleaza cu incredere la Monga Imobiliare. Suntem alaturi de tine pana la finalizarea tranzactiei si te ajutam sa treci cu incredere si in cunostinta de cauza prin toti pasii necesari. Te putem ajuta in pregatirea documentelor, selectia notarului, obtinerea finantarii, si altele. Te asteptam sa ne contactezi.
Citește mai mult Citește mai puțin
Nemobilat Încălzire prin pardoseală 2 Parcări 2 Parcări / Garaje / Parcări subterane

Detalii casă

ID anunț: XFHP1105H Copiat! 270177087 Copiat!
Actualizat în: 02 Martie 2026
Nr. bucătării: 1
Nr. băi: 5
Nr. terase: 1
Regim înălțime: P+1E+M

Utilități

Utilități
Curent Apă Canalizare Gaze
Amenajare străzi
Asfaltate Pietruite

Disponibilitate proprietate:

imediat

Puncte de interes

Mijloace transport
bus-station
Statia Amco, linia 783
Stații autobuz aprox. 476 m
bus-station
Statia Pasaj Otopeni, linia 149,304
Stații autobuz aprox. 968 m
train-station
Gara Otopeni
Stații tren aprox. 1015 m
bus-station
Statia Pasaj CFR Otopeni, linia 149,304,783
Stații autobuz aprox. 1428 m
Școală
kindergarten
Gradinita numarul 1
Gradinițe aprox. 826 m
school
Liceul Teoretic Ioan Petrus - Corp 1
Școli aprox. 873 m
school
Liceul Teoretic Ioan Petrus - Corp 2
Școli aprox. 913 m
kindergarten
Gradinita cu program prelungit nr. 2 Otopeni
Gradinițe aprox. 1875 m
Recreere
restaurant
Mcdonald's Otopeni
Restaurant aprox. 512 m
park
La Gratar
Parcuri aprox. 629 m
sports-ground
Teren sportiv
Terenuri sport aprox. 668 m
supermarket
Mega Image Otopeni
Supermarket aprox. 1434 m

Detalii despre preț și costuri

Costuri cu achiziția

Fără credit
16.254 RON
Credit ipotecar
19.018 RON
Noua casă
2.122 RON+ taxe notariale

i

Costuri adiționale mai puțin știute la achiziție: taxe notariale, comisioane etc.

Proprietăți recomandate

Detalii de contact

MONGA

Razvan Ceapa Managing Partner

5.00(3 review-uri)

MONGA
PRO

Abonează-te la newsletter să fii primul care primește cele mai noi recomandări de proprietăți și sfaturi de la experți.

CONTACT

Creează alertă

Salvează căutarea ca să primești pe email ultimele anunțuri publicate

Case individuale cu 4+ camere de vânzare în Otopeni, Județul Ilfov