Casa single Otopeni Odaile 174mp, lot 272mp, gated community

209.000 € + TVA

Otopeni, Județul Ilfov

Nr. cam.:
4
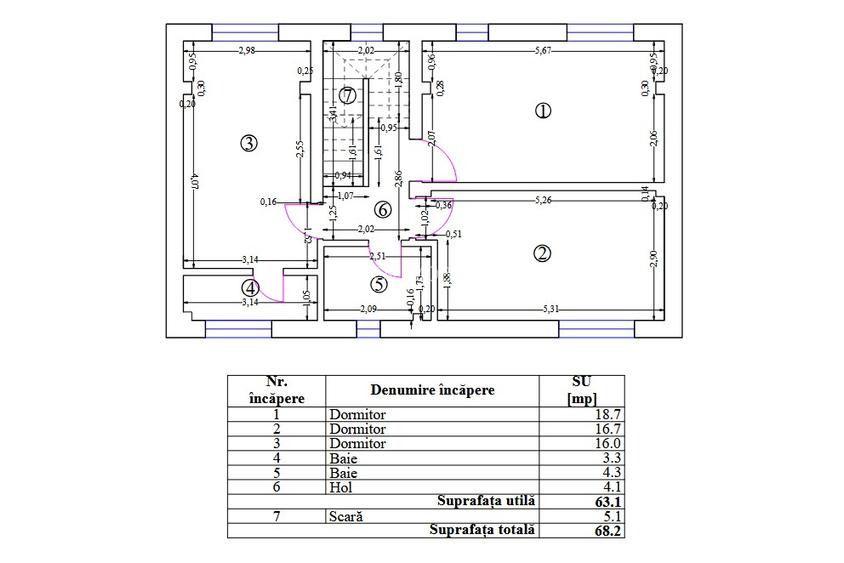
Sup. utilă:
132,29 mp
Sup. teren:
272 mp
Tip prop.:
Individuală
  • • Comision 0%
  • • Exclusivitate
  • • Locație exactă

Descriere casă

ILFOV IMOBILIAR – „O mutare isteata!” CRĂIȚELOR BOUTIQUE OTOPENI – Ultimele 2 case disponibile din cele 5 | Gated community | Constructii finalizate | Buget pentru finisare Pret de la: 209.000 EUR + TVA (la alb) Asa cum v-am obisnuit, COMISION 0. Un ansamblu intim, format din 5 case single, construite cu responsabilitate si atentie la detalii. Casele sunt amplasate in faza a doua a proiectului, cu acces separat pe un drum amenajat, intr-o zona linistita, cu trafic redus. Prin drumul de servitute se ajunge rapid (pe jos) in zona centrala a Otopeniului, chiar sub pasarela pietonala, langa statiile de autobuz si viitoarea statie de metrou. CASA SINGLE TIP 1 – P+1+M Suprafata construita: 219 mp Suprafata utila (cu terasa): 163 mp Teren: 245 mp Disponibilitate: 1/2 unitati Pret: 243.000 EUR + TVA CASA SINGLE TIP 2 – P+1 Suprafata construita: 174,26 mp Suprafata utila (cu terasa): 132,29 mp Teren: 272 mp Disponibilitate: 1/3 unitati Pret: 229.000 EUR + TVA Pret special: 209.000 EUR + TVA (la alb) CONSTRUCȚII DE CALITATE Structura pe cadre de beton armat Pereti din caramida (exterior + interior) Tamplarie tripan Incalzire in pardoseala Centrala proprie Bransamente individuale 2 locuri de parcare amenajate in fata fiecarei case Buget inclus pentru personalizarea finisajelor Un proiect boutique pentru cei care cauta liniste, confort si intimitate in Otopeni. Oferim consultanta prin broker pentru obtinerea unui eventual credit imobiliar. Daca doriti o colaborare cu agentia noastra, ne puteti scrie pe adresa de e-mail sau ne puteti vizita la sediul din Otopeni, Str. 23 August nr. 152A, Ilfov. Contact: – Costin Ștefan, Broker/Owner
Citește mai mult Citește mai puțin
Centrală proprie Încălzire prin pardoseală 3 Parcări 3 Parcări / Garaje / Parcări subterane

Detalii casă

ID anunț: X9SE1106B Copiat! 275190621 Copiat!
Actualizat în: 04 Martie 2026
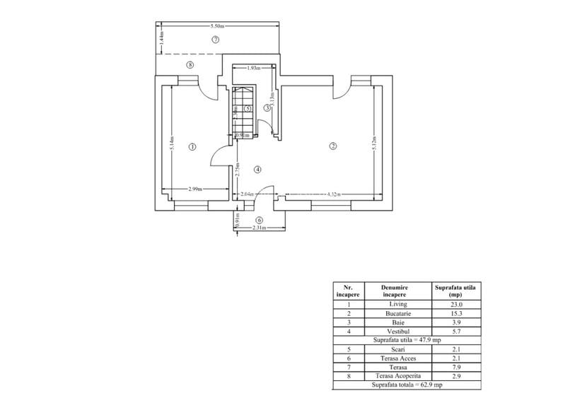
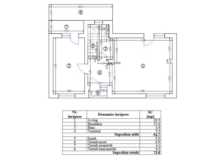
Suprafață construită: 174.26 mp
Nr. bucătării: 1
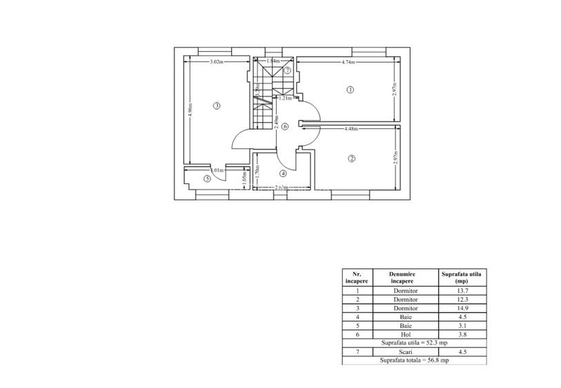
Nr. băi: 3
Nr. terase: 1
Front stradal: 18 m
An construcție: 2024 (În construcție)
Structură rezistență: Beton
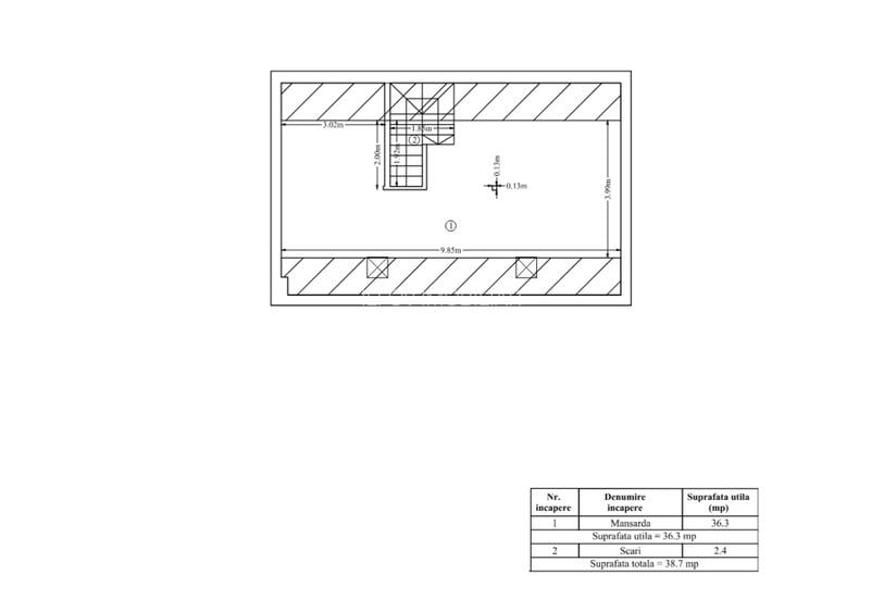
Regim înălțime: P+1E

Utilități

Pereți
Vopsea lavabilă Faianță
Podele
Parchet Gresie
Ușă intrare
PVC
Uși interior
Celulare
Izolații termice
Exterior
Ferestre cu geam termopan
PVC
Utilități
Curent Apă Canalizare Gaze
Amenajare străzi
Asfaltate Iluminat stradal

Certificat energetic:

Clasa energetică: A

Disponibilitate proprietate:

imediat

Puncte de interes

Mijloace transport
bus-station
Statia Pasaj Otopeni, linia 149,304
Stații autobuz aprox. 229 m
bus-station
Statia Sat Odai, linia 304
Stații autobuz aprox. 423 m
bus-station
Statia Pasaj CFR Otopeni, linia 149,304,783
Stații autobuz aprox. 435 m
train-station
Gara Otopeni
Stații tren aprox. 1451 m
Școală
kindergarten
Gradinita cu program prelungit nr. 2 Otopeni
Gradinițe aprox. 1027 m
school
Lycee Francais de Noailles
Școli aprox. 1519 m
university
Academia Națională de Informații "Mihai Viteazul"
Universități aprox. 1877 m
kindergarten
Gradinita numarul 1
Gradinițe aprox. 1982 m
Recreere
restaurant
Ambasad'Or
Restaurant aprox. 544 m
sports-ground
Teren sportiv
Terenuri sport aprox. 883 m
sports-ground
Teren sportiv
Terenuri sport aprox. 884 m
park
Loc de joaca
Parcuri aprox. 1349 m

Detalii despre preț și costuri

Costuri cu achiziția

Fără credit
11.584 RON
Credit ipotecar
13.770 RON
Noua casă
1.429 RON+ taxe notariale

i

Costuri adiționale mai puțin știute la achiziție: taxe notariale, comisioane etc.

Proprietăți similare

Casă individuală cu 4 camere în Odăi
198.000 €
Județul Ilfov, Otopeni
4 camere
95 mp
277 mp teren
Casă individuală cu 4 camere în Odăi
206.600 € + TVA
Județul Ilfov, Otopeni
4 camere
125 mp
268 mp teren
Casă individuală cu 5 camere în Odăi
189.000 €
Județul Ilfov, Otopeni
5 camere
115 mp
378 mp teren

Detalii de contact

ILFOV IMOBILIAR

Ionut Costin Stefan BrokerOwner

ILFOV IMOBILIAR

Abonează-te la newsletter să fii primul care primește cele mai noi recomandări de proprietăți și sfaturi de la experți.

CONTACT

Creează alertă

Salvează căutarea ca să primești pe email ultimele anunțuri publicate

Case individuale cu 4+ camere de vânzare în Otopeni, Județul Ilfov