4

Vilă Modernă P+1 | Pantelimon Tineretului | 4 Camere & 3 Băi | Comision 0%

179.000 €

Pantelimon, Județul Ilfov

Nr. cam.:
4
Sup. utilă:
128 mp
Sup. teren:
340 mp
Tip prop.:
Casă individuală
  • • Comision 0%
  • • Locație exactă

Descriere casă

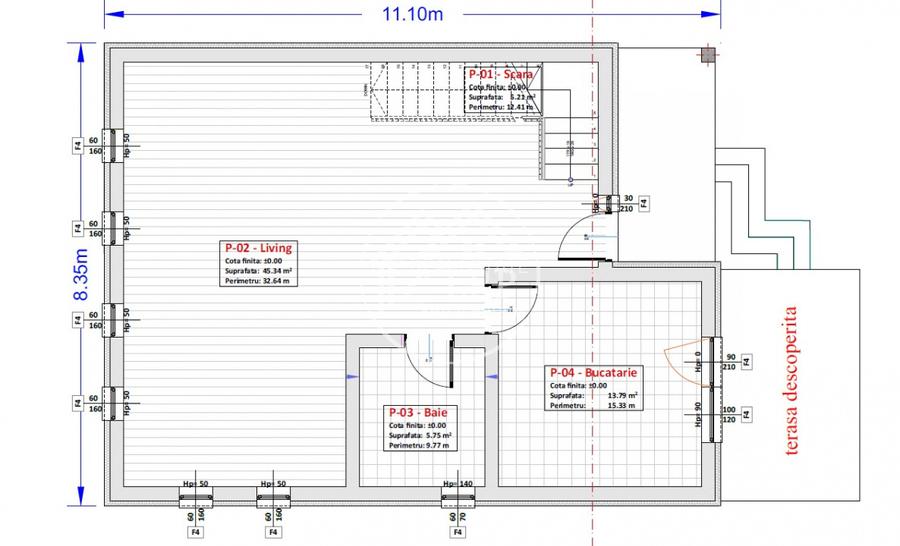
Vă propunem spre vânzare o vilă individuală de excepție, finalizată în anul 2025, situată într-o zonă liniștită și în plină dezvoltare din Pantelimon – strada Tineretului. Această proprietate reprezintă echilibrul perfect între confortul unei locuințe moderne, eficiență energetică și spațiu exterior generos. Desfășurată pe un regim de înălțime P+1, casa oferă o suprafață utilă de 128 mp (totală 135 mp), fiind inteligent compartimentată pentru a răspunde nevoilor unei familii moderne: Parter: Zonă de zi luminoasă și spațioasă, bucătărie (închisă), grup sanitar și acces direct către terasă – locul ideal pentru relaxare. Etaj: 3 dormitoare spațioase, deservite de băi moderne și un balcon care oferă o priveliște deschisă asupra cartierului. Fiind o construcție nouă (2025), imobilul beneficiază de cele mai actuale standarde în construcții: Confort termic superior: Centrală proprie pe gaz și sistem de încălzire în pardoseală pe ambele niveluri. Utilități complete: Branșament la toate utilitățile zonei (gaz, curent, apă, canalizare). Izolație eficientă(polistiren eps100,spuma poliuretanica,etc) și finisaje de calitate. Terenul in suprafata totala de 340 mp oferă o curte liberă generoasă, perfectă pentru amenajarea unui spațiu verde, loc de joacă pentru copii sau parcare (2 locuri). Intimitate: Vilă individuală (nu este duplex/înșiruită). Locație: Acces facil către București, zonă rezidențială nouă. Mutare imediată: Construcție finalizată recent. Pentru mai multe detalii sau programarea unei vizionări, vă rugam să ne contactați! LRP Real Estate – Partenerul tău de încredere în imobiliare. ID oferta:P240123
Citește mai mult Citește mai puțin
Centrală proprie Încălzire prin pardoseală

Detalii casă

ID anunț: XETL11013 Copiat! 274936794 Copiat!
Actualizat în: 09 Martie 2026
Suprafață construită: 125 mp
Nr. bucătării: 1
Nr. băi: 3
Nr. balcoane / Terase / Logii: 1
Nr. terase: 1
Suprafață terase: 8 mp
An construcție: 2025 (Finalizată)
Structură rezistență: Beton
Regim înălțime: P+1E

Utilități

Utilități
Curent Apă Canalizare Gaze
Internet
Fibră optică
Comision
0%

Certificat energetic:

Clasa energetică: A

Puncte de interes

Recreere
supermarket
Selgros Pantelimon
Supermarket aprox. 1632 m

Detalii despre preț și costuri

Costuri cu achiziția

Fără credit
9.051 RON
Credit ipotecar
10.924 RON
Noua casă
1.053 RON+ taxe notariale

i

Costuri adiționale mai puțin știute la achiziție: taxe notariale, comisioane etc.

Proprietăți recomandate

Detalii de contact

LRP REAL ESTATE

Andrei Podariu Consultant Imobiliar

LRP REAL ESTATE
PRO

Abonează-te la newsletter să fii primul care primește cele mai noi recomandări de proprietăți și sfaturi de la experți.

CONTACT

Creează alertă

Salvează căutarea ca să primești pe email ultimele anunțuri publicate

Case individuale cu 4+ camere de vânzare în Pantelimon, Județul Ilfov