Casa individuala mobilata, pe parter, 4 camere si 2 bai, Sag

204.990 €

Șag, Județul Timiș

Nr. cam.:
4
Sup. utilă:
95 mp
Sup. teren:
570 mp
Tip prop.:
Individuală
  • • Locație aproximativă
  • • Vizionare prin apel video

Descriere casă

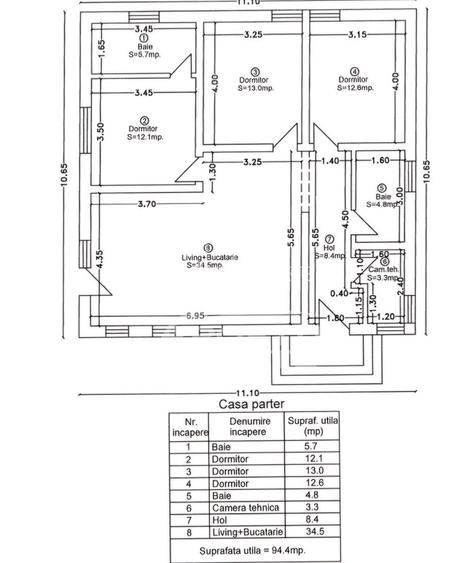
Apostu Estate are placerea de a va oferi spre vanzare o casa individuala situata in localitatea Sag, la doar 10 minute fata de Shopping City Timisoara. In localitate exista scoala cu clasele I - VIII, gradinita, parcuri, spatii comerciale si mijloace de transport in comun. Zona Manastirii, la doar cateva minute fata de magazinul La Doi Pasi. Casa beneficiaza de un teren generos de peste 560 mp, o suprafata utila de 95 mp si o terasa acoperita si inchisa de aproximativ 16 mp. Proiect modern cu dormitoare mari, luminoase si living open space. Confortul termic se realizeaza prin intermediul centralei proprii pe gaz, incalzire prin calorifere. Detalii tehnice: - tamplarie PVC - geamuri tripan - usi interioare Porta Doors, cu toc dublu - zidarie realizata integral cu caramida de 25cm - izolatie exterioara 10cm EPS 80 - pod izolat cu vata - tigla de beton Compartimentare: - hol de acces - dormitor matrimonial cu baie proprie - 2 dormitoare secundare - baie cu dus si geam - living open-space cu bucataria - terasa inchisa - camera technica Casa se va preda mobilata si utilata. Mobila de bucatarie realizata la comanda, electrocasnice incorporate. Utilitati: curent, gaz, fosa septica, foraj (apa curenta si canalizare in curs de bransare) Oferim solutii si consultanta financiara prin intermediul colaboratorilor nostri. Va asteptam cu drag la vizionare !
Citește mai mult Citește mai puțin
Nemobilat Curte Centrală proprie Încălzire prin pardoseală Zonă rurală

Detalii casă

ID anunț: XBAF114BO Copiat! 274298015 Copiat!
Actualizat în: 29 Ianuarie 2026
Suprafață construită: 118 mp
Suprafață desfășurată: 118 mp
Nr. bucătării: 1
Nr. băi: 2
Nr. terase: 1
Front stradal: 20.0 m
Învelitoare acoperiș: Țiglă
An construcție: 2022 (Finalizată)
Structură rezistență: Cărămidă
Regim înălțime: P

Utilități

Pereți
Faianță Vopsea lavabilă
Podele
Gresie Parchet
Ușă intrare
PVC
Izolații termice
Exterior
Ferestre cu geam termopan
PVC
Contorizare
Apometre Contor gaz
Facilități imobil
Acoperiș
Utilități
Curent Apă Canalizare Gaze
Internet
Cablu
Amenajare străzi
Asfaltate

Vecinătăți:

La Doi Pasi

Disponibilitate proprietate:

Imediat

Puncte de interes

Mijloace transport
bus-station
Sag-Timiseni
Stații autobuz aprox. 1426 m
Recreere
sports-ground
Teren sportiv
Terenuri sport aprox. 1901 m
park
Park (en)
Parcuri aprox. 1923 m

Detalii despre preț și costuri

Costuri cu achiziția

Fără credit
9.939 RON
Credit ipotecar
11.922 RON
Noua casă
1.184 RON+ taxe notariale

i

Costuri adiționale mai puțin știute la achiziție: taxe notariale, comisioane etc.

Proprietăți recomandate

Detalii de contact

APOSTU ESTATE

Andra Bazavan Senior Broker

APOSTU ESTATE
PRO

Abonează-te la newsletter să fii primul care primește cele mai noi recomandări de proprietăți și sfaturi de la experți.

CONTACT

Creează alertă

Salvează căutarea ca să primești pe email ultimele anunțuri publicate

Case individuale cu 4+ camere de vânzare în Șag, Județul Timiș