38

Vila consolidata si restaurata, Aviatorilor - Parcul Kiseleff

2.350.000 €

Aviatorilor, București

Nr. cam.:
10
Sup. utilă:
445 mp
Sup. teren:
431 mp
Tip prop.:
Individuală
  • • Locație exactă

Descriere casă

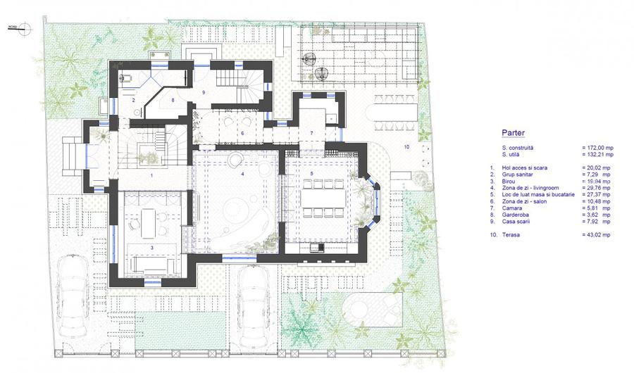
Proprietatea este amplasata in Cartierul Aviatorilor, una dintre cele mai exclusiviste si reprezentative zone ale Bucurestiului. La doar 150 m de Statuia Aviatorilor, cativa pasi de Parcul Herastrau si de statia de metrou Aviatorilor. Caracteristici Generale Arhitectura: Stil neoromanesc autentic, restaurat si consolidat, cu elemente decorative originale reconditionate An constructie: 1927, cu extindere in 1940 Restaurare & consolidare: 2023–2025 (autorizatie de construire nr. 172/21224) Suprafata utila totala: 445 mp + 21 mp terase Teren: 431 mp Regim de inaltime: S + P + 1E + M Inaltimea camerelor: 4 m la parter si etajul 1 Functionalitate Versatila Datorita arhitecturii si structurii, proprietatea este potrivita atat pentru rezidential, cat si pentru functiuni comerciale: - Resedinta privata de prestigiu - Sediu reprezentativ de companie - Clinica boutique / cabinet premium - Birouri, ambasada sau showroom Planurile si randarile prezentate in acest material au fost realizate pentru scenariul rezidential si includ urmatoarea compartimentare propusa: Demisol: Dormitor cu grup sanitar pentru personal intern Camera spalatorie Camera sport Bucatarie principala pentru gatit Debara si spatiu tehnic Parter: Vestibul de intrare cu garderoba si grup sanitar de serviciu, Camera Birou Living cu zona de dining si bucatarie pentru parter Camera depozitare Etaj 1: Dormitor matrimonial cu dressing separat si baie proprie (cada free-standing si cabina de dus) + doua terase Doua dormitoare secundare si un al doilea grup sanitar complet echipat (cada + cabina de dus) Mansarda: Spatiu ce poate functiona independent, configurat cu: Birou Bucatarie Zona de zi Doua dormitoare Doua grupuri sanitare (cu cabine de dus) Zona de Gradina este amenajata cu: 2 locuri de parcare, zona de relaxare cu canapele, masa si spatiu de barbeque Detalii Tehnice & Materiale Premium Acoperis: Refacut integral cu tigla ceramica Jacobi Walter Structura: Camasuire completa si hidroizolatie noua Ferestre: Lemn nordic triplustratificat, geam tripan 36 mm, feronerie MACO Usi de acces: Stejar triplustratificat, finisaj profesional Scara principala: Restaurata integral din lemn masiv Avantaje ale achizitiei in stadiul „la gri” Flexibilitate maxima in alegerea functiunii (rezidential sau comercial) Libertate de personalizare interioara, fara costuri suplimentare de demolari sau modificari Fundament ideal pentru un design interior premium, adaptat viziunii viitorului proprietar O proprietate unica pe piata imobiliara a Bucurestiului, ce imbina valoarea istorica, calitatea restaurarii si versatilitatea de utilizare. Pentru documentatie completa, planuri tehnice si programarea unei vizionari, va rugam sa ne contactati.
Citește mai mult Citește mai puțin
Curte 2 Parcări

Detalii casă

ID anunț: X5CV1103P Copiat! 269775659 Copiat!
Actualizat în: 16 Ianuarie 2026
Suprafață construită: 172 mp
Nr. băi: 6
Nr. balcoane / Terase / Logii: 2
Nr. terase: 1
Front stradal: 27 m
Structură rezistență: Beton
Regim înălțime: D+P+1E+M

Utilități

Utilități
Curent Apă Canalizare Gaze
Ușă intrare
Lemn
Ferestre cu geam termopan
Lemn
Diverse
Scară interioară
Alte spații utile
WC Serviciu Anexe Dependințe
Amenajare străzi
Asfaltate Betonate Iluminat stradal Mijloace de transport în comun
Comision
standard

Vecinătăți:

Statuia Aviatorilor, Piata Aviatorilor, Parcul Kiseleff

Disponibilitate proprietate:

imediat

Puncte de interes

Mijloace transport
metro-station
Piata Aviatorilor (M2)
Stații metrou aprox. 544 m
bus-station
Statia Piata Charlles de Gaulle linii : 131,282,301,330,331,335.
Stații autobuz aprox. 570 m
tram-station
Dr. Constantin Caracas
Stații tramvai aprox. 824 m
trolleybus-station
Statie Soseaua Nicolae Titulescu 65, 97, 86
Stații troleibuz aprox. 1651 m
Școală
kindergarten
Gradinita cu program normal ""Ge Ce Pic Englishkinder"
Gradinițe aprox. 360 m
school
Gradinita de copii nr.52
Școli aprox. 374 m
kindergarten
Gradinita de Copii Nr. 52
Gradinițe aprox. 380 m
university
SNSPA
Universități aprox. 1339 m
Recreere
public-square
Piața Aviatorilor
Piețe publice aprox. 114 m
park
Piateta regelui
Parcuri aprox. 298 m
supermarket
Mega Image
Supermarket aprox. 515 m
mall
"METROPLIS CENTER"
Mall aprox. 1318 m

Proprietăți recomandate

Detalii de contact

PLATINUM Real Estate & Arhitecture

Raluca Nicolae Broker Owner

PLATINUM Real Estate & Arhitecture
PRO

Abonează-te la newsletter să fii primul care primește cele mai noi recomandări de proprietăți și sfaturi de la experți.

CONTACT

Creează alertă

Salvează căutarea ca să primești pe email ultimele anunțuri publicate

Case individuale cu 4+ camere de vânzare în zona Aviatorilor, Sector 1