REV2004464 Vila Deosebita 12 camere Aviatorilor

2.690.000 €

Aviatorilor, București

Nr. cam.:
12
Sup. utilă:
450 mp
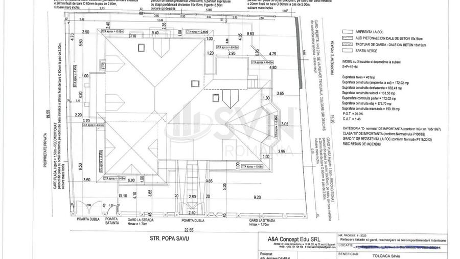
Sup. teren:
430 mp
Tip prop.:
Individuală
  • • Locație aproximativă
  • • Vizionare prin apel video

Descriere casă

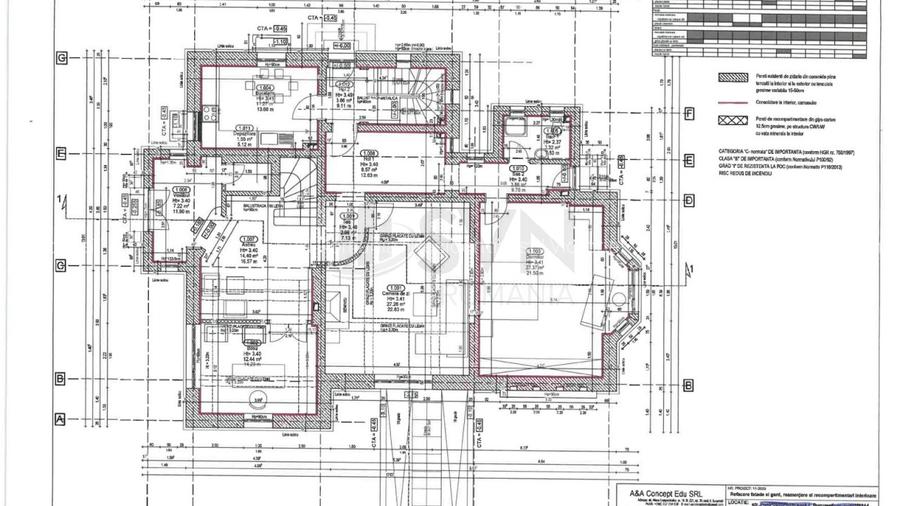
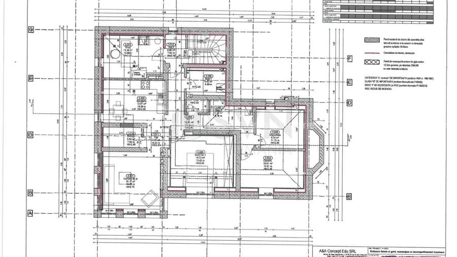
SVN Romania va prezinta o vila deosebita situata in cea mai prestigioasa zona a Bucurestiului- zona Aviatorilor. Casa este structurata pe S+P+1E+M si are o suprafata utila de 450 mp amplasata pe un teren de 430 mp situata pe una din cele mai frumoase si linistite strazi din cartierul Aviatorilor. Proprietatea este in curs de renovare iar o consolidare deja a fost facuta, pastrand intact? eleganta arhitecturii neoromanesti, cu detalii de epoca conservate si reconditionate cu atentie. Camerele spatioase, tavanele inalte si ferestrele generoase ofera un cadru luminos si aerisit, perfect pentru rezidenta, cat si pentru functiuni comerciale, birouri sau showroom de prestigiu. Casa are 4 intrari din care cea principala, 2 laterale si una in spate, scara de serviciu si se poate preta pentru destinatii multiple. Locatia, este una exclusivista, la doar cativa pasi de Parcul Herastrau si metroul Aviatorilor, completeaza perfect avantajele acestei proprietati impresionante. Imobilul este impartit astfel: Subsol: 4 camere + garaj- unde se poate instala lift. Parter: 3 camere, 2 bai, bucatarie. Etaj: 3 camere, baie, bucatarie/baie, 2 balcoane, 2 terase. Mansarda: 5 camere, 2 bai, bucatarie, spatiu depozitare. Pretul final de vanzare variaza in functie de stadiul la care se doreste achizitia. Pentru mai multe detalii si vizionari va rog sa ma contactati.
Citește mai mult Citește mai puțin
Acceptă animale de companie Grădină Centrală proprie

Detalii casă

ID anunț: X658013CL Copiat! 275275567 Copiat!
Actualizat în: 13 Martie 2026
Suprafață construită: 635 mp
Suprafață desfășurată: 635 mp
Nr. bucătării: 1
Nr. băi: 1
An construcție: 1940 (Finalizată)
Structură rezistență: Cărămidă
Tip imobil: Casă/Vilă
Regim înălțime: S+P+1E+M

Utilități

Destinație
Rezidențial Birouri Birouri
Ferestre cu geam termopan
PVC
Facilități imobil
Acoperiș Spații agrement
Utilități
Gaze Apă Curent
Comision
Standard

Vicii:

Fără vicii.

Disponibilitate proprietate:

Disponibil din 09/12/2024.

Puncte de interes

Mijloace transport
metro-station
Piata Aviatorilor (M2)
Stații metrou aprox. 501 m
bus-station
Statia Piata Charlles de Gaulle linii : 131,282,301,330,331,335.
Stații autobuz aprox. 527 m
tram-station
Dr. Constantin Caracas
Stații tramvai aprox. 867 m
trolleybus-station
Statie Soseaua Nicolae Titulescu 65, 97, 86
Stații troleibuz aprox. 1686 m
Școală
kindergarten
Gradinita cu program normal ""Ge Ce Pic Englishkinder"
Gradinițe aprox. 331 m
school
Gradinita de copii nr.52
Școli aprox. 349 m
kindergarten
Gradinita de Copii Nr. 52
Gradinițe aprox. 355 m
university
SNSPA
Universități aprox. 1371 m
Recreere
public-square
Piața Aviatorilor
Piețe publice aprox. 146 m
park
Piateta regelui
Parcuri aprox. 333 m
supermarket
Mega Image
Supermarket aprox. 474 m
mall
"METROPLIS CENTER"
Mall aprox. 1342 m

Proprietăți similare

Casă individuală cu 6 camere în Pipera
2.490.000 €
București, Pipera
6 camere
290 mp
750 mp teren
Casă individuală cu 14 camere în Herăstrău
2.900.000 €
București, Herăstrău
14 camere
1.136 mp
3.718 mp teren
Casă individuală cu 8 camere în Pipera
2.950.000 €
București, Pipera
8 camere
647 mp
2.060 mp teren

Detalii de contact

SVN Romania | Residentialist | Victoriei

Alexandra Duma Senior Associated Advisor

5.00(3 review-uri)

SVN Romania | Residentialist | Victoriei
PRO

Abonează-te la newsletter să fii primul care primește cele mai noi recomandări de proprietăți și sfaturi de la experți.

CONTACT

Creează alertă

Salvează căutarea ca să primești pe email ultimele anunțuri publicate

Case individuale cu 4+ camere de vânzare în zona Aviatorilor, Sector 1