SVN Residentialist va propune spre vanzare o casa situata ultracentral, la cativa metri de Piata Romana si Polona, pe strada cu sens unic, Sector 1.
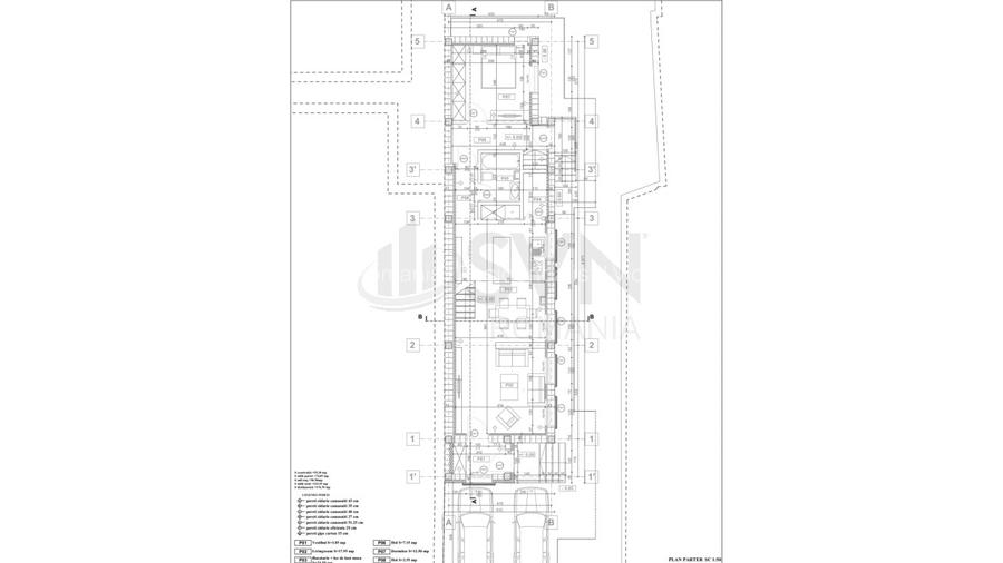
Imobilul este o constructie consolidata, extinsa si supraetajata, realizata pe baza unui proiect semnat de arhitect, cu planuri complete si autorizatie de construire valabila pana in 2027 (S+P+E). Toate lucrarile sunt bine documentate.
Casa dispune de curent trifazic si exista posibilitatea montarii de panouri fotovoltaice.
Pozele sunt cu titlul de prezentare, proprietatea se preda la gri.
Incalzirea se realizeaza prin pompa de caldura, oferind eficienta energetica ridicata si costuri reduse.
Exista posibilitatea parcarii a doua masini in curte si inca una in fata portii.
Imobilul se preteaza atat pentru locuinta proprie, cat si pentru activitati comerciale precum clinica stomatologica, cabinet de avocatura, birouri, casa de moda sau alte servicii premium.
Casa dispune de trei dormitoare, doua livinguri si doua bai. Suprafata terenului este de 400 mp, incluzand amprenta casei. Suprafata utila depaseste 180 mp, iar suprafata construita este de aproximativ 260 mp.
Echipa SVN este aici pentru a-ti gasi locuinta perfecta.
Citește mai mult
Citește mai puțin
Acceptă animale de companie
Alte metode electrice
Încălzire prin pardoseală
Beci
2 Parcări
Sediul central - Timișoara
Bulevardul Victor Babeș nr. 2, 300230, Timișoara, România
Tel: +40.374.40.44.98 / Fax: +40.256.401.179
Email: suport@imobiliare.ro
Luni - Vineri 08:00 - 20:00
Punct de lucru - București: Iride Business Park, Bld. Dimitrie
Pompeiu 9-9A, Clădirea B2B,
020335, Sector 2, București, România
CONTACT
Sediul central - Timișoara
Bulevardul Victor Babeș nr. 2, 300230, Timișoara, România
Tel: +40.374.40.44.98 / Fax: +40.256.401.179
Email: suport@imobiliare.ro
Luni - Vineri 08:00 - 20:00
Punct de lucru - București: Iride Business Park, Bld. Dimitrie
Pompeiu 9-9A, Clădirea B2B,
020335, Sector 2, București, România
Scoala Nationala de Studii Politice si Administrative (SNSPA)
aprox.
624 m
Scoala Nationala de Studii Politice si Administrative
aprox.
624 m
SNSPA
aprox.
648 m
Rectoratul UMF "Carol Davila"
aprox.
873 m
University of Bucharest - Faculty of Foreign Languages and Literatures (en)
aprox.
923 m
Centrul de Limbi Straine Ariel
aprox.
924 m
Gradinita nr. 85
aprox.
221 m
Gradinita nr. 252 cu program prelungit
aprox.
236 m
Gradinita nr. 138 cu program prelungit
aprox.
372 m
Ioanid
aprox.
506 m
Gradinita Ioanid
aprox.
521 m
Gradinita numarul 133
aprox.
623 m
Gradinita nr. 116
aprox.
727 m
Gradinita cu program normal si prelungit Happy Kids
aprox.
928 m
Gradinita numarul 257
aprox.
946 m
Gradinita nr. 203 program prelungit
aprox.
975 m
Gradinita nr.203 (fosta Clementa)
aprox.
999 m
Gradinita nr.4 "Lizuca"
aprox.
1313 m
Gradinita de copii nr.251
aprox.
1318 m
Gradinita numarul 8
aprox.
1332 m
Grădinița nr. 252
aprox.
1333 m
BILLA - Dorobanti
aprox.
304 m
Bila Supermarket
aprox.
330 m
Mega Image - IANCU DE HUNEDOARA
aprox.
434 m
Bacania Coco
aprox.
632 m
Nik Non-Stop
aprox.
818 m
Mega Image Magheru
aprox.
824 m
Mega Image - Icoanei
aprox.
828 m
Mega Image Amzei Non-Stop
aprox.
882 m
ilanplant
aprox.
935 m
OK Non-stop Supermarket (en)
aprox.
952 m
OK Non-Stop
aprox.
952 m
Mega Image Concept Store
aprox.
963 m
Mega Image Rosetti Non-Stop
aprox.
1036 m
Mega Image
aprox.
1109 m
Mario Plaza
aprox.
1123 m
"METROPLIS CENTER"
aprox.
452 m
Parcare cu plata
aprox.
286 m
Parcare
aprox.
326 m
Parcare
aprox.
370 m
Parcare
aprox.
431 m
Parcare Subterana Metropolis Center
aprox.
447 m
Parcare
aprox.
518 m
Parcare spital
aprox.
543 m
Parcare
aprox.
543 m
Parcare
aprox.
557 m
Parcare
aprox.
561 m
Parcare
aprox.
618 m
Parcare
aprox.
662 m
Parcare privata
aprox.
728 m
Parcare
aprox.
749 m
Parcare
aprox.
763 m
Parc
aprox.
300 m
Parc
aprox.
420 m
Perla park
aprox.
420 m
Parcul Piata Romana
aprox.
523 m
Parcul "Ioanid"
aprox.
541 m
Parcul Ion Voicu
aprox.
544 m
Small park (en)
aprox.
677 m
Parc
aprox.
677 m
Parcul "Grădina Icoanei"
aprox.
743 m
Gradina Icoanei
aprox.
745 m
Parcul Ion C. Bratianu
aprox.
860 m
Statuia lui Ion (Ionel) I.C. Bratianu
aprox.
867 m
Parcul Ion I. C. Bratianu
aprox.
873 m
Parc
aprox.
895 m
Parc
aprox.
904 m
Piața Romană
aprox.
532 m
Piata Revolutiei
aprox.
1264 m
Piata Universitatii
aprox.
1564 m
Piata Rosetti
aprox.
1584 m
Piața Aviatorilor
aprox.
1655 m
Piata Latina
aprox.
1679 m
Piața Drapelului (Tricolorului)
aprox.
1704 m
Piata Bucur Obor
aprox.
1894 m
Piata Emil Cioran (Vergilius) (en)
aprox.
1935 m
Stadionul Dinamo
aprox.
552 m
Teren sportiv
aprox.
732 m
Teren sportiv
aprox.
739 m
Teren sportiv
aprox.
810 m
Teren sportiv
aprox.
818 m
Teren sportiv
aprox.
940 m
Teren sportiv
aprox.
976 m
Teren sportiv
aprox.
1434 m
Teren sportiv
aprox.
1542 m
Teren sportiv
aprox.
1633 m
Teren sportiv
aprox.
1637 m
Respawn B
aprox.
1667 m
Gradinita
aprox.
1727 m
Etaj 1 - Hala CQB
aprox.
1740 m
Parter - Hala mare
aprox.
1748 m
INFOSAN Clinica Oftalmologica
aprox.
183 m
policlinica centrul de diagnostic si tratament (CDT)
aprox.
190 m
Centrul de diagnostic si tratament
aprox.
195 m
policlinica de copii Grigore Alexandrescu
aprox.
200 m
Ambulatoriul de specialitate al Spitalului de copii Grigore Alexandrescu
aprox.
259 m
Doctor Carmen Sturza
aprox.
264 m
Bioderm Eminescu (en)
aprox.
337 m
Puls
aprox.
353 m
Laurus Medical
aprox.
382 m
Camera de Garda - Spitalul de Urgenta Floreasca
aprox.
411 m
Spitalul de Urgență Floreasca
aprox.
429 m
Spitalul de Urgenta Floreasca
aprox.
439 m
Spitalul de Oftalmologie
aprox.
487 m
Spitalul Clinic de Urgente Oftalmologice
aprox.
491 m
Spitalul Euroclinic
aprox.
498 m
Farmaplus
aprox.
227 m
Farmacia Terapia
aprox.
280 m
Farmaciile Polisano
aprox.
306 m
Farmacia Arta
aprox.
308 m
Farmacia Punkt
aprox.
308 m
SC. Farmed SRL
aprox.
327 m
Farmacia Dona 152
aprox.
350 m
Farmacie Dorobanti
aprox.
363 m
Produse naturale SECOM
aprox.
380 m
Farmacia HelpNet
aprox.
392 m
Farmaciamerk 2 Pharma
aprox.
405 m
Farmacie
aprox.
419 m
Depofarm
aprox.
424 m
Catena Farmacie
aprox.
436 m
Centrofarm 9
aprox.
437 m
ACAB Pub
aprox.
122 m
Zappa Rock & More
aprox.
295 m
Lokal
aprox.
298 m
Happy Pub
aprox.
420 m
Alan Dala
aprox.
427 m
Frame
aprox.
568 m
Piua Book Bar
aprox.
631 m
Cup & Cake
aprox.
839 m
Sky Bar
aprox.
934 m
MIM Bistro
aprox.
982 m
A1
aprox.
1004 m
El Bistro
aprox.
1063 m
Fratelli Espresso Bar
aprox.
1063 m
Trei Betivi
aprox.
1109 m
Que Pasa
aprox.
1173 m
Acuarela
aprox.
157 m
El Puerto Iberico
aprox.
253 m
cofetaria Nicola
aprox.
275 m
Beca's Kitchen
aprox.
300 m
Restaurant Cery-Lu
aprox.
329 m
Osteria Ciao Niki
aprox.
348 m
Noel
aprox.
362 m
Casa Enache (en)
aprox.
362 m
Crazy Kitchen
aprox.
370 m
Casa Enache
aprox.
375 m
Torna Fratre
aprox.
378 m
La Mama
aprox.
431 m
Centro
aprox.
438 m
Pizza Hut
aprox.
440 m
Restaurant La Mama (en)
aprox.
447 m
Tucano Coffee - Dorobanti
aprox.
286 m
Tucano Coffee
aprox.
299 m
Smart Change
aprox.
316 m
Mon Amour
aprox.
374 m
Music Rooms Cafe
aprox.
407 m
Shiva
aprox.
408 m
Reader's Cafe
aprox.
459 m
Cafe Boheme
aprox.
482 m
5 To Go Lahovari
aprox.
555 m
Cafe 3
aprox.
576 m
Hathor Cafe
aprox.
631 m
Nescafe Milano
aprox.
659 m
Camera din Fata
aprox.
773 m
Gradina Verona
aprox.
779 m
Gradina OAR
aprox.
816 m
Panik & Pub
aprox.
298 m
Open Pub
aprox.
333 m
Studio Martin
aprox.
465 m
Waldo's
aprox.
526 m
OLD NICK PUB
aprox.
557 m
Smart's Pub & Bistro
aprox.
1023 m
Doncafe Brasserie
aprox.
1264 m
Restaurant-pizzerie BONA DA ELENA
aprox.
1278 m
Have a Cigar
aprox.
1382 m
Le Cafe Inmedio
aprox.
1395 m
Coloseum
aprox.
1522 m
Question Mark Social Club
aprox.
1532 m
James Joyce's Pub & Restaurant
aprox.
1572 m
Edgar`s Pub
aprox.
1609 m
Bluzz
aprox.
1703 m
ING Stefan cel Mare - Polona
aprox.
306 m
BCR
aprox.
313 m
Banca Romaneasca
aprox.
313 m
CEC Bank
aprox.
330 m
Volksbank
aprox.
343 m
Banca Transilvania
aprox.
344 m
Banca Transilvania - Ag. Stefan cel Mare
aprox.
346 m
Piraeus Bank Romania - Agentia Stefan cel Mare
aprox.
350 m
Alpha Bank
aprox.
380 m
Banca Romana de Credite si Investitii
aprox.
400 m
Raiffeisen Bank
aprox.
411 m
Alpha Bank
aprox.
436 m
Raiffeisen Bank
aprox.
442 m
BRD Dacia
aprox.
454 m
ING Bank Metropolis
aprox.
485 m
Zona Ștefan cel Mare - Dacia - Eminescu - Armenească este destul de bine conectată cu alte cartiere din București prin intermediul mijloacelor de transport în comun. Printre acestea amintim autobuzul 605 pe care îl poți lua pentru a ajunge la mall-ul Băneasa Shopping City, tramvaiul 16 care te poate ajuta să ajungi la Piața Sf. Vineri și troleibuzul 86 care oferă o legătură directă cu Gara de Nord. Mai multe stații de metrou sunt și ele disponibile în apropiere. Este vorba despre Ștefan cel Mare și Obor, aflate pe magistrala 1 Dristor - Pantelimon, și despre Piața Romană și Universitate situate pe traseul magistralei 2 Berceni-Pipera. Consultă harta pentru a afla poziționarea exactă a stațiilor mijloacelor de transport în comun.
În zona Ștefan cel Mare - Dacia - Eminescu - Armenească vei găsi mai multe unități de învățământ, de stat și private. Amintim astfel Colegiul Național Școala Centrală de lângă Parcul Grădina Icoanei, Colegiul Național "Spiru Haret" de pe Strada Italiană, Colegiul Național "Cantemir Vodă" și Liceul Economic "Virgil Madgearu", ambele situate pe Bulevardul Dacia. Școala Sanitară Postliceală "Carol Davila" se află și ea în această zonă, iar Academia de Studii Economice din București poate fi găsită în apropiere, la Piața Romană. Consultă harta pentru a vedea care vor fi cele mai apropiate grădinițe, școli și licee de viitoarea ta locuință.
În această zonă vei găsi, în principal, magazine mici și câteva supermarketuri. La intersecția dintre Bulevardul Dacia și Strada Vasile Lascăr vei avea la dispoziție Piața Gemeni și un concept store Mega Image. Cel mai apropiat mall este situat în zona Obor. Este vorba despre Veranda Mall, unul dintre cele mai noi astfel de centre comerciale din București. Tot aici găsești magazinul Bucur Obor și o piață. Cu mașina poți ajunge destul de rapid și la mall-ul Promenada sau la complexul comercial cu magazin Kaufland și Carrefour Market de pe Strada Barbu Văcărescu. Consultă harta și află ce alte opțiuni mai ai aproape de viitoarea ta casă, dar și în împrejurimi.
Îți recomandăm să verifici dacă există posibilitatea închirierii unui loc de parcare în apropierea locuinței de care ești interesat. Poți face acest lucru apelând la Serviciul Parcări din cadrul ADP Sector 2. Atunci îți aducem în atenție faptul că Bulevardul Dacia, Strada Mihai Eminescu și Strada Polonă sunt unele dintre cele mai circulate din această zonă. Trafic intens vei întâlni, totodată, la intersecția dintre Calea Dorobanți, Bulevardul Dacia și Strada Mihai Eminescu. Aglomerație vei găsi și pe Bulevardul Ștefan cel Mare, mai ales la orele de vârf și în zilele în care se organizează evenimente sportive în cadrul stadionului Dinamo. Consultă harta și vezi unde se găsesc principalele parcări din această zonă.
În zona Ștefan cel Mare - Dacia - Eminescu - Armenească se organizează periodic diferite evenimente, de la ateliere, la festivaluri și demonstrații de artă stradală. Dacă te vei muta în această parte a orașului, vei avea la doi pași de casă mai multe ceainării, restaurante, spații unde se organizează jocuri de tip escape room și trei teatre - Țăndărică, Metropolis și Bulandra. Pentru evenimente culturale și seri de film vei putea merge pe Bulevardul Dacia, la Institutul Francez din București. Ajungi repede și în centru, unde poți fi spectatorul unei piese puse în scenă de actorii Teatrului Național București. Parcurile Grădina Icoanei și Ioanid, deși sunt destul de restrânse ca suprafață, sunt unele dintre cele mai frumoase din această parte a orașului. Totodată, în nordul acestei zone, în imediata apropiere a Șoselei Ștefan cel Mare, vei găsi Circul Metropolitan București și parcul acestuia, iar în vecinătatea lor Stadionul Dinamo și complexul său sportiv. Nu uita, totodată, că din această zonă vei ajunge destul de rapid în Centrul Vechi, unde pe lângă terase și restaurante găsești și câteva obiective turistice care merită vizitate măcar o dată. Află ce alte puncte de interes găsești în zona Ștefan cel Mare - Dacia - Eminescu - Armenească și din vecinătatea acesteia. Consultă harta.
Dacă te vei muta în această zonă, vei avea la dispoziție mai multe spitale și clinici private. Printre acestea se numără Spitalul Clinic Dr. Ion Cantacuzino din zona Pieței Gemeni și Spitalul Ion Stroia . Alte unități sanitare din vecinătate sunt Spitalul Clinic Colentina, Spitalul Sf. Ștefan, Spitalul Clinic de Urgență București (cunoscut și ca Floreasca) și Spitalul Euroclinic din rețeaua privată de sănătate Regina Maria. Toate acestea sunt concentrate în nordul zonei Ștefan cel Mare - Dacia - Eminescu - Armenească, în vecinătatea Stadionului Dinamo și a Parcului Circului. Vezi pe hartă localizarea exactă a unităților medicale de mai sus.
Presărate pe străzile din această zonă găsești mai multe terase și restaurante mici. Câteva dintre cele mai cochete se află în vechiul cartier Armenesc. De aici ajungi extrem de repede și în Centrul Vechi al orașului, pentru mai multă diversitate. Fiind atât de aproape de centrul orașului, vei avea la dispoziție extrem de multe opțiuni. Restaurantele și cafenelele din Dorobanți sau de pe Calea Floreasca pot fi cu siguranță pe gustul tău. Dacă vrei să faci și o plimbare, să admiri arhitectura frumoasă a vechilor clădiri din București și să te oprești la o cafea sau la o prăjitură, atunci Calea Victoriei poate fi ideală. Pentru o mică gustare sau un meniu fast food ai mai multe variante în zona Obor, iar dacă te grăbești atunci poți încerca drive through-ul McDonald"™s de pe Strada Barbu Văcărescu. Aruncă o privire pe hartă și vezi ce alte restaurante, terase sau cafenele ai în zonă.
Găsești mai multe sucursale bancare și ATM-uri în special pe Șoseaua Ștefan cel Mare. Aruncă o privire pe hartă și vezi ce alte opțiuni găsești în apropierea viitoarei tale locuințe.
Înainte să pleci...
Ești sigur că ai văzut și aceste proprietăți?
1.299.000 €
București, Primăverii
7 camere
300 mp
250 mp teren
1.350.000 €
București, Dorobanți
8 camere
484,53 mp
179,08 mp teren
1.350.000 €
București, Iancu Nicolae
6 camere
400 mp
738 mp teren
Creează alertă
Salvează căutarea ca să primești pe email ultimele anunțuri publicate
Case individuale cu 4+ camere de vânzare în zona Polonă, Sector 1
Cere detalii prin email
*
*
*
*
Detaliile tale de contact vor fi partajate cu Svn Romania | Residentialist | Victoriei