7

Vila Primaverii 480 mp desfasurati teren 250 mp utili garaj

1.299.000 €

Primăverii, București

Nr. cam.:
7
Sup. utilă:
300 mp
Sup. teren:
250 mp
Tip prop.:
Individuală
  • • Locație aproximativă

Descriere casă

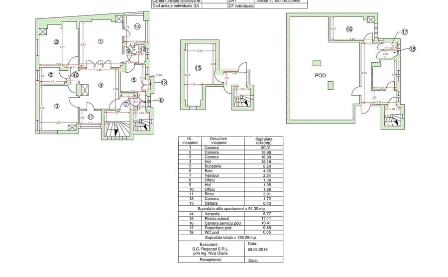
Va propunem spre vanzare un imobil compus din casa cu suprafata utila 300 mp, desfasurat 400 mp si teren 249 mp, din care curte libera 100 mp, pozitionat in cartierul Primaverii. Momentan proprietatea este compusa din doua apartamente, proprietari diferiti, ambii doresc vanzarea, pretul agreat va fi impartit intre cei doi. In urma amenajarilor, se poate pastra actuala compartimentare de doua apartamente, se poate intregi toata casa, sau se pot crea 3 unitati locative. Casa are un regim de inaltime de Demisol+P+1+Pod, a fost edificata in anii 1936, pe structura compusa din grinzi, stalpi si plansee din beton, iar peretii de compartimentare exterioara si interioara sunt din caramida plina. Aceasta este compusa din doua apartamente cu intrari separate care insumeaza 7 camere, 4 grupuri sanitare, doua bucatarii, anexe, subsol si pod. Amprenta la sol a acesteia este de 132 mp si dispune de o curte perimetrala de 100 mp. Pentru detalii sau programarea unei vizionari va stau la dispozitie.
Citește mai mult Citește mai puțin
1 Garaj

Detalii casă

ID anunț: XCRT1107F Copiat! 274998619 Copiat!
Actualizat în: 17 Februarie 2026
Tip tranzacție: De vânzare prin agent
Suprafață construită: 132 mp
Suprafață desfășurată: 480 mp
Nr. bucătării: 2
Nr. băi: 4
Nr. balcoane / Terase / Logii: 1
Nr. terase: 1
Front stradal: 14.0 m
Învelitoare acoperiș: Țiglă
An construcție: 1936 (Finalizată)
Structură rezistență: Beton
Regim înălțime: S+P+1E
Modalitate de plată: Cash sau Credit

Utilități

Utilități
Curent Apă Canalizare CATV Gaze Telefon
Internet
Cablu
Amenajare străzi
Iluminat stradal Mijloace de transport în comun Asfaltate
Comision
standard

Vecinătăți:

Primaverii
Televiziunea Romana
Piata Charles des Gaulle

Disponibilitate proprietate:

Imediat

Puncte de interes

Mijloace transport
bus-station
Statia Piata Charlles de Gaulle linii : 131,282,301,330,331,335.
Stații autobuz aprox. 467 m
bus-station
Statia Piata Dorobantilor, linia 131, 182, 330, 331, 335, 282, N113, 301
Stații autobuz aprox. 544 m
metro-station
Piata Aviatorilor (M2)
Stații metrou aprox. 585 m
tram-station
Ceaikovski
Stații tramvai aprox. 1139 m
Școală
school
Liceul "Jean Monnet"
Școli aprox. 59 m
school
Scoala gimnaziala "Titu Maiorescu"
Școli aprox. 745 m
kindergarten
Paradisul Copiilor
Gradinițe aprox. 765 m
university
Universitatea Atenaeum
Universități aprox. 997 m
Recreere
park
Parc
Parcuri aprox. 148 m
supermarket
Mega Image
Supermarket aprox. 450 m
sports-ground
Teren sportiv
Terenuri sport aprox. 563 m
mall
"METROPLIS CENTER"
Mall aprox. 1500 m

Proprietăți similare

Casă individuală cu 7 camere în Iancu Nicolae
1.249.400 €
București, Iancu Nicolae
7 camere
336 mp
1.200 mp teren
Casă individuală cu 6 camere în Dorobanți
1.400.000 €
București, Dorobanți
6 camere
250 mp
200 mp teren
Casă individuală cu 6 camere în Iancu Nicolae
1.350.000 €
București, Iancu Nicolae
6 camere
321 mp
796 mp teren

Detalii de contact

GOPO REAL ESTATE

Paul Gaitan Sales Manager

GOPO REAL ESTATE
PRO

Abonează-te la newsletter să fii primul care primește cele mai noi recomandări de proprietăți și sfaturi de la experți.

CONTACT

Creează alertă

Salvează căutarea ca să primești pe email ultimele anunțuri publicate

Case individuale cu 4+ camere de vânzare în zona Primăverii, Sector 1