88

Bucurestii Noi, Straulesti, casa suprafata 168mp, 5 camere, teren 388mp

235.000 €

Străulești, București

Nr. cam.:
5
Sup. utilă:
143 mp
Sup. teren:
388 mp
Tip prop.:
Individuală
  • • Locație aproximativă

Descriere casă

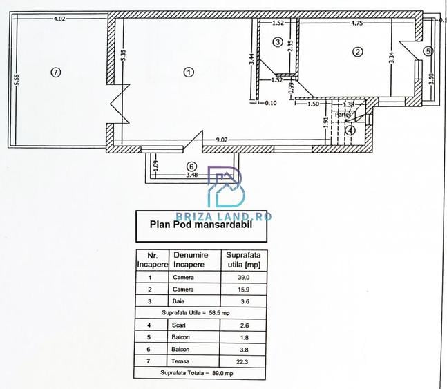
Agentia BrizaLand propune spre vanzare casa Parter + Pod mansardabil, localizata in Bucurestii Noi, cartier Straulesti, constructie 1962, suprafata construita totala 168mp, suprafata construita la sol 96mp, suprafata utila totala ~ 143mp, 5 camere, 2 bai, anexa curte 15mp, cu teren cu suprafata de 388mp, si deschidere de 12.86m. Compartimentare: Parter ( suprafata utila totala 76.5mp ) : hol, 3 camere, bucatarie, baie, Pod mansardabil ( suprafata utila totala ~ 66.7mp ) : propus - hol, 2 camere, baie, 2 balcoane, terasa. Anexa curte ( suprafata utila totala 12mp ) : bucatarie 7mp, baie 5mp. Structura de rezistenta : pereti portanti din caramida, planseu si Pod mansardabil pe structura usoara. Finisaje : casa a fost consolidata in 1991 si renovata total in 2018 : decopertata pana la caramida, montata plasa de Buzau, tencuiata, glet si lavabila, turnate sape de ciment, s-a construit podul mansardabil, bransamentul nou de curent, instalatii sanitare si de incazire noi, gresie, faianta, parchet laminat, geamuri termopan tripan 6 camere, usi interioare celulare, usa de intrare metalica, centrala termica in condensatie Viessmann, calorifere, aer conditionat, prize si intrerupatoare Legrand; exterior izolat polistiren si tencuit decorativ, acoperis tigla metalica Bilka. Transport : este situata la 7 minute de mers pe jos fata de statia stb si la 3 minute cu masina fata de statia de metrou Straulesti si de terminalul modal cu parcare supraetajata. Situatie juridica: cadastru si intabulare; extras carte funciara liber de sarcini. Podul mansardabil nu este intabulat. Puncte de interes: Mega Image shop&go, farmacia M si cofetaria Art Desert la 8 minute de mers pe jos, zona comerciala si magazine Lidl si Kaufland la 14 minute de mers pe jos (respectiv 2 minute cu masina), Școala Gimnaziala Nr. 13 la 7 minute de mers pe jos, mall Colosseum la 6 minute cu masina, parcul Basilescu si piata 16 Februarie la 7 minute cu masina, mall Baneasa la 12 minute cu masina. Alte detalii: bransata la toate utilitatile : apa, gaze, canalizare, curent + put cu hidrofor. sistem fotovotaic de 5. 2 Kw, invertor hibrid huawei, cu conventie de prosumator sistem de supraveghere HIKVISION curte mare, gazon, gradina cu pomi fructiferi Pret : 235.000eur
Citește mai mult Citește mai puțin
Aer condiționat Centrală proprie 2 Parcări

Detalii casă

ID anunț: X9GH0105K Copiat! 235483086 Copiat!
Actualizat în: 12 August 2025
Suprafață construită: 96 mp
Suprafață desfășurată: 168 mp
Nr. bucătării: 1
Nr. băi: 2
Nr. balcoane / Terase / Logii: 2
Front stradal: 12.86 m
Învelitoare acoperiș: Tabla
An construcție: 1962 (În construcție)
Structură rezistență: Cărămidă
Regim înălțime: P

Utilități

Utilități
Curent Apă Canalizare Gaze
Amenajare străzi
Asfaltate Mijloace de transport în comun Iluminat stradal
Comision
standard

Puncte de interes

Mijloace transport
bus-station
Statia Doi Cocosi linia 304
Stații autobuz aprox. 464 m
metro-station
Străulești (M4)
Stații metrou aprox. 814 m
bus-station
Straulesti
Stații autobuz aprox. 906 m
tram-station
Laromet
Stații tramvai aprox. 1820 m
Școală
school
Scoala Generala Nr. 13
Școli aprox. 469 m
school
Scoala 13
Școli aprox. 476 m
school
Camin Scoala Generala Nr. 181
Școli aprox. 1745 m
school
Scoala 181
Școli aprox. 1773 m
Recreere
supermarket
Mega Image
Supermarket aprox. 208 m
restaurant
Doi Cocosi
Restaurant aprox. 516 m
sports-ground
Teren sportiv
Terenuri sport aprox. 689 m
park
Strandul Straulesti
Parcuri aprox. 719 m

Detalii despre preț și costuri

Costuri cu achiziția

Fără credit
10.968 RON
Credit ipotecar
13.078 RON
Noua casă
1.337 RON+ taxe notariale

i

Costuri adiționale mai puțin știute la achiziție: taxe notariale, comisioane etc.

Proprietăți recomandate

Detalii de contact

BRIZA LAND SRL

Bunea Bogdan admin

3.83(8 review-uri)

BRIZA LAND SRL
PRO

Abonează-te la newsletter să fii primul care primește cele mai noi recomandări de proprietăți și sfaturi de la experți.

CONTACT

Creează alertă

Salvează căutarea ca să primești pe email ultimele anunțuri publicate

Case individuale cu 4+ camere de vânzare în zona Străulești, Sector 1