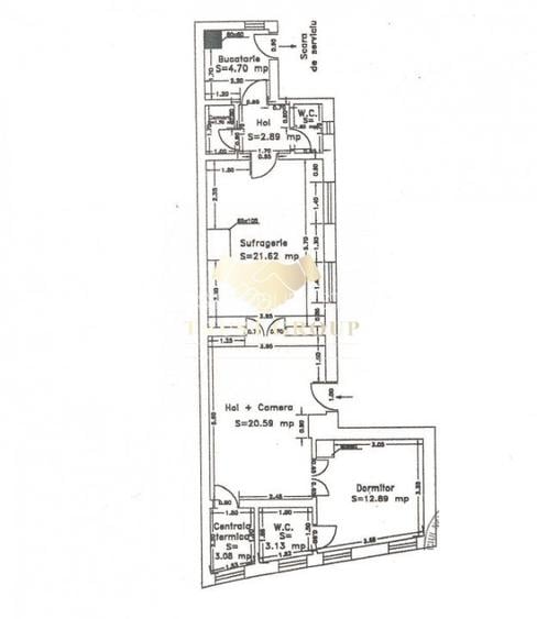
Acest imobil unic, format din doua corpuri de cladire cu regim de inaltime P+2, este ideal pentru diverse utilizari, fie rezidentiale, fie comerciale. Ambele corpuri sunt separate de o curte interioara de 85 mp, oferind un spatiu privat si functional. Cu o suprafata totala de 325 mp utili, imobilul include 10 camere, 2 bucatarii si 6 grupuri sanitare, fiind o optiune excelenta pentru activitati precum notariat, birou de avocatura, spatiu comercial, restaurant sau scoala.
Corpul A este construit in anii 50, iar corpul B in 2004
In trecut, proprietatea a functionat ca scoala privata, iar structura sa ofera flexibilitate pentru diferite tipuri de afaceri. Mentionam ca in corpul A exista un apartament de 3 camere la etajul 2, detinut de un alt proprietar, insa exista posibilitatea ofertarii acestuia pentru o eventuala achizitie completa a cladirii.
Pentru vizionari sau informatii suplimentare, va stam la dispozitie!
Sediul central - Timișoara
Bulevardul Victor Babeș nr. 2, 300230, Timișoara, România
Tel: +40.374.40.44.98 / Fax: +40.256.401.179
Email: suport@imobiliare.ro
Luni - Vineri 08:00 - 20:00
Punct de lucru - București: Iride Business Park, Bld. Dimitrie
Pompeiu 9-9A, Clădirea B2B,
020335, Sector 2, București, România
CONTACT
Sediul central - Timișoara
Bulevardul Victor Babeș nr. 2, 300230, Timișoara, România
Tel: +40.374.40.44.98 / Fax: +40.256.401.179
Email: suport@imobiliare.ro
Luni - Vineri 08:00 - 20:00
Punct de lucru - București: Iride Business Park, Bld. Dimitrie
Pompeiu 9-9A, Clădirea B2B,
020335, Sector 2, București, România
Sună acum și cere detalii sau programează o vizionare.
Cere detalii prin email
*
*
*
*
Stații tramvai
Stații autobuz
Stații metrou
Stații troleibuz
Școli
Gradinițe
Universități
Supermarket
Mall
Parcări
Parcuri
Terenuri sport
Piețe publice
Spital
Farmacie
Restaurant
Bar
Cafenea
Pub
Bancă
Mihai Eminescu
aprox.
93 m
Statia Mihai Eminescu; Linia:16
aprox.
146 m
Statia Toamnei; Linia:16
aprox.
252 m
Toamnei
aprox.
266 m
Statia Piata Gemeni; Linia:5, 16
aprox.
354 m
Teatrul Metropolis
aprox.
475 m
Teatrul Metropolis
aprox.
532 m
Dr. Grozovici
aprox.
549 m
Dr. Grozovici
aprox.
553 m
Vasile Lascar
aprox.
588 m
Statia Calea Mosilor; Linia: 21
aprox.
618 m
Mihai Eminescu
aprox.
618 m
Vasile Lascar
aprox.
618 m
Soseaua Stefan cel Mare
aprox.
619 m
Lizeanu
aprox.
632 m
Mihai Eminescu
aprox.
146 m
Statia Dr. Grozovici, linia 330, 335, 1, 46
aprox.
557 m
Statia Lizeanu / Soseaua Stefan cel Mare, linia 330, 335, 1, 16, 46
aprox.
627 m
Statia Vasile Lascar, linia 330, 335, 1, 46
aprox.
632 m
Statia Fainari; Liniile:N101, 66
aprox.
670 m
Maria Rosetti
aprox.
722 m
Statia Bucur Obor; Liniile:143, 254, N101, 101
aprox.
803 m
Obor
aprox.
837 m
Statia Soseaua Stefan cel Mare / Stadion Dinamo, linia N123,1, 5, 46
aprox.
837 m
Stefan cel Mare
aprox.
897 m
Batistei
aprox.
913 m
Statia Batistei; Linia:N123
aprox.
923 m
Batistei
aprox.
972 m
Statia Soseaua Stefan cel Mare / Stadion Dinamo, linia 1, 5, 46, N123
aprox.
1005 m
Stefan cel Mare
aprox.
1018 m
Statia Metrou Piata Obor(M1)Metrorex
aprox.
837 m
Metrorex. Stația Obor (M1)(1989)(Fosta statie de tramvai subterana)
aprox.
866 m
Metrorex. Stația Ștefan cel Mare (M1)(1989)
aprox.
953 m
Statia Metrou Piata Romana(M2)Metrorex
aprox.
1306 m
Statia Metrou Piata Romana(M2)Metrorex
aprox.
1320 m
Metrorex. Stația Piața Romană (M2)(1988)
aprox.
1323 m
Piata Romana (M2)
aprox.
1323 m
Statia Soseaua Mihai Bravu, linia 14
aprox.
1340 m
Metrorex. Stația Universitate (M2)(1987)
aprox.
1568 m
Universitate (M2)
aprox.
1643 m
Statia Metrou Piata Universitatii(M2)Metrorex
aprox.
1648 m
Statia Metrou Piata Universitatii(M2)Metrorex
aprox.
1689 m
Statia Foisorul de Foc linii : 79,86
aprox.
976 m
Statia Calea Dorobantilor; Liniile:79, 86,
aprox.
1153 m
Statia Mihai Bravu; Liniile:69, 85,
aprox.
1336 m
Statia Soseaua Mihai Bravu, linia 68,85
aprox.
1340 m
Statia Piata Romana linii : 79,86
aprox.
1346 m
Statia Teiul Doamnei, linia 66
aprox.
1460 m
Statia Soseaua Pantelimon 85, 69
aprox.
1612 m
Statia Piata Iancului, linia 55
aprox.
1635 m
Scoala Pentru Hipoacuzici
aprox.
242 m
Liceul Tehnologic Special nr. 3
aprox.
248 m
Colegiul National "Cantemir-Voda"
aprox.
253 m
Gradinita Magnolia
aprox.
337 m
Scoala Postliceala Carol Davila (en)
aprox.
342 m
ȘCOALA DE ARTE ȘI MESERII NR. 3
aprox.
494 m
Scoala de Arte si Meserii Nr. 3
aprox.
524 m
Grădinița (en)
aprox.
586 m
Scoala nr. 23
aprox.
612 m
Școala Nr. 23 Sf. Silvestru (en)
aprox.
614 m
Scoala generala nr. 24
aprox.
695 m
Scoala nr. 24
aprox.
696 m
Scoala Generala nr.28
aprox.
775 m
Scoala Generala nr. 28
aprox.
775 m
Cursuri Paleologu
aprox.
801 m
Gradinita numarul 8
aprox.
443 m
Gradinita numarul 133
aprox.
618 m
Gradinita numarul 257
aprox.
633 m
Gradinita nr. 138 cu program prelungit
aprox.
734 m
Gradinita Ioanid
aprox.
839 m
Ioanid
aprox.
852 m
Gradinita
aprox.
985 m
Gradinita nr. 85
aprox.
1143 m
Gradinita nr. 203 program prelungit
aprox.
1152 m
Gradinita nr.203 (fosta Clementa)
aprox.
1154 m
Gradinita nr. 252 cu program prelungit
aprox.
1230 m
Gradinita nr.4 "Lizuca"
aprox.
1288 m
Gradinita Magica
aprox.
1322 m
Gradinita numarul 135
aprox.
1360 m
Amalia's Kindergarten (en)
aprox.
1365 m
CROS - Universitatea Alternativa
aprox.
812 m
Universitatea Spiru Haret - Facultatea de Medicina veterinara
aprox.
1146 m
Rectoratul UMF "Carol Davila"
aprox.
1158 m
ASE - Cibernetica
aprox.
1185 m
Universitatea din Bucuresti - Facultatea de Stiinte Politice
aprox.
1214 m
Facultatea de Stiinte Politice
aprox.
1224 m
ASE Cibernetica (en)
aprox.
1225 m
ASE - Facultatea de Comert
aprox.
1233 m
University of Bucharest - Faculty of Foreign Languages and Literatures (en)
aprox.
1256 m
Centrul de Limbi Straine Ariel
aprox.
1263 m
ASE - Cladirea Cihoschi
aprox.
1320 m
Amfiteatrele ASE
aprox.
1320 m
ASE - Sala de sport
aprox.
1328 m
Facultatea de Instalatii (en)
aprox.
1329 m
Academia de Studii Economice
aprox.
1344 m
Mega Image Concept Store
aprox.
400 m
Mega Image
aprox.
520 m
Stock Market
aprox.
624 m
Mega Image Supermarket
aprox.
635 m
Mega Image Lizeanu Non-Stop
aprox.
649 m
Mega Image Fainari
aprox.
668 m
Mega Image
aprox.
710 m
Mega Image - Icoanei
aprox.
745 m
Mega Image
aprox.
799 m
Mega Image
aprox.
843 m
OK Non-stop Supermarket (en)
aprox.
880 m
OK Non-Stop
aprox.
880 m
Bucur Obor
aprox.
1051 m
Mega Image
aprox.
1058 m
Spectrum
aprox.
1090 m
"METROPLIS CENTER"
aprox.
1431 m
Parcare
aprox.
364 m
Parcare
aprox.
468 m
Parcare
aprox.
748 m
Parcare
aprox.
748 m
Parcare
aprox.
938 m
Parcare
aprox.
941 m
Parcare
aprox.
965 m
Parcare
aprox.
1007 m
Parcare
aprox.
1012 m
Parcare
aprox.
1018 m
Parcare
aprox.
1043 m
Parcare
aprox.
1060 m
Parcare
aprox.
1060 m
Parcare
aprox.
1065 m
Parcare
aprox.
1081 m
Parc
aprox.
206 m
Parc
aprox.
211 m
Parc
aprox.
488 m
Parc
aprox.
605 m
Parcul Ion Voicu
aprox.
779 m
Parcul "Ioanid"
aprox.
786 m
Parc
aprox.
897 m
Parc
aprox.
920 m
60 Minutes
aprox.
933 m
Gradina Icoanei
aprox.
941 m
Parcul "Grădina Icoanei"
aprox.
948 m
Rond
aprox.
957 m
Parculet
aprox.
964 m
Parc
aprox.
989 m
Parcul Circului(1961)
aprox.
1001 m
Respawn B
aprox.
874 m
Etaj 1 - Hala CQB
aprox.
959 m
Parter - Hala mare
aprox.
965 m
Gradinita
aprox.
970 m
Respawn A
aprox.
995 m
Stadionul Dinamo
aprox.
1223 m
Teren sportiv
aprox.
1325 m
Teren sportiv
aprox.
1325 m
Teren sportiv
aprox.
1377 m
Teren sportiv
aprox.
1413 m
Teren sportiv
aprox.
1438 m
Teren sportiv
aprox.
1616 m
Teren sportiv
aprox.
1696 m
Teren sportiv
aprox.
1920 m
Teren sportiv
aprox.
1931 m
Piata Bucur Obor
aprox.
944 m
Piata Latina
aprox.
1099 m
Piața Romană
aprox.
1378 m
Piata Rosetti
aprox.
1419 m
Piata Universitatii
aprox.
1593 m
Piata Revolutiei
aprox.
1622 m
Piata Iancului
aprox.
1708 m
Piața Drapelului (Tricolorului)
aprox.
1918 m
Piata Roma
aprox.
1983 m
SERVICIUL DE AMBULANTA BUCURESTI-ILFOV
aprox.
307 m
Cabinet Gineco
aprox.
351 m
Centrul medical Sanatatea TA
aprox.
388 m
Optim Sano
aprox.
426 m
Clinica de oftalmologie Ama Optimex
aprox.
431 m
Spitalul Cantacuzino
aprox.
446 m
Institutul de Diabet NCPaulescu (en)
aprox.
473 m
Dacia Medical Center
aprox.
484 m
Clinica Audionova
aprox.
510 m
PAVILIONUL A
aprox.
593 m
PAVILIONUL F
aprox.
628 m
PAVILIONUL G
aprox.
656 m
Centrul Medical Hiperdia
aprox.
657 m
Puls
aprox.
661 m
PAVILIONUL H
aprox.
665 m
Colvimed
aprox.
379 m
Farmacia Artafarm
aprox.
407 m
Sensiblu
aprox.
502 m
Catena
aprox.
526 m
Belladonna 43
aprox.
531 m
Farmacia Ana Maria
aprox.
534 m
Pharma Life
aprox.
540 m
Flavona
aprox.
545 m
Farmaciile Reteta
aprox.
548 m
Farmacia Belladonna 38
aprox.
563 m
Farmacia Humanitas
aprox.
570 m
Help Net Farma
aprox.
573 m
Farmacie
aprox.
580 m
Unitatea 141
aprox.
580 m
Farmacia Alissa Retail
aprox.
585 m
Amore Trattoria
aprox.
138 m
Templul Soarelui
aprox.
144 m
Saphir
aprox.
182 m
El Vino Tapas & Wine
aprox.
195 m
La Taverna Bar & Grill
aprox.
213 m
Zexe Zahana
aprox.
279 m
Newton Restaurant (en)
aprox.
331 m
Rotiseria Dacia 131
aprox.
342 m
Torega
aprox.
346 m
Marele Zid
aprox.
388 m
cam aici ar fi Restaurant Lotca
aprox.
428 m
Haveli
aprox.
433 m
Templul Soarelui
aprox.
477 m
Restaurant chinezesc "Templul soarelui"
aprox.
484 m
Bistro
aprox.
487 m
E... Varza
aprox.
473 m
MIM Bistro
aprox.
519 m
Alan Dala
aprox.
629 m
Trei Betivi
aprox.
765 m
Lokal
aprox.
788 m
La Baraca
aprox.
936 m
ACAB Pub
aprox.
1037 m
Antic Bar
aprox.
1077 m
Voltage Bar
aprox.
1086 m
Piua Book Bar
aprox.
1093 m
Geo Bar
aprox.
1118 m
Zappa Rock & More
aprox.
1178 m
Cup & Cake
aprox.
1185 m
Que Pasa
aprox.
1213 m
RSS Pub
aprox.
1263 m
Shiva
aprox.
622 m
Smart Change
aprox.
688 m
Slot Cafe
aprox.
835 m
Cappucini
aprox.
937 m
Hathor Cafe
aprox.
989 m
Hobby Caffe & Shop
aprox.
1044 m
Newton Caffe
aprox.
1054 m
Vesuvio Cafe
aprox.
1064 m
5 To Go Lahovari
aprox.
1076 m
Cafe Lautrec
aprox.
1077 m
OstrawVegan
aprox.
1087 m
Music Rooms Cafe
aprox.
1136 m
Lente Arcului
aprox.
1142 m
Tucano Coffee
aprox.
1145 m
Mon Amour
aprox.
1148 m
Smart's Pub & Bistro
aprox.
665 m
Waldo's
aprox.
684 m
Open Pub
aprox.
781 m
Bluzz
aprox.
982 m
Panik & Pub
aprox.
1011 m
Terasa Rustica Foisor
aprox.
1026 m
OLD NICK PUB
aprox.
1091 m
Have a Cigar
aprox.
1256 m
Restaurant-pizzerie BONA DA ELENA
aprox.
1285 m
Le Boutique Food Concept Store
aprox.
1314 m
Studio Martin
aprox.
1408 m
Club Surubelnita
aprox.
1528 m
La Scena
aprox.
1671 m
Coloseum
aprox.
1720 m
Clock`s
aprox.
1759 m
BRD Vasile Lascar
aprox.
345 m
Raiffeisen Bank - Agentia Lizeanu
aprox.
531 m
UniCredit Bank - Ag. Lizeanu
aprox.
556 m
Sucursala ING Bank (en)
aprox.
575 m
BRD
aprox.
585 m
Raiffaisen bank
aprox.
585 m
Banca Carpatica
aprox.
588 m
Raiffeisen Bank - Agentia Mosilor
aprox.
590 m
BRD Mosilor
aprox.
591 m
ING Stefan cel Mare - Lizeanu
aprox.
593 m
BRD Lizeanu
aprox.
597 m
Piraeus Bank
aprox.
607 m
BCR
aprox.
609 m
Banca Romaneasca
aprox.
614 m
Libra Bank
aprox.
636 m
Zona Ștefan cel Mare - Dacia - Eminescu - Armenească este destul de bine conectată cu alte cartiere din București prin intermediul mijloacelor de transport în comun. Printre acestea amintim autobuzul 605 pe care îl poți lua pentru a ajunge la mall-ul Băneasa Shopping City, tramvaiul 16 care te poate ajuta să ajungi la Piața Sf. Vineri și troleibuzul 86 care oferă o legătură directă cu Gara de Nord. Mai multe stații de metrou sunt și ele disponibile în apropiere. Este vorba despre Ștefan cel Mare și Obor, aflate pe magistrala 1 Dristor - Pantelimon, și despre Piața Romană și Universitate situate pe traseul magistralei 2 Berceni-Pipera. Consultă harta pentru a afla poziționarea exactă a stațiilor mijloacelor de transport în comun.
În zona Ștefan cel Mare - Dacia - Eminescu - Armenească vei găsi mai multe unități de învățământ, de stat și private. Amintim astfel Colegiul Național Școala Centrală de lângă Parcul Grădina Icoanei, Colegiul Național "Spiru Haret" de pe Strada Italiană, Colegiul Național "Cantemir Vodă" și Liceul Economic "Virgil Madgearu", ambele situate pe Bulevardul Dacia. Școala Sanitară Postliceală "Carol Davila" se află și ea în această zonă, iar Academia de Studii Economice din București poate fi găsită în apropiere, la Piața Romană. Consultă harta pentru a vedea care vor fi cele mai apropiate grădinițe, școli și licee de viitoarea ta locuință.
În această zonă vei găsi, în principal, magazine mici și câteva supermarketuri. La intersecția dintre Bulevardul Dacia și Strada Vasile Lascăr vei avea la dispoziție Piața Gemeni și un concept store Mega Image. Cel mai apropiat mall este situat în zona Obor. Este vorba despre Veranda Mall, unul dintre cele mai noi astfel de centre comerciale din București. Tot aici găsești magazinul Bucur Obor și o piață. Cu mașina poți ajunge destul de rapid și la mall-ul Promenada sau la complexul comercial cu magazin Kaufland și Carrefour Market de pe Strada Barbu Văcărescu. Consultă harta și află ce alte opțiuni mai ai aproape de viitoarea ta casă, dar și în împrejurimi.
Îți recomandăm să verifici dacă există posibilitatea închirierii unui loc de parcare în apropierea locuinței de care ești interesat. Poți face acest lucru apelând la Serviciul Parcări din cadrul ADP Sector 2. Atunci îți aducem în atenție faptul că Bulevardul Dacia, Strada Mihai Eminescu și Strada Polonă sunt unele dintre cele mai circulate din această zonă. Trafic intens vei întâlni, totodată, la intersecția dintre Calea Dorobanți, Bulevardul Dacia și Strada Mihai Eminescu. Aglomerație vei găsi și pe Bulevardul Ștefan cel Mare, mai ales la orele de vârf și în zilele în care se organizează evenimente sportive în cadrul stadionului Dinamo. Consultă harta și vezi unde se găsesc principalele parcări din această zonă.
În zona Ștefan cel Mare - Dacia - Eminescu - Armenească se organizează periodic diferite evenimente, de la ateliere, la festivaluri și demonstrații de artă stradală. Dacă te vei muta în această parte a orașului, vei avea la doi pași de casă mai multe ceainării, restaurante, spații unde se organizează jocuri de tip escape room și trei teatre - Țăndărică, Metropolis și Bulandra. Pentru evenimente culturale și seri de film vei putea merge pe Bulevardul Dacia, la Institutul Francez din București. Ajungi repede și în centru, unde poți fi spectatorul unei piese puse în scenă de actorii Teatrului Național București. Parcurile Grădina Icoanei și Ioanid, deși sunt destul de restrânse ca suprafață, sunt unele dintre cele mai frumoase din această parte a orașului. Totodată, în nordul acestei zone, în imediata apropiere a Șoselei Ștefan cel Mare, vei găsi Circul Metropolitan București și parcul acestuia, iar în vecinătatea lor Stadionul Dinamo și complexul său sportiv. Nu uita, totodată, că din această zonă vei ajunge destul de rapid în Centrul Vechi, unde pe lângă terase și restaurante găsești și câteva obiective turistice care merită vizitate măcar o dată. Află ce alte puncte de interes găsești în zona Ștefan cel Mare - Dacia - Eminescu - Armenească și din vecinătatea acesteia. Consultă harta.
Dacă te vei muta în această zonă, vei avea la dispoziție mai multe spitale și clinici private. Printre acestea se numără Spitalul Clinic Dr. Ion Cantacuzino din zona Pieței Gemeni și Spitalul Ion Stroia . Alte unități sanitare din vecinătate sunt Spitalul Clinic Colentina, Spitalul Sf. Ștefan, Spitalul Clinic de Urgență București (cunoscut și ca Floreasca) și Spitalul Euroclinic din rețeaua privată de sănătate Regina Maria. Toate acestea sunt concentrate în nordul zonei Ștefan cel Mare - Dacia - Eminescu - Armenească, în vecinătatea Stadionului Dinamo și a Parcului Circului. Vezi pe hartă localizarea exactă a unităților medicale de mai sus.
Presărate pe străzile din această zonă găsești mai multe terase și restaurante mici. Câteva dintre cele mai cochete se află în vechiul cartier Armenesc. De aici ajungi extrem de repede și în Centrul Vechi al orașului, pentru mai multă diversitate. Fiind atât de aproape de centrul orașului, vei avea la dispoziție extrem de multe opțiuni. Restaurantele și cafenelele din Dorobanți sau de pe Calea Floreasca pot fi cu siguranță pe gustul tău. Dacă vrei să faci și o plimbare, să admiri arhitectura frumoasă a vechilor clădiri din București și să te oprești la o cafea sau la o prăjitură, atunci Calea Victoriei poate fi ideală. Pentru o mică gustare sau un meniu fast food ai mai multe variante în zona Obor, iar dacă te grăbești atunci poți încerca drive through-ul McDonald"™s de pe Strada Barbu Văcărescu. Aruncă o privire pe hartă și vezi ce alte restaurante, terase sau cafenele ai în zonă.
Găsești mai multe sucursale bancare și ATM-uri în special pe Șoseaua Ștefan cel Mare. Aruncă o privire pe hartă și vezi ce alte opțiuni găsești în apropierea viitoarei tale locuințe.
Înainte să pleci...
Ești sigur că ai văzut și aceste proprietăți?
360.000 € + TVA
București, Pipera
5 camere
183 mp
316 mp teren
139.000 €
București, Rahova
3 camere
113 mp
260 mp teren
649.000 €
București, Polonă
6 camere
233 mp
375 mp teren
390.000 €
București, Moșilor
9 camere
320 mp
170 mp teren
649.000 €
București, Grădina Icoanei
6 camere
233 mp
375 mp teren
399.000 €
București, Iancu Nicolae
10 camere
360 mp
690 mp teren
Creează alertă
Salvează căutarea ca să primești pe email ultimele anunțuri publicate
Case individuale cu 4+ camere de vânzare în zona Dacia, Sector 2
Cere detalii prin email
*
*
*
*
Detaliile tale de contact vor fi partajate cu Trust Group Estate
Preț total2.311.777 RON (453.600 €)
Costuri cu achiziția18.352 RON
Preț de achiziție2.293.425 RON
Costuri cu achiziția18.352 RON
Comision agenție Întreabă agenţia
Onorariu notarial14.912 RON
Taxă înscriere OCPI3.440 RON
Preț de achiziție2.293.425 RON
Preț locuință2.293.425 RON
TVA 0%Inclus în prețul cerut
Cost total369.464 RON (72.493 €)
Avans (15%)344.014 RON
Cost achitat în prima lună4.075 RON
Costuri cu achiziția21.375 RON
Cost achitat în prima lună4.075 RON
Comision analiză dosar
400 RON - 900 RON
Taxă evaluare imobil(până la)
900 RON
Rata lunară (variabilă)10.216 RON
Asigurare anuală imobil2.293 RON
Arhivă electronică102 RON
Poliță PAD130 RON
Asigurare de viață/lună Costul este variabil. În funcție de banca aleasă, procentul variază între 0.0259% și 0.035% din soldul creditului.
Costuri cu achiziția21.375 RON
Comision agenție Întreabă agenţia
Onorariu notarial14.912 RON
Taxă întabulare OCPI3.440 RON
Autentificare contract credit3.023 RON
Preț de achiziție2.293.425 RON
Preț locuință2.293.425 RON
TVA 0%Inclus în prețul cerut
Preț de achiziție2.293.425 RON
Preț locuință2.293.425 RON
TVA 0%
Inclus în prețul cerut
Avans minim1.686.942 RON
Credit pe 30 de ani606.484 RON
Cost achitat în prima lună
Taxa evaluare imobil(până la)
900 RON
Rata lunară (variabilă)4.261 RON
Depozit colateral12.783 RON
Comision de garantare FNGCIMM191 RON
Asigurare anuală imobil2.293 RON
Poliță PAD130 RON
Tarif arhivă electronică102 RON
Costuri adiționale2.433 RON + taxe notariale
Asigurare viață și complexă (opțională)Costul este variabil. În funcție de banca aleasă, procentul variază între 0.0259% și 0.035% din soldul creditului
Onorariu notarialconform tarif notarial
Taxă întabulare OCPI2.433 RON
i
Toate valorile de mai sus sunt estimative și nu reprezintă în mod obligatoriu costurile exacte pe care le veți primi de la companiile/instituțiile prin care veți încheia tranzacția.