vila gata in duplex/5cam+2bai+150mp curte libera/comBerceni -Ilfov

145.200 €

Berceni, Județul Ilfov

Nr. cam.:
5
Sup. utilă:
132,8 mp
Sup. teren:
220 mp
Tip prop.:
Duplex
  • • Comision 0%
  • • Locație aproximativă

Descriere casă

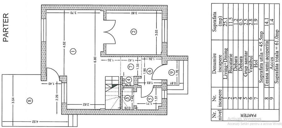
Proprietar(persoana fizica, comision cumparator 1,5%) sau Dezvoltator(persoana juridica, comision cumparator 0%), (Tel contact: - stabilire vizionare, detalii suplimentare), vand - vila noua in duplex(pret 130000euro, nu se aplica TVA, daca se alege vila care se vinde de pe persoana fizica), cu predare la cheie(nemobilata-neutilata, finisata complet, utilitatile zonei(put propriu(la 30-35m adancime - a doua panza freatica), hidrofor, canalizare cu fosa septica betonata -vidanjabila, energie electrica, gaze); - vila noua in duplex(pret 130000euro + TVA(21%)=157300euro, daca se alege vila care se vinde de pe persoana juridica), cu predare la cheie(nemobilata-neutilata, finisata complet, utilitatile zonei(put propriu(la 30-35m adancime - a doua panza freatica), hidrofor, canalizare cu fosa septica betonata -vidanjabila, energie electrica, gaze), situate în Comuna Berceni, judetul Ilfov. Recomandari: 1. - se pot face teste gratuie la Romstal, pentru verificarea calitatii apei, potabilitate, duritate, etc. 2. - pentru cine doreste sa investeasca intr-un sistem/statie de dedurizare a apei, daca este cazul, costurile se situeaza intre Lei. Suprafata totala teren pentru fiecare vila in parte, aprox. 220 mp din care amprenta la sol de 61mp. Compunere - cf. releveului/schitelor atasate: - Parter: living + dining, bucătărie, baie, vestibul, hol, 2 debarale, terasa semi-acoperita cu suprafață total de 61,5 mp - Etaj: 3 dormitoare(unul este trecut ca birou), baie, hol, balcon - cu suprafata totala de 56,4mp - Mansardă: camera hobby, pod(se poate folosi pentru depozitare) - cu suprafata totala de 43,2mp Nota: fotografiile sunt dintr-o vila asemanatoare(finisajele se pot personaliza). Facilități: statie STB, statie de metrou Tudor Arghezi, Mega Image, Carrefour , farmacie, scoli, grădinițe stat / privat, activități cu copii ( sport, pian, limbi străine, înot, etc) , sală de fitness, cofetărie, măcelărie, piață agroalimentară, echitație , restaurante , săli evenimente, salon de înfrumusețare.
Citește mai mult Citește mai puțin
Nemobilat Grădină Curte Calorifere Centrală proprie 2 Parcări

Detalii casă

ID anunț: XA1A1109H Copiat! 274960606 Copiat!
Actualizat în: 15 Februarie 2026
Suprafață construită: 61 mp
Suprafață desfășurată: 160.6 mp
Nr. bucătării: 1
Nr. băi: 2
Nr. balcoane: 1
Nr. terase: 1
Suprafață terase: 14 mp
Front stradal: 15.0 m
Învelitoare acoperiș: Tabla
An construcție: 2024 (Finalizată)
Structură rezistență: Beton
Regim înălțime: P+1E+M

Utilități

Pereți
Faianță Vopsea lavabilă
Podele
Gresie Parchet
Ușă intrare
Metal
Uși interior
Lemn PVC Sticlă
Izolații termice
Exterior
Ferestre cu geam termopan
PVC
Contorizare
Contor gaz
Diverse
Scară interioară
Utilități
Curent Apă Canalizare CATV Gaze Telefon
Acces internet
Cablu
Amenajare străzi
Iluminat stradal Mijloace de transport în comun Asfaltate
Comision
0%

Vecinătăți:

Bvd. 1Mai, Autostrada Centura Bucuresti, metrou T. Arghezi

Disponibilitate proprietate:

Imediat

Puncte de interes

Școală
school
Scoala Berceni
Școli aprox. 1107 m
Recreere
sports-ground
Teren sportiv
Terenuri sport aprox. 1240 m

Detalii despre preț și costuri

Costuri cu achiziția

Fără credit
7.887 RON
Credit ipotecar
9.616 RON
Noua casă
880 RON+ taxe notariale

i

Costuri adiționale mai puțin știute la achiziție: taxe notariale, comisioane etc.

Proprietăți recomandate

Detalii de contact

MARVIS REZIDENTIAL SRL

Florin Ghenceanu Broker Imobiliar

4.89(3 review-uri)

MARVIS REZIDENTIAL SRL
PRO

Abonează-te la newsletter să fii primul care primește cele mai noi recomandări de proprietăți și sfaturi de la experți.

CONTACT

Creează alertă

Salvează căutarea ca să primești pe email ultimele anunțuri publicate

Duplexuri cu 4+ camere de vânzare în Berceni, Județul Ilfov