OFERTA CU 0% COMISION PENTRU CUMPARATOR!
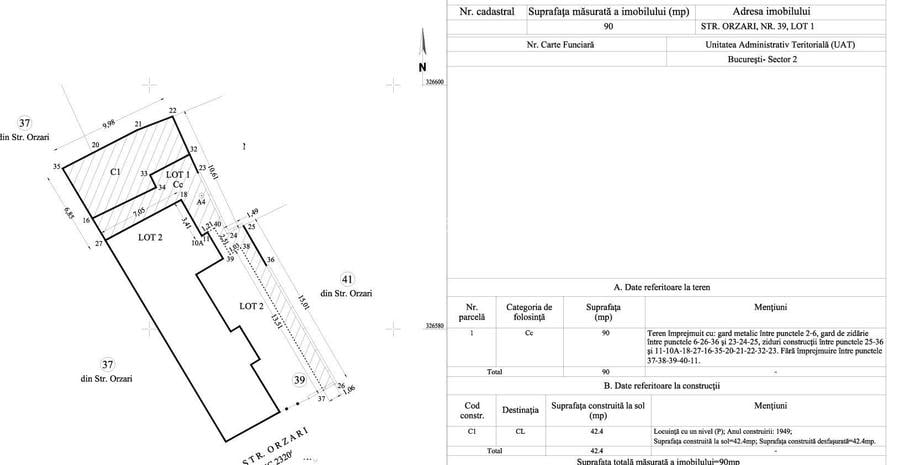
Pe strada Orzari langa intersectia cu strada Agricultori, se vinde o proprietate compusa din teren de 90 mp si o ruina ce a reprezentat o casa de 2 camere si dependinte din caramida, construita conform documentelor in 1949, cu amprenta la sol de 42,4 mp din cei 90 mp totali de teren. Aceasta suprafata de teren a fost dezmembrata juridic insa nu si in fapt, cu gard, insa se poate separa daca se doreste. Avand in vedere ca locuinta in stare de ruina este intabulata in Cartea Funciara si se regaseste in documentele de proprietate, se poate construi pe actualul amplasament un imobil nou. Mai mult, in prezent in spatele casei la calcan este demarat un proiect imobiliar cu un bloc boutique, ceea ce ar fi confortabil pentru viitorul santier.
Sediul central - Timișoara
Bulevardul Victor Babeș nr. 2, 300230, Timișoara, România
Tel: +40.374.40.44.98 / Fax: +40.256.401.179
Email: suport@imobiliare.ro
Luni - Vineri 08:00 - 20:00
Punct de lucru - București: Iride Business Park, Bld. Dimitrie
Pompeiu 9-9A, Clădirea B2B,
020335, Sector 2, București, România
CONTACT
Sediul central - Timișoara
Bulevardul Victor Babeș nr. 2, 300230, Timișoara, România
Tel: +40.374.40.44.98 / Fax: +40.256.401.179
Email: suport@imobiliare.ro
Luni - Vineri 08:00 - 20:00
Punct de lucru - București: Iride Business Park, Bld. Dimitrie
Pompeiu 9-9A, Clădirea B2B,
020335, Sector 2, București, România
Centru de Diagnostic si Tratament Dr. Victor Babes (en)
aprox.
846 m
Doctor Anghel Medical Center
aprox.
848 m
Spitalul Victor Babes
aprox.
923 m
Societatea Romana de Cardiologie
aprox.
981 m
"Dimitrie Gerota" Hospital (en)
aprox.
1078 m
Spitalul de Ortopedie MedLife
aprox.
1115 m
Dispensar "Baba Novac" - medicină de familie
aprox.
1138 m
Medical GRAL
aprox.
1154 m
Trattoria Pascu
aprox.
23 m
da Mario
aprox.
138 m
La Mama
aprox.
236 m
Trattoria Il Calcio
aprox.
297 m
Trattoria Il Calcio Delea Veche
aprox.
298 m
Agentie organizari evenimente - Casa Novias
aprox.
383 m
Decebal Restaurant
aprox.
401 m
Artezian
aprox.
422 m
ASIA
aprox.
423 m
Chef Burger
aprox.
425 m
Delea Noua
aprox.
427 m
Restaurantul Babilon
aprox.
445 m
C You
aprox.
449 m
DaDa
aprox.
451 m
Club Art
aprox.
472 m
Loka
aprox.
415 m
Snack Lab
aprox.
415 m
Snap
aprox.
425 m
Cafe Pink
aprox.
436 m
Lolly Pop
aprox.
437 m
Tress Cafe
aprox.
626 m
Momentto Cafe
aprox.
643 m
Smile Cafe
aprox.
652 m
Habana Coffe
aprox.
903 m
Stretto Cofee
aprox.
914 m
Tana de lupo
aprox.
927 m
La Trenulete
aprox.
941 m
Da'Mask Caffe
aprox.
946 m
Puerto Cafe
aprox.
1002 m
Gio Cafe
aprox.
1031 m
MODELiER
aprox.
440 m
Essenza Club
aprox.
496 m
Shisha Lounge Bar
aprox.
533 m
Club Guesthouse
aprox.
538 m
La Pirati
aprox.
875 m
RSS Pub
aprox.
917 m
Voltage Bar
aprox.
1104 m
Antic Bar
aprox.
1111 m
Bar
aprox.
1386 m
Geo Bar
aprox.
1652 m
E... Varza
aprox.
1744 m
BarFly
aprox.
1824 m
Terasa Sandrino
aprox.
1844 m
Macaz Bar Teatru Coop
aprox.
1908 m
Bar
aprox.
1993 m
Zvon
aprox.
520 m
Dristor Pub
aprox.
733 m
Jukebox
aprox.
904 m
La Donna
aprox.
1140 m
Terasa Rustica Foisor
aprox.
1148 m
Le Boutique Food Concept Store
aprox.
1272 m
Roof
aprox.
1365 m
Bluzz
aprox.
1370 m
La Scena
aprox.
1582 m
Beraria Berestoika
aprox.
1623 m
Friends
aprox.
1746 m
La Pierde Tren
aprox.
1835 m
Club Surubelnita
aprox.
1914 m
Banca Transilvania / Calea Calarasilor
aprox.
226 m
Banca Transilvania - Ag. Delea Veche
aprox.
226 m
BRD Calea Calarasilor
aprox.
273 m
TBI Bank
aprox.
429 m
Banca Transilvania - Ag. Decebal
aprox.
454 m
BCR Sucursala Sector 3
aprox.
462 m
Pro Credit Bank
aprox.
465 m
BRD Hurmuzachi
aprox.
475 m
Raiffeisen Bank
aprox.
476 m
BCR
aprox.
477 m
UniCredit Bank - Ag. Decebal
aprox.
480 m
ING Calarasi
aprox.
481 m
Raiffeisen Bank - Agentia Decebal
aprox.
500 m
ING Self'Bank
aprox.
501 m
Alpha Bank
aprox.
510 m
Calea Călărași este una dintre cele mai vechi artere de circulație din Capitală. Parcurgând-o cu tramvaiul ajungi destul de rapid în centru, la Piața Unirii, sau în zona Piața Muncii de pe Șoseaua Mihai Bravu. Stații de metrou pot fi găsite atât în Piața Unirii, cât și în Piața Muncii. O altă legătură utilă pentru cei care se mută în zonă poate fi oferită de troleibuzul 70 care traversează Piața Universității și are stație inclusiv în imediata vecinătate a Parcului Cișmigiu. În cazul în care optezi pentru o locuință aflată de-a lungul sau în apropierea Bulevardului Decebal, atunci autobuzul 104 ar putea fi de mare ajutor pentru tine. Acesta traversează orașul din cartierul Pantelimon și până în zona Piața Operei - Eroilor, trecând prin centru. Alte mijloace de transport în comun la care poți apela, dacă te muți în zona Decebal - Calea Călărași, sunt și troleibuzele 70 și 79. Stații găsești pe Strada Delea Nouă. Consultă harta pentru a afla unde găsești stațiile mijloacelor de transport în comun.
La intersecția dintre Calea Călărași și Strada Popa Nan se află sediul uneia dintre cele mai cunoscute instituții de învățământ privat din București - Universitatea Hyperion. Tot în această zonă a orașului găsești Colegiul Național "Matei Basarab", unul dintre cele mai prestigioase din oraș. Ar putea să te intereseze și Școala Specială nr. 5 de pe Strada Turturelelor sau Școala Generală Cezar Bolliac. Pentru copiii cu vârste mai mici găsești în zona Decebal - Calea Călărași mai multe grădinițe private. Consultă harta de mai jos pentru a afla ce alte unități de învățământ ai la dispoziție, dacă te muți în această parte a orașului.
Hala Traian, aflată la intersecția dintre Calea Călărași și Strada Traian, este un punct extrem de cunoscut în zonă și un loc ideal pentru a-ți face cumpărăturile. În interiorul acesteia a fost un amenajat un supermarket Mega Image, iar în jurul său vei găsi și alte magazine mici și farmacii. Câteva magazine găsești în apropiere de Șoseaua Mihai Bravu, la parterul blocurilor situate vis-a-vis de Spitalul Victor Babeș. Dacă vrei să îți faci cumpărăturile la hipermarket, atunci cel mai apropiat va fi cel aflat în spatele magazinului Unirii. Consultă harta pentru a afla ce alte opțiuni vei avea la doi pași de viitoarea ta locuință.
Zona este traversată de una dintre cele mai vechi artere de circulație din Capitală, Calea Călărași. Dacă te deplasezi des cu mașina prin oraș, atunci trebuie să știi că traficul este de multe ori îngreunat de-a lungul acesteia la orele de vârf, în special pe segmentul dintre Strada Popa Nan și Piața Corneliu Coposu, unde există doar o singură bandă pe sens. Îți recomandăm, totodată, să nu pierzi din vedere posibilitatea închirierii unui loc de parcare în apropierea noii tale locuințe. Pentru a face acest lucru, trebuie să te adresezi Biroului Parcări din cadrul ADP Sector 2 sau Direcției Generale Impozite și Taxe Locale Sector 3. Una dintre cele mai mari parcări din zonă se găsește la capătul Bulevardului Decebal, în Piața Alba Iulia. Consultă harta pentru mai multe detalii.
Vrei să te muți în zona Calea Călărași și te gândești deja ce opțiuni vei avea pentru petrecerea timpului liber? Poți să faci plimbări lungi pe străzile de lângă casele de aici, deosebit de frumoase în special în timpul toamnei, și apoi să faci un scurt popas la o ceainărie sau să iei masa la restaurant. Nu vei avea la dispoziție parcuri mari dacă vei locui în această parte a Bucureștiului. Cu toate acestea, vei ajunge destul de ușor, chiar și cu mijloacele în comun (troleibuzul 70), la Parcul Național sau în fața Grădinii Cișmigiu. Pe Strada Popa Nan vei avea la dispoziție un spațiu unde se desfășoară jocuri de laser tag, un loc de joacă pentru copii și o sală de fitness. Apropierea de Piața Unirii vine și cu alte opțiuni de petrecere a timpului liber, de la zile petrecute la terasele din Centrul Vechi la vizite la muzeu. Preferi o după-amiază la teatru? Atunci vei avea la dispoziție în apropiere trei teatre unde vei putea merge la spectacole - Teatrul de Artă, Teatrul de Comedie și Teatrul Evreiesc. Găsești pe hartă și alte puncte de interes din zona Decebal - Calea Călărași.
În zona Decebal - Calea Călărași vei găsi mai multe clinici private și farmacii. Cele mai apropiate spitale la care poți apela la nevoie se află în zona Piața Muncii. Este vorba despre Spitalul Clinic de Copii "Dr. Victor Gomoiu" și de Spitalul Clinic "Dr. Victor Babeș". Vezi pe hartă poziționarea unităților sanitare din zona Decebal - Calea Călărași și din vecinătatea sa.
Găsești cele mai multe restaurante, baruri și terase de-a lungul Bulevardului Decebal, dar și în Piața Alba Iulia. Pentru o atmosferă ceva mai liniștită îți recomandăm restaurantele și ceainăriile pe care le găsești ascunse pe străduțele din zonă, pe strada Popa Nan sau între casele vechi situate în apropiere de Hala Traian.
Găsești mai multe sucursale bancare și ATM-uri de-a lungul Bulevardului Decebal și pe Calea Călărași, principalele artere de circulație din zonă. Află de pe hartă unde găsești cea mai apropiată bancă de viitoarea ta locuință.
Înainte să pleci...
Ești sigur că ai văzut și aceste proprietăți?
120.000 €
București, Ștefan cel Mare
2 camere
48 mp
110 mp teren
90.000 €
București, P-ța Sfânta Vineri
3 camere
70 mp
179 mp teren
160.000 €
București, Decebal
3 camere
83 mp
10 mp teren
82.500 €
București, Parcul Carol
3 camere
44 mp
63 mp teren
399.000 €
București, Vatra Luminoasă
5 camere
105 mp
114 mp teren
69.000 €
București, Matei Voievod
2 camere
57 mp
100 mp teren
Creează alertă
Salvează căutarea ca să primești pe email ultimele anunțuri publicate
Case individuale cu 2 camere de vânzare în zona Calea Călărașilor, Sector 3
Cere detalii prin email
*
*
*
*
Detaliile tale de contact vor fi partajate cu Trimbitasu Estate
Preț total307.338 RON (60.325 €)
Costuri cu achiziția4.204 RON
Preț de achiziție303.134 RON
Costuri cu achiziția4.204 RON
Comision agenție Întreabă agenţia
Onorariu notarial3.749 RON
Taxă înscriere OCPI455 RON
Preț de achiziție303.134 RON
Preț locuință303.134 RON
TVA 0%Inclus în prețul cerut
Cost total52.984 RON (10.399 €)
Avans (15%)45.470 RON
Cost achitat în prima lună2.085 RON
Costuri cu achiziția5.429 RON
Cost achitat în prima lună2.085 RON
Comision analiză dosar
400 RON - 900 RON
Taxă evaluare imobil(până la)
900 RON
Rata lunară (variabilă)1.350 RON
Asigurare anuală imobil303 RON
Arhivă electronică102 RON
Poliță PAD130 RON
Asigurare de viață/lună Costul este variabil. În funcție de banca aleasă, procentul variază între 0.0259% și 0.035% din soldul creditului.
Costuri cu achiziția5.429 RON
Comision agenție Întreabă agenţia
Onorariu notarial3.749 RON
Taxă întabulare OCPI455 RON
Autentificare contract credit1.225 RON
Preț de achiziție303.134 RON
Preț locuință303.134 RON
TVA 0%Inclus în prețul cerut
Preț de achiziție303.134 RON
Preț locuință303.134 RON
TVA 0%
Inclus în prețul cerut
Avans minim15.157 RON
Credit pe 30 de ani287.978 RON
Cost achitat în prima lună
Taxa evaluare imobil(până la)
900 RON
Rata lunară (variabilă)2.023 RON
Depozit colateral6.069 RON
Comision de garantare FNGCIMM25 RON
Asigurare anuală imobil303 RON
Poliță PAD130 RON
Tarif arhivă electronică102 RON
Costuri adiționale443 RON + taxe notariale
Asigurare viață și complexă (opțională)Costul este variabil. În funcție de banca aleasă, procentul variază între 0.0259% și 0.035% din soldul creditului
Onorariu notarialconform tarif notarial
Taxă întabulare OCPI443 RON
i
Toate valorile de mai sus sunt estimative și nu reprezintă în mod obligatoriu costurile exacte pe care le veți primi de la companiile/instituțiile prin care veți încheia tranzacția.