Casa de vanzare moderna 110 mp Curte 60 mp Arhitecților

150.414 €

Arhitecților - Calea Cisnădiei, Sibiu

Nr. cam.:
4
Sup. utilă:
110 mp
Sup. teren:
120 mp
Tip prop.:
Individuală
  • • Locație aproximativă

Descriere casă

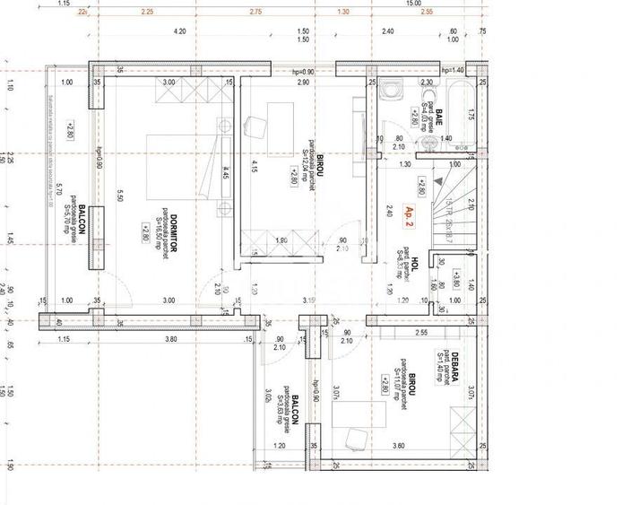
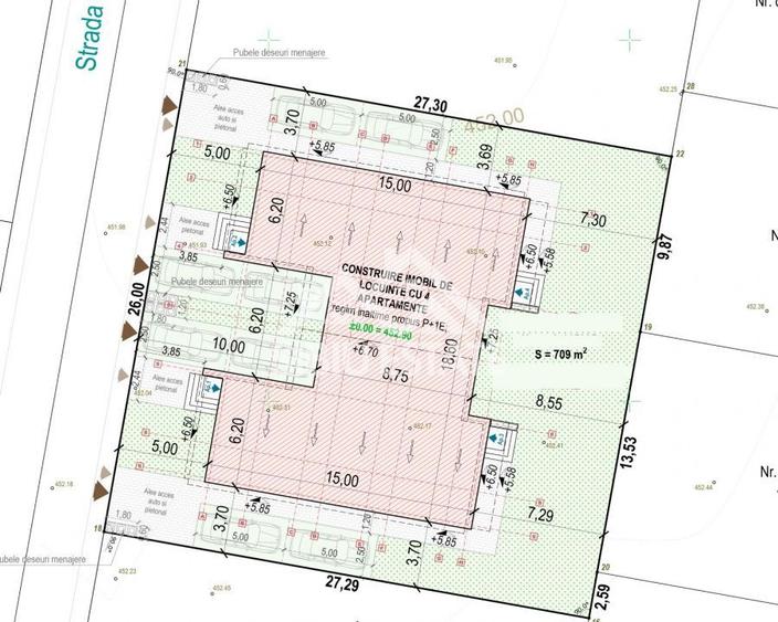
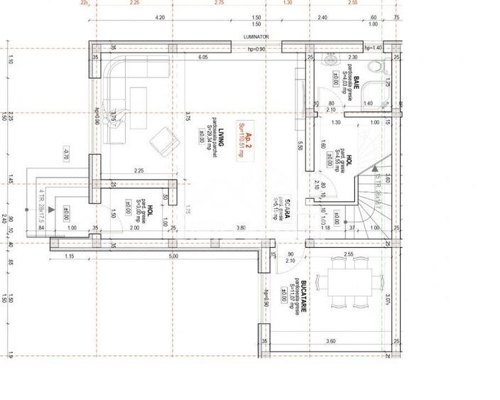
🏡 Casă tip Qvadruplex – Cartierul Arhitecților | 110 mp utili | Curte 60 mp | Predare aprilie 2026 Descoperă o locuință modernă, gândită pentru confortul familiei tale, situată într-una dintre cele mai dinamice și apreciate zone rezidențiale din Sibiu – Cartierul Arhitecților. Casa face parte dintr-un imobil tip quadruplex, cu regim de înălțime Parter + Etaj, oferind o compartimentare practică, spațiu generos și două locuri de parcare proprii. ✨ Detalii și compartimentare: 📐 Suprafață utilă: 110 mp 🌿 Curte: 60 mp 🚗 2 locuri de parcare incluse Parter: Living generos – 29,34 mp Bucătărie separată – 11,07 mp Baie de serviciu cu geam – 4,03 mp Hol – 4,55 mp + hol intrare – 3 mp Casă scării – 5,15 mp Etaj: 3 dormitoare spațioase (16,50 mp | 12,04 mp | 11,07 mp) Hol – 8,33 mp Baie – 4,03 mp 2 balcoane – 5,07 mp și 3,63 mp 🏗️ Predare cu exterior finisat, realizat cu materiale de calitate superioară: Izolație exterioară cu polistiren EPS80 – 10 cm, tencuială decorativă alb + gri antracit Tâmplărie PVC Salamander, 5 camere, 3 foi de sticlă, feronerie Maco Acoperiș complet izolat cu vată de 20 cm, burlane metalice Ușă de acces termoizolantă Salamander 🏠 Interiorul se predă la stadiul de alb, cu: Pereți tencuiți și zugrăviți cu lavabilă albă Instalații electrice și pentru curenți slabi (TV, internet) Încălzire în pardoseală pe ambele niveluri, cu centrală în condensare Contorizare separată (gaz, curent, apă) Racorduri funcționale în baie și bucătărie 💰 Preț: 150.414 € + TVA 📅 Predare: Aprilie 2026 Locuința este ideală pentru o familie care își dorește un spațiu modern, eficient și confortabil, într-o zonă liniștită, dar bine conectată la oraș. ✨ SIBIUESTATE – Casa ta, Povestea noastră.
Citește mai mult Citește mai puțin
Curte Centrală proprie Încălzire prin pardoseală 2 Parcări

Detalii casă

ID anunț: XFOU1104I Copiat! 273069276 Copiat!
Actualizat în: 06 Februarie 2026
Suprafață construită: 70 mp
Suprafață desfășurată: 137.5 mp
Nr. bucătării: 1
Nr. băi: 2
Nr. balcoane / Terase / Logii: 2
Suprafață terase: 9.33 mp
An construcție: 2025 (În construcție)
Structură rezistență: Cărămidă
Regim înălțime: P+1E

Utilități

Destinație
Rezidențial
Pereți
Vopsea lavabilă
Ușă intrare
PVC
Izolații termice
Exterior
Ferestre cu geam termopan
PVC
Contorizare
Apometre Contor gaz
Facilități imobil
Acoperiș
Utilități
Curent Apă Canalizare CATV Gaze
Internet
Cablu
Amenajare străzi
Iluminat stradal Mijloace de transport în comun Asfaltate

Certificat energetic:

Clasa energetică: B

Vecinătăți:

Scoli, Zone verzi, Farmacii, Restaurante, Transport, Zone comerciale, Sali de sport, Cafenele

Disponibilitate proprietate:

Imediat

Puncte de interes

Mijloace transport
bus-station
Cimitirul Eroilor 1
Stații autobuz aprox. 808 m
bus-station
Cimitirul Eroilor 2
Stații autobuz aprox. 816 m
bus-station
Dumbrava 2
Stații autobuz aprox. 1013 m
bus-station
Dumbrava 1
Stații autobuz aprox. 1020 m
Școală
school
Scoala Genenerala Nr. 25
Școli aprox. 1344 m
kindergarten
Gradinita Nr. 5
Gradinițe aprox. 1395 m
kindergarten
FasTracKids
Gradinițe aprox. 1733 m
school
Gradinita cu program prelungit nr. 43
Școli aprox. 1736 m
Recreere
sports-ground
Teren sportiv
Terenuri sport aprox. 873 m
restaurant
Varsailles
Restaurant aprox. 981 m
park
Georgescu Parc
Parcuri aprox. 1112 m
supermarket
Alcomsib
Supermarket aprox. 1332 m

Detalii despre preț și costuri

Costuri cu achiziția

Fără credit
8.066 RON
Credit ipotecar
9.817 RON
Noua casă
906 RON+ taxe notariale

i

Costuri adiționale mai puțin știute la achiziție: taxe notariale, comisioane etc.

Proprietăți recomandate

Detalii de contact

Sibiu Estate

Lucian Boita Consilier Imobiliar

Sibiu Estate
PRO

Abonează-te la newsletter să fii primul care primește cele mai noi recomandări de proprietăți și sfaturi de la experți.

CONTACT

Creează alertă

Salvează căutarea ca să primești pe email ultimele anunțuri publicate

Case individuale cu 4+ camere de vânzare în zona Arhitecților - Calea Cisnădiei, Sibiu