Oportunitate de investiție unică: vilă spațioasă în Siminicea cu 12 camere si teren intravilan de 2869 mp, județul Suceava.
Descoperiți o proprietate cu potențial imens în centrul comunei Siminicea, județul Suceava.
Situată strategic la doar 5 minute de orașul Dumbrăveni și la 20 de minute de Suceava, această vilă modernă oferă o combinație ideală de confort și accesibilitate.
Caracteristici cheie ale proprietății:
• Configurație flexibilă: Vilă cu parter și două etaje, fiecare nivel având intrare separată prin casa scării, perfectă pentru transformare în locuințe multifamiliale, spații de închiriat sau birouri.
• Utilități disponibile: Conectată la rețelele locale de apă, canalizare, gaz și electricitate, eliminând necesitatea costurilor mari de infrastructură.
• Proprietate la stadiul de „roșu”: Oferă oportunitatea personalizării fiecărei încăperi în funcție de preferințele noului proprietar.
• Localizare centrală: Aproape de magazine alimentare, instituții publice și alte facilități locale, creând o atractivitate sporită pentru potențiali chiriași sau utilizatori.
De ce să investiți în această proprietate?
1. Versatilitate: Poate fi adaptată cu ușurință pentru a genera venituri pasive prin închiriere sau pentru a acomoda nevoile unei familii extinse.
2. Localizare strategică: Apropierea de orașe importante și de facilități esențiale face din această proprietate o alegere ideală pentru locuință sau afaceri.
3. Preț accesibil: Achiziționați o vilă la roșu, economisind astfel costurile cu o construcție nouă de la zero.
Investiți astăzi în viitorul dumneavoastră, într-o zonă în continuă dezvoltare!
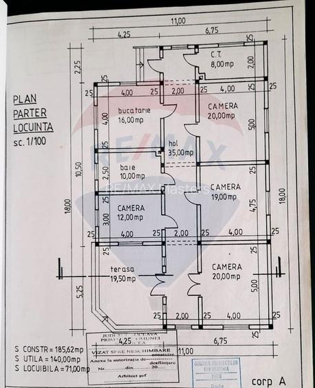
LA PARTER găsim 2 intrări separate, un hol principal cu acces la fiecare cameră, respectiv la o sufragerie, 3 dormitoare, o bucătărie, o baie, o cameră tehnică, o terasă si casa scării cu acces separat pentru fiecare nivel in parte.
LA ETAJ avem un hol generos care ne oferă acces la fiecare cameră, respectiv la o sufragerie, 3 dormitoare, o bucătărie și o baie.
LA Mansardă avem un hol generos care ne oferă acces la fiecare cameră, respectiv la o sufragerie, 3 dormitoare, o bucătărie și o baie.
Avem două dormitoare cu balcon propriu.
Casa este construita pe o structura de beton armat cu BCA.
Acoperișul este din tabla tip Lindab.
Tâmplăria este din termopan la fel și ușile de la intrare sunt tot din termopan.
Utilitățile (gaz, apa, canalizare) sunt de la comună la limita proprietății.
Curent monofazat-contract cu E-on.
Proprietatea mai are are trei anexe si o casă bătrânească:
Casa bătrânească de 82mp
Anexa 1 : magazie depozitare de 20 mp
Anexa 2 : grajd +șura de 51mp
Anexa 3 : garaj de 22 mp
Indicatorii de performanță energetică a imobilului sunt:
- clasa energetică: B
Contactează agentul imobiliar pentru informații suplimentare și pentru vizionarea proprietății.
Sediul central - Timișoara
Bulevardul Victor Babeș nr. 2, 300230, Timișoara, România
Tel: +40.374.40.44.98 / Fax: +40.256.401.179
Email: suport@imobiliare.ro
Luni - Vineri 08:00 - 20:00
Punct de lucru - București: Iride Business Park, Bld. Dimitrie
Pompeiu 9-9A, Clădirea B2B,
020335, Sector 2, București, România
CONTACT
Sediul central - Timișoara
Bulevardul Victor Babeș nr. 2, 300230, Timișoara, România
Tel: +40.374.40.44.98 / Fax: +40.256.401.179
Email: suport@imobiliare.ro
Luni - Vineri 08:00 - 20:00
Punct de lucru - București: Iride Business Park, Bld. Dimitrie
Pompeiu 9-9A, Clădirea B2B,
020335, Sector 2, București, România
Sună acum și cere detalii sau programează o vizionare.
Cere detalii prin email
*
*
*
*
Terenuri sport
Teren sportiv
aprox.
405 m
Înainte să pleci...
Ești sigur că ai văzut și aceste proprietăți?
118.500 €
Județul Suceava, Mihoveni
4 camere
195 mp
500 mp teren
137.000 €
Județul Suceava, Tișăuți
4 camere
85 mp
300 mp teren
112.900 €
Județul Suceava, Tișăuți
3 camere
80 mp
1.300 mp teren
164.900 €
Județul Suceava, Lisaura
6 camere
173 mp
1.700 mp teren
100.000 €
Județul Suceava, Prelipca
4 camere
144 mp
500 mp teren
110.000 €
Județul Suceava, Liteni
6 camere
300 mp
1.100 mp teren
Creează alertă
Salvează căutarea ca să primești pe email ultimele anunțuri publicate
Case individuale cu 4+ camere de vânzare în Județul Suceava
Cere detalii prin email
*
*
*
*
Detaliile tale de contact vor fi partajate cu Re/max Masters
Preț total515.387 RON (101.097 €)
Costuri cu achiziția6.107 RON
Preț de achiziție509.280 RON
Costuri cu achiziția6.107 RON
Comision agenție Întreabă agenţia
Onorariu notarial5.343 RON
Taxă înscriere OCPI764 RON
Preț de achiziție509.280 RON
Preț locuință509.280 RON
TVA 0%Inclus în prețul cerut
Cost total86.327 RON (16.933 €)
Avans (15%)76.392 RON
Cost achitat în prima lună2.291 RON
Costuri cu achiziția7.644 RON
Cost achitat în prima lună2.291 RON
Comision analiză dosar
400 RON - 900 RON
Taxă evaluare imobil(până la)
900 RON
Rata lunară (variabilă)2.269 RON
Asigurare anuală imobil509 RON
Arhivă electronică102 RON
Poliță PAD130 RON
Asigurare de viață/lună Costul este variabil. În funcție de banca aleasă, procentul variază între 0.0259% și 0.035% din soldul creditului.
Costuri cu achiziția7.644 RON
Comision agenție Întreabă agenţia
Onorariu notarial5.343 RON
Taxă întabulare OCPI764 RON
Autentificare contract credit1.537 RON
Preț de achiziție509.280 RON
Preț locuință509.280 RON
TVA 0%Inclus în prețul cerut
Preț de achiziție509.280 RON
Preț locuință509.280 RON
TVA 0%
Inclus în prețul cerut
Avans minim76.392 RON
Credit pe 30 de ani432.888 RON
Cost achitat în prima lună
Taxa evaluare imobil(până la)
900 RON
Rata lunară (variabilă)3.042 RON
Depozit colateral9.126 RON
Comision de garantare FNGCIMM42 RON
Asigurare anuală imobil509 RON
Poliță PAD130 RON
Tarif arhivă electronică102 RON
Costuri adiționale649 RON + taxe notariale
Asigurare viață și complexă (opțională)Costul este variabil. În funcție de banca aleasă, procentul variază între 0.0259% și 0.035% din soldul creditului
Onorariu notarialconform tarif notarial
Taxă întabulare OCPI649 RON
i
Toate valorile de mai sus sunt estimative și nu reprezintă în mod obligatoriu costurile exacte pe care le veți primi de la companiile/instituțiile prin care veți încheia tranzacția.