1

VILA DEOSEBITA EDEN FOREST SAMURCASI TARTASESTI

285.000 €

Tărtășești, Județul Dâmbovița

Nr. cam.:
5
Sup. utilă:
152 mp
Sup. teren:
540 mp
Tip prop.:
Individuală
  • • Locație aproximativă
  • • Vizionare prin apel video

Descriere casă

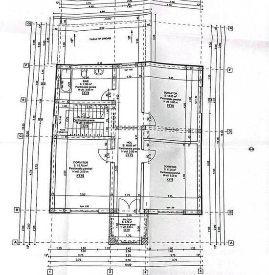
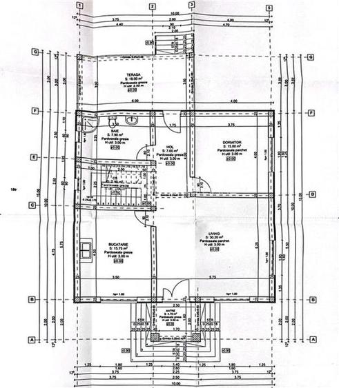
VILA INDIVIDUALA DEOSEBITA IN COMPLEXUL EDEN FOREST VIZAVI DE PADUREA RAIOASA TARTASESTI - SAMURCASI - DRUMUL GULIEI ACCES LEJER CATRE BUCURESTI - ATAT PE DN1 A BUFTEA - MOGOSOAIA - STRAULESTI - APROX 20 DE MINUTE CAT SI PE DN 7 - INTRAREA PRIN SOSEAUA CHITILEI CARTIER BINE STRUCTURAT ,STRAZI LARGI REGIM INALTIME - PARTER + ETAJ AN CONSTRUCTIE 2025 COMPARTIMENTARE : PARTER - LIVING ,DORMITOR ,BUCATARIE ,BAIE ,HOL ,CASA SCARII SI TERASA ETAJ - 3 DORMITOARE ,BAIE,HOL ,BALCON SI TERSA SUPRAFATA UTILA - 152 MP ,SUPRAFATA CONSTRUITA 228 MP ,CURTE LIBERA 464 MP DINTR-UN TOTAL DE 540 MP TEREN VEZI SCHITELE ULTIMILE FOTO STRUCTURA DE REZISTENTA - CADRE DE BETON ARMAT ,INCHIDERE PERIMETRALA CARAMIDA ,PERETI DESPARTITORI CARAMIDA ,TERMOSISTEM AUSTROTHERM EPS 100 CONTORIZARE INDIVIDUALA - APA ,GAZE ,ELECTRICITATE AVETI POSIBILITATEA SA VA PERSONALIZATI CASA ,FINISAJELE SUNT INLUSE IN PRET AICI ESTE LOCUL IN CARE DUMNEAVOASTRA VETI REDEFINI UN NOU STANDARD AL UNEI LOCUINTE ,IN CARE VETI GASI SPATIUL DE CARE AVETI NEVOIE ,LINISTEA SI OAZA DE RELAXARE DE LA FINELE ORICAREI ZILE AGITATE ACTE PREGATITE PENTRU VANZARE : AUTORIZATIE DE CONSTRUIRE + RECEPTIA FINALA CADASTRU + INTABULARE CERTIFICAT FISCAL + CERTIFICAT ENERGETIC SE ACCEPTA CREDIT PRET 285000 EURO NEGOCIABIL
Citește mai mult Citește mai puțin
Centrală proprie Zonă rurală

Detalii casă

ID anunț: XDS01100B Copiat! 274131035 Copiat!
Actualizat în: 26 Februarie 2026
Suprafață construită: 228 mp
Suprafață desfășurată: 228 mp
Nr. bucătării: 1
Nr. băi: 2
Nr. balcoane / Terase / Logii: 1
Nr. terase: 2
Nr. fronturi stradale: 1
Învelitoare acoperiș: data_properties.roof_type.lindab, tabla
An construcție: 2025 (Finalizată)
Structură rezistență: Altele
Etaj: Etaj 1 / 1
Regim înălțime: P+1E+M

Utilități

Destinație
Birouri
Izolații termice
Exterior
Ferestre cu geam termopan
PVC
Comision
2%

Certificat energetic:

Clasa energetică: A

Puncte de interes

Recreere
restaurant
Hanul Vlasia
Restaurant aprox. 881 m

Detalii despre preț și costuri

Costuri cu achiziția

Fără credit
41.743 RON
Credit ipotecar
44.066 RON
Noua casă
1.593 RON+ taxe notariale

i

Costuri adiționale mai puțin știute la achiziție: taxe notariale, comisioane etc.

Proprietăți recomandate

Detalii de contact

BEST BUY IMOBILIARE

Hristian Radu Real Estate Expert

BEST BUY IMOBILIARE
PRO

Abonează-te la newsletter să fii primul care primește cele mai noi recomandări de proprietăți și sfaturi de la experți.

CONTACT

Creează alertă

Salvează căutarea ca să primești pe email ultimele anunțuri publicate

Case individuale cu 4+ camere de vânzare în Tărtășești, Județul Dâmbovița