Vila Individuala 6 Camere+Garaj | 500mp Teren | Calea Girocului

349.000 €

Girocului, Timișoara

Nr. cam.:
6
Sup. utilă:
147 mp
Sup. teren:
500 mp
Tip prop.:
Individuală
  • • Exclusivitate
  • • Locație exactă

Descriere casă

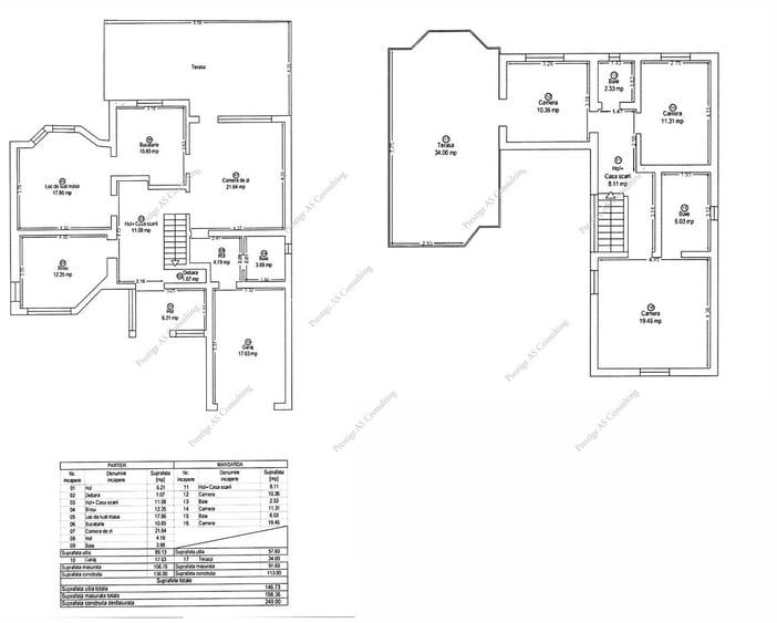
Va propunem spre vanzare, o Vila Individuala compusa din 6 Incaperi+Garaj, situata in Calea Girocului pe Strada Jean Monnet. Regimul de inlatime este P+1 Etaj+Pod, Anul constructiei 2002, iar anul renovarii 2017. Suprafata Teren 500mp, Suprafata utila 147mp, Suprafata Garaj 18mp. Compartimentare: Parter: Hol Acces, Birou, Dining, Bucatarie, Living (iesire la Terasa), Hol distributie, Baie si iesirea la Garaj. Etaj: Dormitor 1-iesire la Terasa (34mp), Dormitor 2, Baie si Dormitorul Matrimonial cu Baie proprie. Dotari: Geamuri tripan noi, Apa la retea si foraj la 110m, Centrala proprie, Instalatie Sanitara schimbata, Placa de beton intre etaje si pod, Acces pod exterior, Centrala proprie-incalzire prin calorifere, 2 aparate de Aer Conditionat, Poarta actionata electric -acces curte si Garaj. Suntem disponibili pentru a va oferi mai multe detalii.
Citește mai mult Citește mai puțin
Mobilat Mobilat Grădină Curte Aer condiționat Calorifere Centrală proprie 4 Parcări 1 Garaj Bine întreținut (Bună)

Detalii casă

ID anunț: XEDH1102G Copiat! 269478654 Copiat!
Actualizat în: 03 Februarie 2026
Suprafață construită: 100 mp
Suprafață desfășurată: 249 mp
Nr. bucătării: 1
Nr. băi: 3
Nr. terase: 2
Front stradal: 23.0 m
Învelitoare acoperiș: Țiglă
An construcție: 2002 (Finalizată)
Regim înălțime: P+2E

Utilități

Destinație
Birouri Rezidențial Comercial
Pereți
Faianță Vopsea lavabilă
Podele
Gresie Parchet
Ușă intrare
PVC
Izolații termice
Exterior
Ferestre cu geam termopan
PVC
Bucătărie
Mobilată Utilată
Electrocasnice
Aragaz Frigider Hotă Mașină de spălat TV
Diverse
Scară interioară Telecomandă poartă acces auto
Alte spații utile
WC Serviciu
Facilități imobil
Acoperiș Spații agrement
Utilități
Curent Apă Canalizare CATV Gaze Telefon
Internet
Cablu
Amenajare străzi
Iluminat stradal Mijloace de transport în comun Asfaltate

Puncte de interes

Mijloace transport
bus-station
Mures
Stații autobuz aprox. 204 m
bus-station
Statie Muzicescu E3
Stații autobuz aprox. 260 m
trolleybus-station
Statie Maresal C-tin Prezan T15, T19
Stații troleibuz aprox. 564 m
tram-station
Statie Mures Tv7
Stații tramvai aprox. 642 m
Școală
university
Institutul de Cercetari pentru Energii Regenerabile
Universități aprox. 326 m
kindergarten
Gradinita Goghita
Gradinițe aprox. 619 m
school
Scoala Generala nr. 25
Școli aprox. 702 m
university
CENTRU REGIONALDE PREGATIRE PROFESIONALA PENTRU MAGISTRATI, GIROC, tIMISOARA
Universități aprox. 1178 m
Recreere
supermarket
Lidl
Supermarket aprox. 180 m
park
Parcul de Sculptura, Fundatia Interart Triade
Parcuri aprox. 267 m
sports-ground
Teren sportiv
Terenuri sport aprox. 668 m
public-square
Piata Aron Cotrus
Piețe publice aprox. 777 m

Detalii despre preț și costuri

Costuri cu achiziția

Fără credit
14.883 RON
Credit ipotecar
17.477 RON
Noua casă
1.918 RON+ taxe notariale

i

Costuri adiționale mai puțin știute la achiziție: taxe notariale, comisioane etc.

Proprietăți recomandate

Detalii de contact

Prestige AS Consulting

Alexandra Spinu Consultant Imobiliar

Prestige AS Consulting
PRO

Abonează-te la newsletter să fii primul care primește cele mai noi recomandări de proprietăți și sfaturi de la experți.

CONTACT

Creează alertă

Salvează căutarea ca să primești pe email ultimele anunțuri publicate

Case individuale cu 4+ camere de vânzare în zona Girocului, Timișoara