Vila Interbelica cu Caracter – Zona Unirii (Str. George Georgescu)
Va prezentam o oportunitate rara de achizitie in inima Capitalei: o proprietate interbelica distinsa, situata pe Strada George Georgescu, intr-o zona care imbina farmecul istoric cu utilitatea urbana moderna. Construita in anul 1930 si renovata integral, aceasta vila reprezinta echilibrul perfect intre eleganta clasica si confortul actual.
Detalii Cheie:
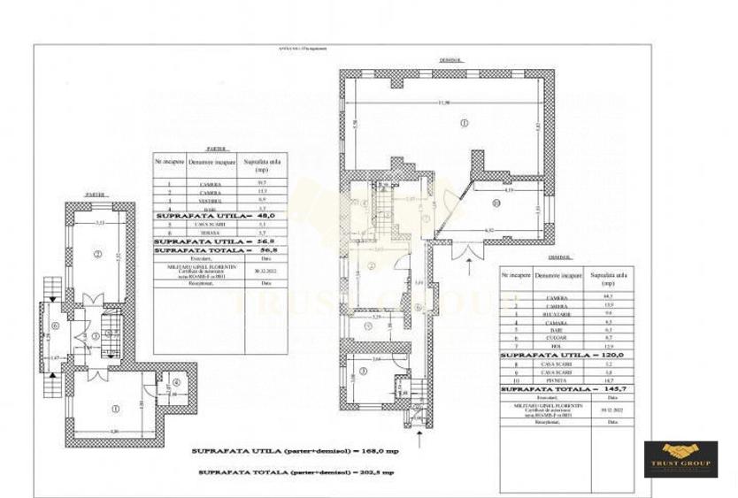
• Spatiu Generos: 5 camere luminoase, cu o suprafata utila de 168 mp.
• Configuratie: Regim de inaltime D+P+Pod, ideal pentru o compartimentare versatila.
• Teren & Deschidere: Suprafata teren 155 mp, 70mp liberi, cu un front stradal generos de 16 m si acces pe 2 fronturi, oferind vizibilitate si acces facil.
• Renovare Completa: Instalatii electrice si sanitare noi, centrala termica proprie, finisaje de calitate (parchet, gresie, tamplarie PVC cu termopan).
Localizare si Puncte de Reper
Proprietatea beneficiaza de o pozitie strategica, fiind situata la doar cateva minute de mers pe jos de principalele noduri ale orasului:
• Transport: Metrou Piata Unirii (acces rapid catre magistralele M1, M2, M3).
• Shopping & Leisure: Unirea Shopping Center, zona comerciala a Bulevardului Unirii si restaurantele cochete din zona Pietei Constitutiei.
• Cultura si Institutii: Palatul Parlamentului, Piata Cosbuc si Liceul „Mihai Eminescu”.
• Utilitate: Acces imediat catre numeroase centre bancare, clinici medicale si puncte de interes public.
Potential Utilizare
Datorita locatiei centrale si a compartimentarii, imobilul este pretabil pentru:
1. Rezidential: O casa de familie primitoare, cu curte proprie, intr-o zona linistita dar centrala.
2. Business: Sediu de firma, cabinet notarial, clinica estetica/stomatologica sau birou de arhitectura.
( Proprietatea este in prezent inchiriata catre o firma pentru suma de 1900€/ luna)
Specificatii Tehnice
• Utilitati: Apa, Gaz, Canalizare, Curent electric, Aer conditionat.
• Dotari suplimentare: Pivnita pentru depozitare, curte privata, contorizare separata.
• Stare: Gata de mutare (nemobilata).
Pentru a simti cu adevarat atmosfera acestei proprietati deosebite, va invitam la o vizionare. Contactati-ne pentru detalii suplimentare!
Sediul central - Timișoara
Bulevardul Victor Babeș nr. 2, 300230, Timișoara, România
Tel: +40.374.40.44.98 / Fax: +40.256.401.179
Email: suport@imobiliare.ro
Luni - Vineri 08:00 - 20:00
Punct de lucru - București: Iride Business Park, Bld. Dimitrie
Pompeiu 9-9A, Clădirea B2B,
020335, Sector 2, București, România
CONTACT
Sediul central - Timișoara
Bulevardul Victor Babeș nr. 2, 300230, Timișoara, România
Tel: +40.374.40.44.98 / Fax: +40.256.401.179
Email: suport@imobiliare.ro
Luni - Vineri 08:00 - 20:00
Punct de lucru - București: Iride Business Park, Bld. Dimitrie
Pompeiu 9-9A, Clădirea B2B,
020335, Sector 2, București, România
Sună acum și cere detalii sau programează o vizionare.
Cere detalii prin email
*
*
*
*
Stații autobuz
Stații tramvai
Stații metrou
Stații troleibuz
Universități
Școli
Gradinițe
Supermarket
Parcări
Parcuri
Piețe publice
Terenuri sport
Farmacie
Spital
Restaurant
Bar
Pub
Cafenea
Bancă
Statia Piata Regina Maria, linia N114, 117, 23, 32
aprox.
262 m
Statia Casa Academiei, linia 136, N121
aprox.
319 m
Statia Palatul Parlamentului, linia 136, N121
aprox.
413 m
Statia Calea 13 Septembrie, linia 136, N121
aprox.
417 m
Statia Piata Chirigiu, linia 173, N114, 117, 23, 32
aprox.
604 m
Statia Soseaua Viilor, linia 117
aprox.
650 m
statia Gramont, linia 7, 23, 27, 47
aprox.
688 m
Statia Parcul Carol I, linia 232, 7, 23, 27, 47
aprox.
746 m
Statia Parcul Carol I linii : 232, 7, 23, 27, 47
aprox.
757 m
statia Piata Arsenalului, linia 385, 136, N121, N122
aprox.
855 m
Autogara Filaret
aprox.
861 m
Statia Autogara Filaret linii : 232, N107, 7, 47
aprox.
891 m
Statia Dr. Staicovici, linia 385, N122
aprox.
922 m
statia Autogara Filaret, linia 232, N107, 7, 47
aprox.
924 m
Statia Spatarul Preda, linia 173
aprox.
926 m
Piata Regina Maria
aprox.
322 m
Gramont
aprox.
685 m
Patriarhia Romana
aprox.
692 m
Piata Chirigiu
aprox.
695 m
Statie Tramvai 32, 23
aprox.
700 m
Parcul Carol I
aprox.
703 m
11 Iunie
aprox.
715 m
Parcul Carol I
aprox.
818 m
Autogara Filaret
aprox.
900 m
Soseaua Progresului
aprox.
949 m
Calea Rahovei
aprox.
985 m
Calea Rahovei
aprox.
998 m
Statia Inox, Liniile 1, 8, 11, 25, 47
aprox.
1015 m
Soseaua Progresului
aprox.
1038 m
Soseaua Viilor
aprox.
1146 m
Metrorex. Statia Izvor (M1) , (M3).
aprox.
1211 m
Metrorex. Statia Izvor (M1) , (M3).
aprox.
1221 m
Izvor
aprox.
1232 m
Metrorex. Stația Izvor (M1),(M3)(1979)
aprox.
1236 m
Metrorex. Stația Piața Unirii 1 (M1) (en)
aprox.
1290 m
Piata Unirii 1
aprox.
1324 m
Metrorex. Stația Piața Unirii 1 (M1),(M3)(1979)
aprox.
1347 m
Metrorex. Stația Piața Unirii 2 (M2)(1986)
aprox.
1461 m
Metrorex. Stația Piața Unirii 2 (M2) (en)
aprox.
1491 m
Piata Unirii 2
aprox.
1499 m
Metrorex. Stația Tineretului (M2)(1986)
aprox.
1555 m
Statia Metrou Tineretului(M2)Metrorex
aprox.
1619 m
Tineretului (M2)
aprox.
1654 m
Metrorex. Stația Eroilor (M1),(M3)(1979)
aprox.
1693 m
Eroilor
aprox.
1693 m
Statia Facultatea de Drept, linia 61,69,90,91
aprox.
1426 m
Statia Vasile Parvan 66,70,92
aprox.
1531 m
Statia Piata Operei, linia 61,69,90,91
aprox.
1599 m
statia RATB Eroilor: 69, 96
aprox.
1787 m
Statia Stirbei Voda, linia 96
aprox.
1876 m
Casa Academiei
aprox.
34 m
Academia Tehnica Militara
aprox.
439 m
Facultatea de medicina veterinara
aprox.
1000 m
Facultatea de Medicina Veterinara (en)
aprox.
1181 m
Facultatea de Teologie Ortodoxa
aprox.
1212 m
Academia de Studii Economice: Facultatea de Management - Administratie Publica
aprox.
1249 m
Academia de Studii Economice
aprox.
1256 m
Universitatea din Bucuresti
aprox.
1322 m
Facultatea de Medicina Veterinara
aprox.
1326 m
Facultatea de Sociologie si Asistenta Sociala
aprox.
1464 m
Facultatea de Sociologie și Asistență Socială
aprox.
1475 m
Camin A
aprox.
1501 m
Rectoratul Universitatii din București și sediul Facultății de Drept
aprox.
1507 m
Rectoratul Univ. Bucuresti
aprox.
1507 m
Clinica de Protetica si Ocluzologie si Clinica de Pedodontie
aprox.
1522 m
ȘCOALA CU CLASELE I-VIII NR. 128
aprox.
428 m
Liceu de Coregrafie Floria Capsali
aprox.
767 m
Liceul de Arte "Dinu Lipatti"
aprox.
780 m
COLEGIUL ECONOMIC "VIILOR"
aprox.
983 m
Colegiul Economic Viilor
aprox.
1015 m
Colegiul economic "Viilor"
aprox.
1016 m
Elohim Academi
aprox.
1044 m
Scoala nr.74, "Enachita Vacarescu"
aprox.
1187 m
Scoala nr 94
aprox.
1187 m
Gradinita Aniela
aprox.
1333 m
Scoala Nr. 115
aprox.
1364 m
Clubul Copiilor si Elevilor sect. 5
aprox.
1367 m
Liceul Motoc (en)
aprox.
1371 m
Scoala nr 115
aprox.
1373 m
Scoala Generala 130 (en)
aprox.
1373 m
Gradinita nr. 268
aprox.
473 m
Gradinita Cuibusorul Zanelor
aprox.
531 m
Gradinita nr.224, "Vestitorii Primaverii"
aprox.
540 m
Gradinita nr. 224
aprox.
542 m
Gradinita nr. 269
aprox.
614 m
Gradinita nr. 192 (Pisicile aristocrate)
aprox.
848 m
Gradinita nr.192, "Pisicile Aristocrate"
aprox.
859 m
Gradinita Prikindel
aprox.
995 m
GRĂDINIȚA DE COPII ELECTROMAGNETICA
aprox.
1169 m
Cresa Micii Poznasi
aprox.
1260 m
Gradinita cu program prelungit Copiii Soarelui
aprox.
1308 m
Gradinita de Copii nr.30 "Copiii soarelui
aprox.
1308 m
Gradinita nr. 73
aprox.
1313 m
Gradinita Motoc
aprox.
1422 m
Gradinita Barba Cot
aprox.
1474 m
Profi Non-Stop
aprox.
216 m
Mega Image
aprox.
582 m
Succes
aprox.
816 m
Shop & Go
aprox.
830 m
Mega Image
aprox.
848 m
Carrefour express
aprox.
855 m
Mega Image
aprox.
897 m
Liberty Center Mall
aprox.
957 m
Carrefour Market
aprox.
982 m
Carrefour Express
aprox.
1009 m
Jysk
aprox.
1139 m
Carrefour Vulcan
aprox.
1259 m
Mega Image (en)
aprox.
1295 m
Kaufland Sebastian
aprox.
1385 m
dm
aprox.
1409 m
Parcare
aprox.
109 m
Parcare
aprox.
200 m
Parcare
aprox.
297 m
Parcare
aprox.
368 m
Parcare
aprox.
428 m
Parcare
aprox.
428 m
Parcare
aprox.
434 m
Parcare
aprox.
435 m
Parcare
aprox.
683 m
Parcare
aprox.
744 m
Parcare
aprox.
752 m
Parcare
aprox.
766 m
Parcare
aprox.
800 m
Parcare
aprox.
896 m
Parcare
aprox.
900 m
Gradina Palatului Bragadiru
aprox.
144 m
Parc
aprox.
385 m
Parc
aprox.
544 m
Parc
aprox.
610 m
Curtea Palatului Parlamentului
aprox.
628 m
Parc
aprox.
628 m
Parc
aprox.
628 m
Parc
aprox.
638 m
Parc
aprox.
713 m
Parc
aprox.
756 m
Parc
aprox.
769 m
Parcul Gara Filaret
aprox.
769 m
Parc
aprox.
884 m
Parc
aprox.
899 m
Dealul Mitropoliei
aprox.
899 m
Piața Regina Maria
aprox.
265 m
P-ta Chirigiu
aprox.
622 m
Piața Constituției
aprox.
679 m
Piata Arsenalului
aprox.
829 m
Piata Natiunilor Unite
aprox.
1120 m
Jose Rizal Square (en)
aprox.
1143 m
Piata Bibescu
aprox.
1172 m
Piața Sfântul Anton
aprox.
1506 m
Piata Bucur
aprox.
1640 m
Piata Timpului
aprox.
1655 m
Piata Roma
aprox.
1666 m
Piața Drapelului (Tricolorului)
aprox.
1666 m
Piața Eroilor
aprox.
1828 m
Piata Universitatii
aprox.
1975 m
Teren sportiv
aprox.
723 m
Teren sportiv
aprox.
735 m
Teren sportiv
aprox.
758 m
Stadionul Cotroceni
aprox.
1149 m
Teren sportiv
aprox.
1156 m
Teren sportiv
aprox.
1168 m
Teren Antrenament
aprox.
1169 m
Teren sportiv
aprox.
1171 m
Teren sportiv
aprox.
1182 m
Teren sportiv
aprox.
1191 m
Teren sportiv
aprox.
1194 m
Teren sportiv
aprox.
1204 m
Teren sportiv
aprox.
1210 m
Teren sportiv
aprox.
1214 m
Teren sportiv
aprox.
1232 m
Homeofarm
aprox.
694 m
Pharma Vic
aprox.
998 m
Sensiblu
aprox.
1014 m
Help Net Farma
aprox.
1212 m
Farmacia 20
aprox.
1258 m
Farmacia Belladonna 54
aprox.
1277 m
Farmacia Dona
aprox.
1278 m
Farmacia 48
aprox.
1293 m
Plafar
aprox.
1309 m
Urgent Farm
aprox.
1310 m
Ivo Pharm Impex
aprox.
1312 m
Farmaciile 2NA
aprox.
1364 m
Sensiblu
aprox.
1380 m
Alma Farm Com 95
aprox.
1392 m
Tinos-Farm
aprox.
1447 m
Discovery Clinic (en)
aprox.
812 m
Oftapro
aprox.
842 m
Institutul de Fonoaudiologie si Chirurgie Functionala ORL Profesor Doctor Dorin Hociota
aprox.
1056 m
Spital Fonoaudiologie "Prof. D. Hociota"
aprox.
1067 m
Spitalul Clinic Profesor Doctor Theodor Burghele
aprox.
1202 m
Spitalul clinic Prof. Dr. Th. Burghele
aprox.
1205 m
Clinica Medicala HIPOCRAT 2000
aprox.
1211 m
Europe EYE Hospital (en)
aprox.
1237 m
Europe Eye
aprox.
1237 m
Policlinica Ministerului de Interne
aprox.
1263 m
I.N.E.M.R.C.M. - Institutul National de Expertiza Medicala si Recuperare a Capacitatii de Munca
aprox.
1276 m
Institutul National de Expertiza Medicala si Recuperare a Capacitatii de Munca
aprox.
1284 m
Institutul Victor Babes
aprox.
1289 m
Institutul National pentru medicina complementara si alternativa
aprox.
1302 m
Medlife Unirii
aprox.
1305 m
Mahala Restaurant
aprox.
61 m
Suzana Ribs & Wings
aprox.
85 m
Restaurant La Giganto
aprox.
296 m
La Giganto
aprox.
304 m
Restaurant Business
aprox.
345 m
Dharma
aprox.
372 m
Musafir (en)
aprox.
391 m
Restaurant Zariștea
aprox.
422 m
Jaristea
aprox.
428 m
Casa Sarbeasca
aprox.
469 m
Restaurant La Chef Calcan
aprox.
474 m
Bistro Orhideea
aprox.
496 m
La Oriental
aprox.
667 m
Restaurant Costelaria
aprox.
701 m
Haute Pepper
aprox.
702 m
Braserie Cosbuc
aprox.
309 m
Club Expirat
aprox.
868 m
Nargila Grill&Bar
aprox.
1300 m
Big Mamou
aprox.
1317 m
B Bar
aprox.
1328 m
55 Jazz
aprox.
1338 m
Qetesh
aprox.
1344 m
True Social Club
aprox.
1385 m
Energiea
aprox.
1390 m
Bound Club
aprox.
1391 m
Corelli Wine Bar
aprox.
1394 m
La Comedie
aprox.
1395 m
Izzy Bar
aprox.
1396 m
Freddo
aprox.
1397 m
Zapata Tequilla Bar
aprox.
1403 m
Club Fabrica
aprox.
668 m
Long Fong
aprox.
689 m
Carol Cafe
aprox.
833 m
The Temple
aprox.
1219 m
D`eight Pub
aprox.
1270 m
Queen and Clown Pub
aprox.
1325 m
Old City
aprox.
1334 m
Oktoberfest 3
aprox.
1336 m
The Harp
aprox.
1338 m
Explorer's Irish Pub
aprox.
1340 m
O`Hara Irish Pub
aprox.
1360 m
Club Expirat and Other Side
aprox.
1386 m
The Bankers
aprox.
1387 m
Goblin Club
aprox.
1389 m
Cliche Club & Lounge
aprox.
1406 m
Mall Liberty
aprox.
944 m
Cofetaria Raisa
aprox.
1035 m
Angel Cafe
aprox.
1072 m
Dalidana
aprox.
1091 m
Cafe Torino
aprox.
1160 m
Bio Cream gelateria
aprox.
1236 m
Unique
aprox.
1358 m
La Folie
aprox.
1358 m
Cafe Deko
aprox.
1372 m
Kafeterya Cafe
aprox.
1373 m
Buen Humor
aprox.
1376 m
Arcade Cafe
aprox.
1379 m
Double Deuce's
aprox.
1380 m
Crepes & Gelato artigianale
aprox.
1383 m
Origo
aprox.
1395 m
BCR
aprox.
201 m
Raiffeisen Bank
aprox.
299 m
BRD
aprox.
299 m
Raiffeisen
aprox.
313 m
BRD Libertatii
aprox.
315 m
Banc post
aprox.
395 m
Bancpost
aprox.
401 m
Volksbank
aprox.
866 m
BCR
aprox.
880 m
ING 13 Septembrie
aprox.
881 m
Volksbank
aprox.
932 m
Piraeus Bank Romania - Agentia Panduri
aprox.
933 m
Banca Transilvania - Ag. Mall Liberty Center
aprox.
994 m
BancPost
aprox.
1005 m
Banca Transilvania - Suc. Marriott
aprox.
1015 m
Fiind o zonă ultracentrală, aceasta oferă numeroase opțiuni de călătorie cu mijloacele de transport în comun, și este bine conectată cu restul orașului. Ai, în primul rând, la dispoziție stațiile de metrou Piața Victoriei, Piața Romană și Universitate. Astfel, te vei putea deplasa rapid prin oraș, evitând aglomerația de la suprafață. Toate acestea sunt situate pe magistrala 2 care traversează Bucureștiul de la nord la sud. În plus, de la Piața Victoriei vei putea lua metroul și pe magistrala 1 pentru a ajunge, de exemplu, în cartierul Pantelimon sau în zona Eroilor. Prin Piața Universității urmează să treacă și magistrala 5 care va lega cartierele Drumul Taberei și Pantelimon. Până acum, s-au deschis însă doar stațiile de metrou aflate în zona Drumul Taberei. Alte mijloace de transport în comun care ar putea să-ți fie de ajutor atunci când te vei muta în această zonă sunt autobuzele 300 și 381. Primul face legătura dintre Piața Romană și Piața Victoriei continuându-și apoi traseul de-a lungul Bulevardului Ion Mihalache, iar cel de-al doilea conectează Piața Victoriei cu zona Tineretului și cu cartierul Berceni. De pe Bulevardul Regina Elisabeta vei putea lua troleibuzul 90 pentru a ajunge în Drumul Taberei sau în zona Arenei Naționale, iar în fața Spitalului Colțea vei găsi stația autobuzului 381 care merge în cartierul Berceni. Iar dacă preferi să te deplasezi pe două roți, vei avea la dispoziție una dintre pistele speciale destinate bicicliștilor pe Calea Victoriei. Aceasta îți va oferi, în plus, oportunitatea ideală de a admira arhitectura deosebită a clădirilor aflate de o parte și de alta a uneia dintre cele mai frumoase străzi din București. Consultă harta pentru a afla unde sunt localizate stațiile mijloacelor de transport în comun.
În această zonă găsim sediul central al Universității din București și cel al Academiei de Studii Economice din București (ASE), unele dintre cele mai prestigioase instituții de învățământ superior din România. Tot aici se află și sediile mai multor facultăți. Ai și alte instituții de învățământ cu renume la doi pași de casă, precum precum Colegiul Național "Sfântul Sava", Colegiul Național "Gheorghe Lazăr", Liceul Teoretic Bulgar "Hristo Botev" și Universitatea Națională de Muzică. De menționat este și Căminul Moxa, aflat în zona Calea Victoriei, în care sunt cazați unii dintre studenții ASE. Consultă harta de mai jos pentru a vedea și celelalte unități de învățământ din zonă.
În această parte a orașului vei găsi numeroase reprezentanțe ale unor branduri de lux. Cele mai multe magazine alimentare din zonă au dimensiuni reduse. Pentru cumpărături îți recomandăm Piața Amzei, aflată la doi pași de Romană și modernizată recent. Aici găsești, pe lângă comercianți de unde poți cumpăra legume și fructe și câteva magazine cu preparate proaspete de la burgeri, la pâine artizanală sau înghețată. Centrul Vechi găzduiește, totodată, reprezentanțe ale unor retaileri de modă. Tot aici găsești și librăria Cărturești Carusel, una dintre cele mai frumoase din oraș. O librărie Cărturești deschisă într-o altă clădire deosebită poate fi găsită și în apropiere de Piața Romană. Un spațiu comercial cu renume este Magazinul Victoria, un monument istoric al orașului. Magazinul București, amplasat la intersecția străzilor I.C. Brătianu și Lipscani a fost reconstruit recent cu o investiție substanțială. Ai în apropiere magazinul Cocor, centrul comercial Unirea Shopping City și un hipermarket Carrefour. Cu mașina sau metroul poți să ajungi destul de repede la mall-ul AFI Cotroceni. Consultă harta și vezi ce magazine vei avea în apropierea noii tale case.
Aceasta este una dintre cele mai aglomerate zone din București la orele de vârf. Aici găsești însă și unele dintre puținele parcări subterane din Capitală. Chiar vis-a-vis de Universitatea București ai intrarea într-o astfel de parcare cu peste 400 de locuri. O parcare destul de încăpătoare poate fi găsită și în Piața Victoriei. Atenție, însă, această zonă se poate aglomera nu doar din cauza traficului, ci și din cauza diverselor manifestări sau proteste care se organizează, de obicei, în fața Palatului Victoria, sediul Guvernului României. Dacă te hotărăști să te muți în zonă, atunci îți recomandăm să te interesezi de posibilitatea închirierii unui loc de parcare pentru mașina ta. Poți face acest lucru apelând la Serviciul Parcaje al ADP Sector 1. Consultă harta pentru a afla unde găsești și alte parcări în zona Victoriei-Romană-Universitate.
Zona Victoriei - Romană - Universitate este un epicentru cultural al Capitalei și oferă numeroase opțiuni de petrecere a timpului liber. Aici vei găsi numeroase muzee impresionante pe care le poți vizita în timpul liber (Muzeul Național de Istorie Naturală "Grigore Antipa", Muzeul Țăranului Român, Muzeul Național George Enescu, etc), vei putea participa la evenimentele în aer liber desfășurate pe Calea Victoriei sau în Piața George Enescu sau vei putea merge la un spectacol organizat pe scena Ateneului Român sau pe cea a Teatrului Notarra. Nu rata nici o vizită la Teatrul Național "I.L. Caragiale" și la Muzeul Național de Artă al României. Observatorul Astronomic Amiral Vasile Urseanu te așteaptă cu o experiență extrem de educativă care va fi, cu siguranță, apreciată de micuțul tău. Dacă îți place să ieși la o cafea în timpul liber alături de prietenii tăi, atunci în această zonă vei putea alege dintr-o multitudine de restaurante, terase și pub-uri. Nu lipsesc nici skybar-urile, care îți oferă priveliști de excepție de la înălțime. Cele câteva parcuri din zona Victorieim - Romană - Universitate au dimensiuni destul de reduse, dar sunt frumos îngrijite. Printre acestea amintim Parcul Ateneului și Parcul Nicolae Iorga. Dacă preferi plimbările lungi în weekend, atunci vei avea la dispoziție în apropiere parcurile Kiseleff și Cișmigiu. Nu uita, de asemenea, că te vei afla la doi pași de Centrul Vechi al Capitalei, dar și că vei putea să faci o plimbare cu bicicleta pe Calea Victoriei. În condiții normale, se organizează periodic evenimente în centrul orașului, atât în cadrul Sălii Palatului, cât și în aer liber în Piața Revoluției. În Piața Universității sunt organizate, totodată, diferite târguri și concerte. Vezi pe hartă mai multe puncte de interes din zona Victoriei-Romană-Universitate.
Chiar la Piața Universității se află principala unitate sanitară din zonă. Este vorba despre Spitalul Clinic Colțea, primul înființat în București. În zona Victoriei - Romană - Universitate vei întâlni mai multe clinici private, precum Policlinica Enescu din cadrul rețelei de sănătate Regina Maria și Spitalul Clinic Sanador. La doi pași de Piața Romană se află Spitalul Clinic de Urgențe Oftalmologice, cel mai mare din România cu o astfel de specializare. Consultă harta pentru a afla ce clinici private ai în apropierea casei, dacă te muți în această parte a orașului.
Găsești numeroase restaurante, terase și cafenele potrivite pentru toate gusturile în Centrul Vechi al orașului, pe Calea Victoriei sau în zona din spatele Ateneului Român. Câteva fast food-uri ai la dispoziție în Unirea Shopping Center. Nu foarte departe, în zona Romană, ai și alte opțiuni. Află de pe hartă unde găsești cel mai apropiat restaurant de noua ta casă.
Sucursale ale diferitelor bănci sunt dispuse de-a lungul principalelor artere de circulație sau în marile intersecții din zonă. Un BRD, spre exemplu, găsești chiar lângă Cercul Militar Național. Pe Bulevardul Nicolae Bălcescu o sucursală Banca Transilvania și ING Bank. La doi pași de Piața Universității se află și Palatul Băncii Naționale a României. Consultă harta pentru mai multe detalii.
Înainte să pleci...
Ești sigur că ai văzut și aceste proprietăți?
375.000 €
București, Moșilor
4 camere
138 mp
196 mp teren
330.000 €
București, Ștefan cel Mare
4 camere
84 mp
124 mp teren
649.900 €
București, P-ța Romană
6 camere
233 mp
375 mp teren
460.000 €
București, P-ța Unirii
12 camere
290 mp
180 mp teren
449.000 €
București, Banu Manta
7 camere
170 mp
200 mp teren
440.000 €
București, Victoriei
5 camere
126 mp
80 mp teren
Creează alertă
Salvează căutarea ca să primești pe email ultimele anunțuri publicate
Case individuale cu 4+ camere de vânzare în Ultracentral, București
Cere detalii prin email
*
*
*
*
Detaliile tale de contact vor fi partajate cu Trust Group Real Estate
Preț total1.797.918 RON (352.927 €)
Costuri cu achiziția14.914 RON
Preț de achiziție1.783.004 RON
Costuri cu achiziția14.914 RON
Comision agenție Întreabă agenţia
Onorariu notarial12.239 RON
Taxă înscriere OCPI2.675 RON
Preț de achiziție1.783.004 RON
Preț locuință1.783.004 RON
TVA 0%Inclus în prețul cerut
Cost total288.528 RON (56.637 €)
Avans (15%)267.451 RON
Cost achitat în prima lună3.565 RON
Costuri cu achiziția17.512 RON
Cost achitat în prima lună3.565 RON
Comision analiză dosar
400 RON - 900 RON
Taxă evaluare imobil(până la)
900 RON
Rata lunară (variabilă)7.942 RON
Asigurare anuală imobil1.783 RON
Arhivă electronică102 RON
Poliță PAD130 RON
Asigurare de viață/lună Costul este variabil. În funcție de banca aleasă, procentul variază între 0.0259% și 0.035% din soldul creditului.
Costuri cu achiziția17.512 RON
Comision agenție Întreabă agenţia
Onorariu notarial12.239 RON
Taxă întabulare OCPI2.675 RON
Autentificare contract credit2.598 RON
Preț de achiziție1.783.004 RON
Preț locuință1.783.004 RON
TVA 0%Inclus în prețul cerut
Preț de achiziție1.783.004 RON
Preț locuință1.783.004 RON
TVA 0%
Inclus în prețul cerut
Avans minim1.176.783 RON
Credit pe 30 de ani606.222 RON
Cost achitat în prima lună
Taxa evaluare imobil(până la)
900 RON
Rata lunară (variabilă)4.260 RON
Depozit colateral12.780 RON
Comision de garantare FNGCIMM149 RON
Asigurare anuală imobil1.783 RON
Poliță PAD130 RON
Tarif arhivă electronică102 RON
Costuri adiționale1.923 RON + taxe notariale
Asigurare viață și complexă (opțională)Costul este variabil. În funcție de banca aleasă, procentul variază între 0.0259% și 0.035% din soldul creditului
Onorariu notarialconform tarif notarial
Taxă întabulare OCPI1.923 RON
i
Toate valorile de mai sus sunt estimative și nu reprezintă în mod obligatoriu costurile exacte pe care le veți primi de la companiile/instituțiile prin care veți încheia tranzacția.