Utvin-Casa Individuală-Personalizare la Cheie

174.000 €

Utvin, Județul Timiș

Nr. cam.:
3
Sup. utilă:
115 mp
Sup. teren:
400 mp
Tip prop.:
Individuală
  • • Comision 0%
  • • Exclusivitate
  • • Locație exactă

Descriere casă

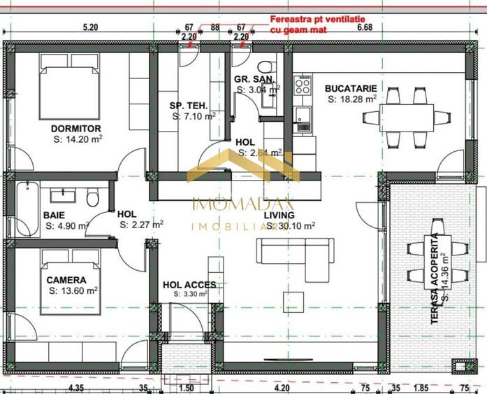
IMOMADAX vă prezintă spre vânzare o casă individuală situată în Utvin, pe o stradă ferită de aglomerație cu toate utilitățile de la retea( apa,gaz,curent trifazic,canalizare) Casa beneficiază de finisaje de calitate,living generos cu scafe led,termostate de temperatură prevăzute in fiecare cameră,încălzire în pardoseală (inclusiv pe terasă în cazul în care acestea se va închide pe viitor),geamuri tripan de la Salamander,pervaze de marmură,video interfon,poarta auto pregătită pentru automatizare,gard la stradă din prefabricat de marmură spartă,curtea se amenajează cu aleei pavate . Compartimentare: -hol de acces -living -bucatarie închisă -2 băi -camera tehnică( pentru centrala,mașina de spălat,uscător) -2 dormitoare -terasă acoperită -pod de depozitare. Casa se predă la cheie clienții având posibilitatea de a alege finisajele după bunul plac într-un buget dat. Se acceptă achiziționarea prin intermediul unui credit bancar. Nu se percepe comision din partea cumpărătorului,comision 0% Mai multe detalii telefonic.
Citește mai mult Citește mai puțin
Centrală proprie Încălzire prin pardoseală 3 Parcări

Detalii casă

ID anunț: XE0Q110AD Copiat! 270164281 Copiat!
Actualizat în: 16 Februarie 2026
Suprafață construită: 145 mp
Suprafață desfășurată: 145 mp
Nr. bucătării: 1
Nr. băi: 2
Nr. terase: 1
Suprafață terase: 15 mp
Front stradal: 20.0 m
Învelitoare acoperiș: Țiglă
An construcție: 2025 (Finalizată)
Structură rezistență: Cărămidă

Utilități

Pereți
Faianță Vopsea lavabilă
Podele
Gresie Parchet
Ușă intrare
PVC
Uși interior
Lemn
Izolații termice
Exterior
Ferestre cu geam termopan
PVC
Contorizare
Apometre Contor căldură
Utilități
Curent Apă Canalizare CATV Gaze Telefon
Internet
Cablu
Amenajare străzi
Iluminat stradal Mijloace de transport în comun Asfaltate
Comision
0%

Disponibilitate proprietate:

Imediat

Puncte de interes

Mijloace transport
bus-station
Statie Utvin autobus M36
Stații autobuz aprox. 280 m
bus-station
Statie Abator M36 si Expres 7
Stații autobuz aprox. 1918 m

Detalii despre preț și costuri

Costuri cu achiziția

Fără credit
8.873 RON
Credit ipotecar
10.724 RON
Noua casă
1.026 RON+ taxe notariale

i

Costuri adiționale mai puțin știute la achiziție: taxe notariale, comisioane etc.

Proprietăți recomandate

Detalii de contact

IMOMADAX IMOBILIARE

Madalina Filipescu Manager

IMOMADAX IMOBILIARE
PRO

Abonează-te la newsletter să fii primul care primește cele mai noi recomandări de proprietăți și sfaturi de la experți.

CONTACT

Creează alertă

Salvează căutarea ca să primești pe email ultimele anunțuri publicate

Case individuale cu 3 camere de vânzare în Utvin, Județul Timiș