Casa individuala P+1, curte libera 350 mp, zona Berceni-Vidra, Ilfov

155.000 €

Vidra, Județul Ilfov

Nr. cam.:
4
Sup. utilă:
120 mp
Sup. teren:
420 mp
Tip prop.:
Individuală
  • • Comision 0%
  • • Locație aproximativă

Descriere casă

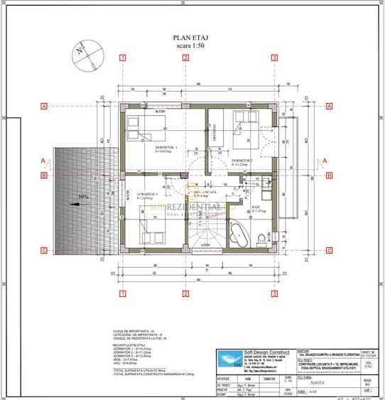
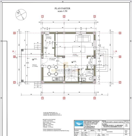
Casa P+1+Pod, complet finalizata, situata in Vidra, Ilfov – Strada Dealu Frumos. Proprietatea este edificata pe un teren de 420 mp, cu amprenta la sol 68 mp si aprox. 350 mp curte libera. Suprafata utila totala: 120 mp. Compartimentare: - Parter: living, bucatarie inchisa, baie de serviciu, birou, spatiu depozitare, acces terasa. - Etaj: 2 dormitoare, fiecare cu baie proprie si dressing, + balcon. - Pod: izolat cu spuma poliuretanica (celula deschisa), utilizabil pentru depozitare. Detalii tehnice: - Structura pe cadre din beton armat - Zidarie Ytong (25 cm exterior / 12.5 cm interior) - Izolatie exterioara polistiren 10 cm - Incalzire in pardoseala pe toata suprafata - Tamplarie PVC tripan - Acoperis tip sarpanta Utilitati: apa din put, fosa septica, instalatii finalizate - 2 locuri de parcare in curte - Curtea imprejmuita integral Receptia este efectuata, iar documentatia pentru vanzare va fi completata in aproximativ 2 luni. Pret: 155.000 Euro (fara TVA). Disponibila pentru vizionare.
Citește mai mult Citește mai puțin
Nemobilat Grădină Curte Centrală proprie Încălzire prin pardoseală Beci 2 Parcări

Detalii casă

ID anunț: XFQP1102M Copiat! 272417828 Copiat!
Actualizat în: 16 Martie 2026
Suprafață construită: 68 mp
Suprafață desfășurată: 133 mp
Nr. bucătării: 1
Nr. băi: 2
Nr. terase: 1
Suprafață terase: 15 mp
Învelitoare acoperiș: Tabla
An construcție: 2025 (Finalizată)
Structură rezistență: Beton
Regim înălțime: P+1E

Utilități

Pereți
Faianță Vopsea lavabilă
Podele
Gresie Parchet
Ușă intrare
PVC
Uși interior
Celulare
Izolații termice
Exterior
Ferestre cu geam termopan
PVC
Contorizare
Contor gaz
Facilități imobil
Acoperiș
Utilități
Curent Apă Canalizare CATV Fosa septică Gaze Telefon
Internet
Cablu
Amenajare străzi
Iluminat stradal Mijloace de transport în comun Asfaltate Pietruite
Comision
0%

Disponibilitate proprietate:

Imediat

Puncte de interes

Recreere
restaurant
Salon Evenimente Casa Alba
Restaurant aprox. 1240 m

Detalii despre preț și costuri

Costuri cu achiziția

Fără credit
8.223 RON
Credit ipotecar
9.993 RON
Noua casă
930 RON+ taxe notariale

i

Costuri adiționale mai puțin știute la achiziție: taxe notariale, comisioane etc.

Proprietăți recomandate

Detalii de contact

SUDREZIDENTIAL.

Cosmin Ghinoiu Director Vanzari

SUDREZIDENTIAL.
PRO

Abonează-te la newsletter să fii primul care primește cele mai noi recomandări de proprietăți și sfaturi de la experți.

CONTACT

Creează alertă

Salvează căutarea ca să primești pe email ultimele anunțuri publicate

Case individuale cu 4+ camere de vânzare în Vidra, Județul Ilfov