7

Vilă cu 5 camere | 2 garaje | 350mp gradina

2.000 € / lună

Pipera, București

Nr. cam.:
5
Sup. utilă:
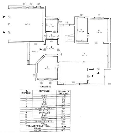
263 mp
Sup. teren:
500 mp
Tip prop.:
Duplex
  • • Locație aproximativă
  • • Vizionare prin apel video

Descriere casă

Aceasta vila cocheta, dispusa pe 2 nivele (P+1), se afla in zona Pipera si a fost construita pe un teren de 500mp oferind intimitate si spatiu verde. Are o suprafata utila de 263mp si 350mp gradina. Parterul vilei este compus din zona de living cu semineu, loc de luat masa si iesire pe terasa, bucatarie deschisa si echipata, birou/ dormitor, grup sanitar, camera tehnica cu spalatorie si garaj pentru 2 masini. La etaj este dormitorul matrimonial cu dressing si baie proprie si 2 dormitoare secundare fiecare cu baie proprie. In curte se pot parca alte 2 masini. Vila se afla in imediata apropiere a statiei de autobuz si la cateva minute de mers de supermarketul Mega Image si la cateva minute de condus de scolile internationale.
Citește mai mult Citește mai puțin
Nemobilat Grădină Aer condiționat Calorifere Centrală proprie 2 Parcări 2 Garaje Renovat

Detalii casă

ID anunț: X1UR110R7 Copiat! 269334974 Copiat!
Actualizat în: 07 Martie 2026
Suprafață construită: 140 mp
Suprafață desfășurată: 320 mp
Nr. bucătării: 1
Nr. băi: 4
Nr. balcoane / Terase / Logii: 1
Nr. terase: 1
Suprafață terase: 10 mp
Front stradal: 20.0 m
Învelitoare acoperiș: Țiglă
An construcție: 2010 (Finalizată)
Structură rezistență: Beton
Regim înălțime: P+1E

Utilități

Destinație
Rezidențial
Pereți
Faianță Vopsea lavabilă
Podele
Gresie Parchet
Rulouri/Obloane
Aluminiu
Ușă intrare
Metal
Uși interior
Lemn
Izolații termice
Exterior
Ferestre cu geam termopan
PVC
Contorizare
Apometre Contor gaz
Bucătărie
Mobilată Utilată
Electrocasnice
Aragaz Frigider Hotă Mașină de spălat Mașină spălat vase
Diverse
Scară interioară Șemineu Sistem de alarmă Telecomandă poartă acces auto Telecomandă poartă garaj
Alte spații utile
Dressing
Facilități imobil
Acoperiș
Utilități
Curent Apă Canalizare CATV Gaze Telefon
Internet
Cablu
Amenajare străzi
Iluminat stradal Mijloace de transport în comun Asfaltate
Comision
standard

Vecinătăți:

Pipera lake

Disponibilitate proprietate:

Imediat

Puncte de interes

Mijloace transport
bus-station
Pipera Drumul Bisericii
Stații autobuz aprox. 411 m
bus-station
Capat C.F.R Constanta linii : 112,135,445
Stații autobuz aprox. 1924 m
bus-station
Jolie Ville Baneasa
Stații autobuz aprox. 1970 m
Școală
kindergarten
Gradinita Zece
Gradinițe aprox. 129 m
school
Scoala Nr.3 Voluntari
Școli aprox. 514 m
kindergarten
Echilibria 1
Gradinițe aprox. 516 m
school
Gradinita Happy Univers
Școli aprox. 1209 m
Recreere
restaurant
Amvrosia Restaurant Grecesc
Restaurant aprox. 291 m
supermarket
Mega Image Pipera
Supermarket aprox. 556 m
park
spatiu verde
Parcuri aprox. 1034 m
sports-ground
Teren sportiv
Terenuri sport aprox. 1297 m

Proprietăți recomandate

Detalii de contact

GOLDENKEY

Violeta Anghel Department Manager

4.81(7 review-uri)

GOLDENKEY
PRO

Abonează-te la newsletter să fii primul care primește cele mai noi recomandări de proprietăți și sfaturi de la experți.

CONTACT

Creează alertă

Salvează căutarea ca să primești pe email ultimele anunțuri publicate

Duplexuri cu 4+ camere de închiriat în zona Pipera, Sector 1