Casa tip Duplex, D+P+1E, 2 unitati locative, Petrom, Baciu

279.000 €

Baciu, Județul Cluj

Nr. cam.:
5
Sup. utilă:
120 mp
Sup. teren:
278 mp
Tip prop.:
Duplex
  • • Locație aproximativă

Descriere casă

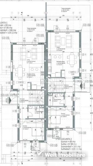
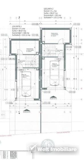
Welt Imobiliare va ofera spre achizitie, 2 unitati locative, intr-un duplex, situat in zona Petrom, Calea Baciului, intr-o zona linistita, retrasa, pe o stada privata, infundata, cu acces doar pentru riverani . Fiecare unitate locativa, este dispusa pe un regim de inaltime D+P+1E, avand cate o suprafata utila de 120 mp, suprafata construita de 222 m.p. si cate un teren aferent de 278 mp. - Demisolul in suprafata totala de 50 m.p. este compus din: garaj, camera tehnica si spatiu de depozitare; Garajul este dotat cu usa automata culisanta, cu telecomanda. - La parter avem : un living generos cu bucatarie si acces direct pe terasa, un birou cu balcon, o baie si hol; - La etaj sunt 3 dormitoare: dormitorul matrimonial cu baie si balcon si inca 2 dormitoare, cu 1 balcon, dressing, 1 baie si hol. Proprietarul a folosit doar materiale de calitate : tamplarie tripan, incalzire in pardoseala (sistem complet Purmo). In acest sens, exista fotografii si filmari, din toate fazele si etapele de construire a casei. Canalizarea este prin statie de epurare, cu pompa electrica automata, de recirculare si regenerare. Curentul este trifazic. Locuintele se vand la stadiul: - semifinisat la interior: cu instalatii electrice si sanitare pe pozitie, centrala termica, incalzire in pardoseala (sistem complet Purmo) si calorifere in bai, glet fin, tamplarie tripan; - gata la exterior: cu fatada si exteriorul cladirii, izolate, cu decorativa aplicata, garduri si amenajari exterioare la sol, finalizate. Termen de finalizare: 2 luni, vara 2024. Pentru o vizualizare nu ezitati sa ne contactati! Echipa Welt Imobiliare. ID : P 39912
Citește mai mult Citește mai puțin
Nemobilat Grădină Curte Calorifere Centrală proprie Încălzire prin pardoseală Beci 1 Parcare 1 Parcare / Garaj / Parcare subterană 1 Garaj

Detalii casă

ID anunț: X1KA111DM Copiat! 64269581 Copiat!
Actualizat în: 09 Martie 2026
Suprafață construită: 222 mp
Nr. bucătării: 1
Nr. băi: 3
Nr. balcoane / Terase / Logii: 3
Nr. terase: 1
Front stradal: 9 m
An construcție: 2023 (În construcție)
Structură rezistență: Cărămidă
Regim înălțime: D+P+1E

Utilități

Contorizare
Apometre Contor gaz
Diverse
Scară interioară Telecomandă poartă acces auto
Alte spații utile
Spațiu depozitare Dressing
Utilități
Curent Apă Gaze Fosa septică Curent trifazic
Ușă intrare
PVC
Izolații termice
Exterior
Ferestre cu geam termopan
PVC
Amenajare străzi
Pietruite Mijloace de transport în comun
Comision
standard

Certificat energetic:

Clasa energetică: B

Vecinătăți:

Lidl, Petrom

Disponibilitate proprietate:

2 luni, vara 2024

Puncte de interes

Mijloace transport
bus-station
Statia Fabrica de Paine 2, Linia 31
Stații autobuz aprox. 652 m
bus-station
Statia Fabrica de Paine, Linia 31
Stații autobuz aprox. 678 m
bus-station
Jupiter
Stații autobuz aprox. 711 m
bus-station
Cartier Baciu
Stații autobuz aprox. 711 m
Școală
kindergarten
Grăd.Neghinițăstr. 2
Gradinițe aprox. 743 m
kindergarten
Gradinita Neghinita
Gradinițe aprox. 1046 m
university
Institutul de cercetari in chimie Raluca Ripan
Universități aprox. 1222 m
school
Scoala Generala nr.15
Școli aprox. 1297 m
Recreere
restaurant
La Casa
Restaurant aprox. 436 m
park
Muzeul Etnografic Cluj (en)
Parcuri aprox. 835 m
supermarket
Lidl
Supermarket aprox. 927 m
sports-ground
Teren sportiv
Terenuri sport aprox. 1268 m

Detalii despre preț și costuri

Costuri cu achiziția

Fără credit
12.484 RON
Credit ipotecar
14.781 RON
Noua casă
1.562 RON+ taxe notariale

i

Costuri adiționale mai puțin știute la achiziție: taxe notariale, comisioane etc.

Proprietăți recomandate

Detalii de contact

WELT IMOBILIARE

Welt Imobiliare

4.52(21 review-uri)

WELT IMOBILIARE
PRO

Abonează-te la newsletter să fii primul care primește cele mai noi recomandări de proprietăți și sfaturi de la experți.

CONTACT

Creează alertă

Salvează căutarea ca să primești pe email ultimele anunțuri publicate

Duplexuri cu 4+ camere de vânzare în Baciu, Județul Cluj