11

Duplex 5 camere + dressing| 122 mp utili - 200 mp teren| Giroc

185.000 €

Giroc, Județul Timiș

Nr. cam.:
5
Sup. utilă:
122 mp
Sup. teren:
200 mp
Tip prop.:
Duplex
  • • Locație aproximativă

Descriere casă

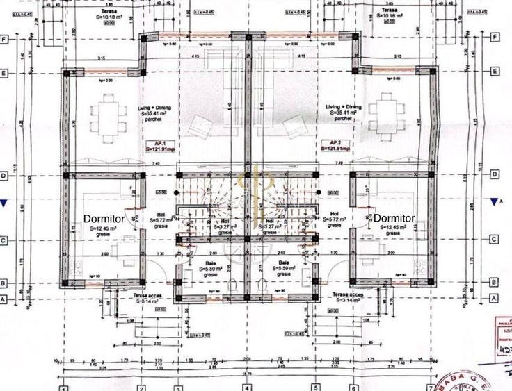
Vă oferim spre vânzare un duplex, amplasat într-o zonă liniștită din Giroc, aproape de strada Satu Bătrân. Duplexul este în construcție, oferindu-vă posibilitatea de a personaliza finisajele după propriul gust. Detalii: Suprafața utila - 122 mp Teren - 200 mp Terasa - 11 mp Camere - 5 Dormitoare - 4 Baie - 2 Caracteristici principale: • pereți dubli între locuințe • geamuri tripan pentru eficiență energetică sporită • centrală proprie cu încălzire prin pardoseală • placă de beton între etaje și pod • acces facil pe stradă asfaltată și toate utilitățile disponibile Compartimentare: Parter – hol acces, baie cu duș, dormitor, bucătărie cu zonă de dining, living open-space și ieșire pe terasa Etaj – hol de distribuție, dormitor matrimonial cu dressing, alte 2 dormitoare și o baie Imobilul poate fi achiziționat atât din resurse proprii, cât și prin credit ipotecar. Oferim consultanță financiară fără costuri adiționale. Pentru informații suplimentare sau programarea unei vizionări, vă invităm să ne contactați.
Citește mai mult Citește mai puțin
Grădină Curte Centrală proprie Încălzire prin pardoseală

Detalii casă

ID anunț: XEA61100G Copiat! 268966826 Copiat!
Actualizat în: 02 Martie 2026
Nr. bucătării: 1
Nr. băi: 2
Nr. balcoane / Terase / Logii: 1
Nr. terase: 1
Suprafață terase: 10 mp
Învelitoare acoperiș: Țiglă
An construcție: 2025 (În construcție)
Structură rezistență: Cărămidă
Regim înălțime: P+1E

Utilități

Pereți
Faianță Vopsea lavabilă
Podele
Gresie Parchet
Ușă intrare
Metal
Uși interior
Lemn
Izolații termice
Exterior
Ferestre cu geam termopan
PVC
Facilități imobil
Acoperiș
Utilități
Curent Apă Canalizare CATV Gaze Telefon
Internet
Cablu
Amenajare străzi
Iluminat stradal Asfaltate
Comision
standard

Disponibilitate proprietate:

Imediat

Puncte de interes

Mijloace transport
bus-station
Giroceana
Stații autobuz aprox. 393 m
bus-station
Giroceana
Stații autobuz aprox. 602 m
bus-station
Giroc
Stații autobuz aprox. 611 m
train-station
Halta Giroc hc
Stații tren aprox. 633 m
Școală
school
Scoala Gimnaziala Giroc
Școli aprox. 861 m
school
Scoala Generala si Gradinita Giroc (en)
Școli aprox. 871 m
school
Scoala Gimnaziala Iosif Ciorogariu
Școli aprox. 1299 m
university
CENTRU REGIONALDE PREGATIRE PROFESIONALA PENTRU MAGISTRATI, GIROC, tIMISOARA
Universități aprox. 1666 m
Recreere
supermarket
Profi City
Supermarket aprox. 232 m
park
Parc
Parcuri aprox. 328 m
restaurant
DAF Junior Pizza
Restaurant aprox. 715 m
sports-ground
Teren sportiv
Terenuri sport aprox. 1387 m

Detalii despre preț și costuri

Costuri cu achiziția

Fără credit
9.257 RON
Credit ipotecar
11.155 RON
Noua casă
1.083 RON+ taxe notariale

i

Costuri adiționale mai puțin știute la achiziție: taxe notariale, comisioane etc.

Proprietăți recomandate

Detalii de contact

Agentie Imobiliara

Roxana Cira Consultant Imobiliar

Agentie Imobiliara

Abonează-te la newsletter să fii primul care primește cele mai noi recomandări de proprietăți și sfaturi de la experți.

CONTACT

Creează alertă

Salvează căutarea ca să primești pe email ultimele anunțuri publicate

Duplexuri cu 4+ camere de vânzare în Giroc, Județul Timiș