Duplex in Urseni - excelent - zona foarte buna - spatii generoase

137.000 €

Moșnița Nouă, Județul Timiș

Nr. cam.:
4
Sup. utilă:
123 mp
Sup. teren:
256 mp
Tip prop.:
Duplex
  • • Locație aproximativă

Descriere casă

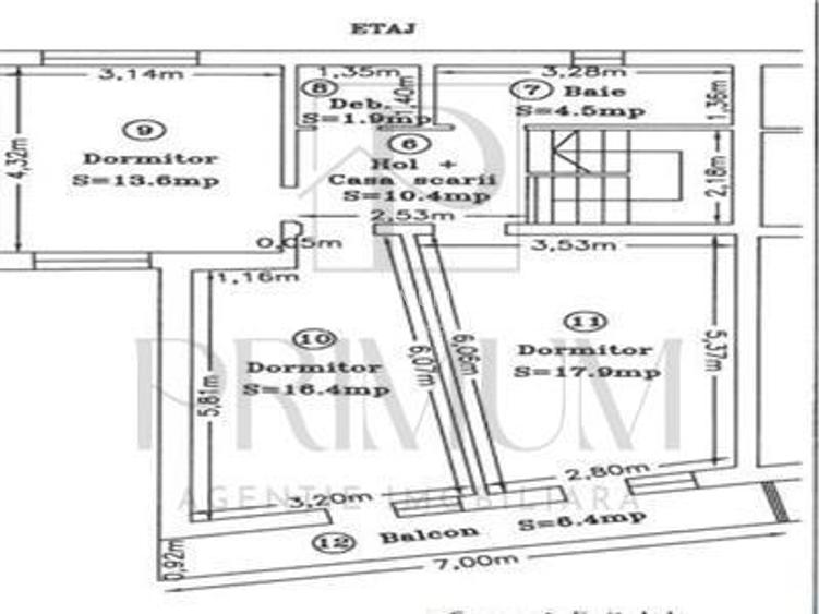
Agentia imobiliara PRIMUM are placerea de a va oferi spre vanzare un duplex foarte bine construit si organizat in Urseni !  Duplexul se prezinta intr-o stare excelenta si dispune de bucatarie inchisa si 3 dormitoare , doua bai si un living imens !  Mai multe detalii la telefon !   
Citește mai mult Citește mai puțin

Detalii casă

ID anunț: XCPS113J4 Copiat! 268763273 Copiat!
Actualizat în: 02 Februarie 2026
Suprafață construită: 150 mp
Suprafață desfășurată: 150 mp
Nr. bucătării: 1
Nr. băi: 2
Nr. balcoane / Terase / Logii: 1
Nr. terase: 1
Suprafață terase: 12 mp
Front stradal: 12 m
Învelitoare acoperiș: Țiglă
An construcție: 2021 (Finalizată)
Structură rezistență: Beton
Regim înălțime: P+M

Utilități

Destinație
Rezidențial
Pereți
Faianță
Izolații termice
Exterior
Utilități
Curent Apă Canalizare Fosa septică Gaze Telefon
Internet
Cablu Fibră optică Wireless
Amenajare străzi
Asfaltate Pietruite
Comision
standard%

Certificat energetic:

Clasa energetică: A

Alte detalii:

Agentia imobiliara PRIMUM are placerea de a va oferi spre vanzare un duplex foarte bine construit si organizat in Urseni ! 

Duplexul se prezinta intr-o stare excelenta si dispune de bucatarie inchisa si 3 dormitoare , doua bai si un living imens ! 

Mai multe detalii la telefon ! 

 

Puncte de interes

Mijloace transport
bus-station
Halta Urseni
Stații autobuz aprox. 488 m
train-station
Halta Urseni hc
Stații tren aprox. 496 m
Recreere
sports-ground
Stadion Urseni
Terenuri sport aprox. 467 m

Detalii despre preț și costuri

Costuri cu achiziția

Fără credit
7.604 RON
Credit ipotecar
9.298 RON
Noua casă
838 RON+ taxe notariale

i

Costuri adiționale mai puțin știute la achiziție: taxe notariale, comisioane etc.

Proprietăți recomandate

Detalii de contact

PRIMUM

Alex Opris Consultant Imobiliar

5.00(4 review-uri)

PRIMUM
PRO

Abonează-te la newsletter să fii primul care primește cele mai noi recomandări de proprietăți și sfaturi de la experți.

CONTACT

Creează alertă

Salvează căutarea ca să primești pe email ultimele anunțuri publicate

Duplexuri cu 4+ camere de vânzare în Moșnița Nouă, Județul Timiș