2

Vila cu 7 camere in complex cu piscina

746.750 € + TVA

Pipera, București

Nr. cam.:
7
Sup. utilă:
306,02 mp
Sup. teren:
253,15 mp
Tip prop.:
Duplex
  • • Locație aproximativă
  • • Vizionare prin apel video

Descriere casă

Acest complex rezidential din zona Pipera, ce va cuprinde 87 de vile, va fi dat in folosinta in 2 faze, prima faza cuprinzand un numar de 45 de vile. Cele 9 modele de vile sunt organizate in regim de inaltime P+2 si D+P+2. Beneficiaza de cele mai bune dotari si facilitati, precum si de finisaje de buna calitate. Piscina, sauna si locul de joaca pentru copii sunt amplasate in centrul complexului, cu acces facil pentru toti rezidentii. Fiecare cladire din complex are spatiu verde, alei pietonale catre lac si strazi cu sens unic pentru autoturisme. Structura de rezistenta este alcatuita dintr-un sistem dual format din ansamblu de pereți si cadre. Închiderile exterioare vor fi cu pereți sau stâlpi structurali din beton armat și zidărie din blocuri ceramice de 25cm. Vilele vor beneficia de: - incalzire in pardoseala prin intermediul unei pompe de caldura aer-apa la care va fi adaugat un boiler dedicat prepararii apei calde - ventiloconvectoare de tip duct necarcasat pentru montaj in plafonul fals - racorduri pregătite pentru montarea bucătariei (apă, gaz, electricitate, canalizare, conexiune trifazica pentru plita electrica) - bai complet echipate cu obiecte sanitare (lavoare, vase de WC, cazi) furnizate de KOLO GEBERIT sau furnizor similar - tamplăria exterioară se realizează din profile aluminiu Alumil/Schuco sau similar și geam tripan cu peliculă LowE spre interior - usile de intrare sunt metalice, Pinum sau echivalent, finisaj PVC cu aspect de lemn și ramă metalică și sistem de închidere în 5 puncte - ușile interioare sunt uși celulare, culoarea albă - parchet triplu stratificat de 12 mm grosime in camerele cu pardoseala - gresie antiderapantă și gresie ceramică - aparatajele montate (prize, doze, întrerupătoare) din gama Gewiss sau echivalent
Citește mai mult Citește mai puțin
Grădină Piscină Curte comună Aer condiționat Ventiloconvectoare Centrală proprie Încălzire prin pardoseală 2 Garaje

Detalii casă

ID anunț: X1UR110MM Copiat! 243337039 Copiat!
Actualizat în: 22 Decembrie 2025
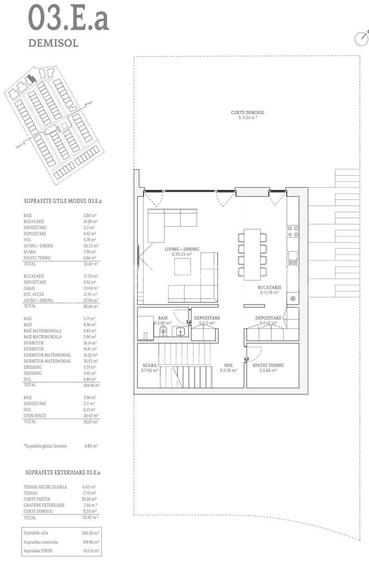
Suprafață construită: 150 mp
Suprafață desfășurată: 350 mp
Nr. bucătării: 1
Nr. băi: 7
Nr. terase: 1
Suprafață terase: 23 mp
Front stradal: 5.0 m
Învelitoare acoperiș: Tabla
An construcție: 2025 (În construcție)
Structură rezistență: Beton
Tip imobil: Casă/Vilă
Regim înălțime: D+P+2E

Utilități

Destinație
Rezidențial
Pereți
Faianță Vopsea lavabilă
Podele
Gresie Parchet
Ușă intrare
Metal
Uși interior
Celulare
Izolații termice
Exterior
Ferestre cu geam termopan
Aluminiu
Contorizare
Apometre Contor căldură Contor gaz
Diverse
Scară interioară Telecomandă poartă acces auto
Facilități imobil
Saună
Utilități
Curent Apă Canalizare CATV Gaze Telefon
Internet
Cablu
Servicii imobil
Pază Supraveghere video
Amenajare străzi
Iluminat stradal Mijloace de transport în comun Asfaltate
Comision
standard

Disponibilitate proprietate:

Imediat

Puncte de interes

Mijloace transport
bus-station
Capat C.F.R Constanta linii : 112,135,445
Stații autobuz aprox. 872 m
tram-station
Drumul Nisipoasa
Stații tramvai aprox. 945 m
airport
Aeroportul Internațional Băneasa (Aurel Vlaicu) - LRBS (BBU)
Aeroporturi aprox. 1206 m
metro-station
Pipera (M2)
Stații metrou aprox. 1569 m
Școală
kindergarten
Gradinita Zece
Gradinițe aprox. 1308 m
school
Grupul Școlar de Aeronautică "Henri Coandă".
Școli aprox. 1613 m
school
Parc avioane Grup Scolar de Aeronautica "H. Coanda"
Școli aprox. 1645 m
kindergarten
Echilibria 1
Gradinițe aprox. 1899 m
Recreere
restaurant
Q's Inn
Restaurant aprox. 932 m
park
spatiu verde
Parcuri aprox. 962 m
supermarket
Pipera Plaza
Supermarket aprox. 1245 m
sports-ground
Teren sportiv
Terenuri sport aprox. 1412 m

Detalii despre preț și costuri

Costuri cu achiziția

Fără credit
33.927 RON
Credit ipotecar
38.876 RON
Noua casă
4.746 RON+ taxe notariale

i

Costuri adiționale mai puțin știute la achiziție: taxe notariale, comisioane etc.

Proprietăți recomandate

Detalii de contact

GOLDENKEY

Violeta Anghel Department Manager

4.81(7 review-uri)

GOLDENKEY
PRO

Abonează-te la newsletter să fii primul care primește cele mai noi recomandări de proprietăți și sfaturi de la experți.

CONTACT

Creează alertă

Salvează căutarea ca să primești pe email ultimele anunțuri publicate

Duplexuri cu 4+ camere de vânzare în zona Pipera, Sector 1