VANZARE CASA 4 CAMERE | 16MP UTILI | 4 CAMERE | 4 BAI | STRAULESTI

330.000 €

Străulești, București

Nr. cam.:
4
Sup. utilă:
167 mp
Sup. teren:
200 mp
Tip prop.:
Duplex
  • • Locație exactă

Descriere casă

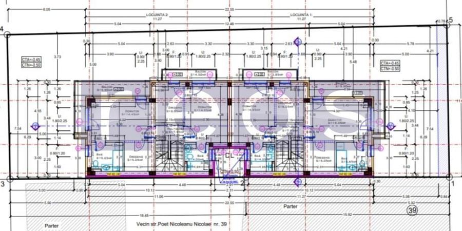
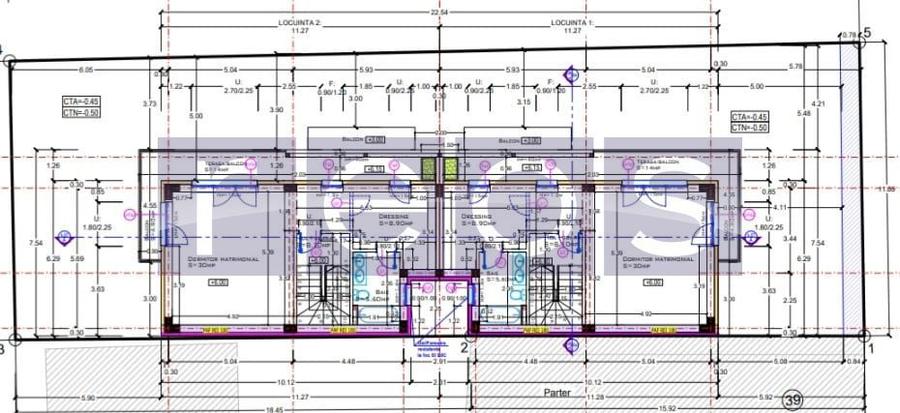
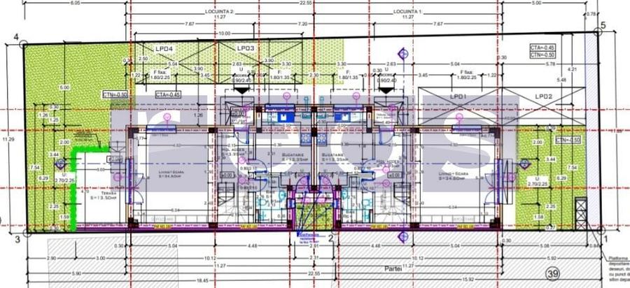
REOS GROUP va propune spre vanzare o vila individuala cu regim de inaltime Parter + 2 Etaje, un proiect modern gandit pentru confort real, intimitate si organizare eficienta a spatiului, adresat unei familii care cauta mai mult decat o simpla locuinta. Proprietatea este configurata inteligent, cu 3 dormitoare generoase, fiecare beneficiind de dressing propriu, oferind astfel un nivel superior de organizare si confort. Zona de zi este spatioasa si bine delimitata, iar cele 4 bai aduc un plus de functionalitate si independenta pentru fiecare nivel al casei. Regimul P+2 permite separarea clara intre zona sociala si zonele private, oferind intimitate si flexibilitate in amenajare. Imobilul se vinde la stadiul „la rosu”, oferind posibilitatea personalizarii integrale a finisajelor in functie de preferintele viitorului proprietar. Pentru cei care isi doresc o locuinta complet finalizata, exista optiunea predarii la cheie, cu finisaje premium si echipare completa, la pretul de 390.000 EUR, in functie de nivelul de dotare ales. Aceasta proprietate nu este doar o casa, ci un proiect cu potential ridicat, potrivit pentru cei care apreciaza spatiul, compartimentarea inteligenta si posibilitatea de a-si crea un camin exact dupa propriile standarde. Pentru detalii suplimentare va invitam sa ne contactati.
Citește mai mult Citește mai puțin
Centrală proprie Încălzire prin pardoseală 2 Parcări

Detalii casă

ID anunț: XDJ8110ED Copiat! 275001846 Copiat!
Actualizat în: 17 Februarie 2026
Nr. bucătării: 1
Nr. băi: 4
An construcție: 2025
Regim înălțime: P+M

Utilități

Ușă intrare
Metal
Utilități
Curent Apă Canalizare CATV Gaze Telefon
Acces internet
Cablu
Amenajare străzi
Iluminat stradal Mijloace de transport în comun Asfaltate
Comision
standard

Disponibilitate proprietate:

Imediat

Puncte de interes

Mijloace transport
bus-station
Statia Doi Cocosi linia 304
Stații autobuz aprox. 1082 m
metro-station
Străulești (M4)
Stații metrou aprox. 1450 m
bus-station
Straulesti
Stații autobuz aprox. 1542 m
bus-station
Statia Evobus
Stații autobuz aprox. 1653 m
Școală
school
Scoala Generala Nr. 13
Școli aprox. 506 m
school
Scoala 13
Școli aprox. 510 m
Recreere
supermarket
Mega Image
Supermarket aprox. 466 m
restaurant
Doi Cocosi
Restaurant aprox. 1126 m
sports-ground
Teren sportiv
Terenuri sport aprox. 1319 m
park
Strandul Straulesti
Parcuri aprox. 1322 m

Detalii despre preț și costuri

Costuri cu achiziția

Fără credit
14.233 RON
Credit ipotecar
16.747 RON
Noua casă
1.822 RON+ taxe notariale

i

Costuri adiționale mai puțin știute la achiziție: taxe notariale, comisioane etc.

Proprietăți similare

Duplex cu 6 camere în Străulești
319.900 € + TVA
București, Străulești
6 camere
151 mp
Duplex
Duplex cu 7 camere în Pipera
355.000 € + TVA
București, Pipera
7 camere
227 mp
285 mp teren
Duplex cu 4 camere în Pipera
300.000 €
București, Pipera
4 camere
131 mp
148 mp teren

Detalii de contact

REOS Group

Gabriela Simerea Associated Advisor

REOS Group
PRO

Abonează-te la newsletter să fii primul care primește cele mai noi recomandări de proprietăți și sfaturi de la experți.

CONTACT

Creează alertă

Salvează căutarea ca să primești pe email ultimele anunțuri publicate

Duplexuri cu 4+ camere de vânzare în zona Străulești, Sector 1