Km 5 Garsoniera Decomandata 41,5m² bloc 1994 Izolata Centrala Incadrata Vest

74.500 €

Km 5, Constanța

Nr. cam.:
1
Sup. utilă:
41,5 mp
Etaj:
4 / 8
An constr.:
1994 (Finalizată)
  • • Locație aproximativă

Descriere apartament

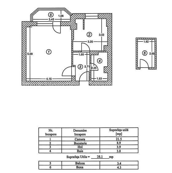
► Birou de Intermediere si Consultanta Imobiliara Va propunem spre Vanzare o Garsoniera Decomandata, avand o Suprafata Utila de 41,5m² cu Balcon, in zona Km 5 - sos. Mangaliei, situata la etajul 4, intr-un bloc Stradal de Apartamente de 8 Etaje, cu Lift. Garsoniera este Libera, foarte Luminoasa, Incadrata, izolata eXterior, pozitionata Vest, cu Centrala Termica pe Gaze, si boxa de 4m². Necesita Renovare Cadastru, Intabulare, Certificat Energetic, PAD C: 82628
Citește mai mult Citește mai puțin
Confort lux Decomandat 1 Balcon / Terasă / Logie Calorifere Centrală proprie Beci Zonă de litoral

Detalii apartament

ID anunț: X4DK000MJ Copiat! 274129097 Copiat!
Actualizat în: 02 Martie 2026
Suprafață utilă totală: 41.5 mp
Suprafață construită: 49 mp
Nr. bucătării: 1
Nr. băi: 1
Structură rezistență: BCA
Tip imobil: Bloc de apartamente
Regim înălțime: S+P+8E

Utilități

Destinație
Rezidențial De vacanță
Ușă intrare
Lemn Metal
Izolații termice
Exterior
Ferestre cu geam termopan
PVC
Contorizare
Contor gaz Apometre
Facilități imobil
Lift Interfon
Utilități
CATV Gaze Curent Canalizare Apă
Internet
Cablu Fibră optică
Amenajare străzi
Asfaltate Iluminat stradal Mijloace de transport în comun

Vicii:

Inexistente

Disponibilitate proprietate:

Imediata

Puncte de interes

Mijloace transport
bus-station
Statia Pandurului; Linia 5
Stații autobuz aprox. 113 m
bus-station
Pandurului [5-40]
Stații autobuz aprox. 118 m
bus-station
Statia Km ; Linia 5, 5R
Stații autobuz aprox. 266 m
bus-station
KM 4 [5-40
Stații autobuz aprox. 266 m
Școală
school
Școala cu Clasele I-VIII Nr.16
Școli aprox. 43 m
kindergarten
Gradinita nr. 38 Constanta
Gradinițe aprox. 83 m
school
Scoala Generala nr.15 ''Grigore Antipa''
Școli aprox. 381 m
kindergarten
Gradinita nr. 19 Constanta
Gradinițe aprox. 695 m
Recreere
park
Parc Km 4-5
Parcuri aprox. 389 m
supermarket
Expomarket
Supermarket aprox. 476 m
sports-ground
Teren sportiv
Terenuri sport aprox. 683 m
restaurant
Complex Rovas
Restaurant aprox. 1395 m

Detalii despre preț și costuri

Prețul pe piață

Preț cerut: 74.500 €

Preț min. zonă 25.000 €
Preț max. zonă 89.000 €

66% dintre proprietățile similare ca zonă și nr. camere au prețul cerut mai mare. mai multe...

Bine de știut: prețul unei proprietăți este influențat și de alte caracteristici, cum ar fi: vechime, localizare, vecinătăți, suprafață, compartimentare, amenajări, dotări, etc. mai puțin...

Costuri cu achiziția

Fără credit
4.912 RON
Credit ipotecar
6.255 RON
Noua casă
520 RON+ taxe notariale

i

Costuri adiționale mai puțin știute la achiziție: taxe notariale, comisioane etc.

Proprietăți recomandate

Detalii de contact

Birou de Intermediere si Consultanta Imobiliara

Ioana N Broker Imobiliar

4.64(5 review-uri)

Birou de Intermediere si Consultanta Imobiliara

Abonează-te la newsletter să fii primul care primește cele mai noi recomandări de proprietăți și sfaturi de la experți.

CONTACT

Creează alertă

Salvează căutarea ca să primești pe email ultimele anunțuri publicate

Garsoniere de vânzare în zona Km 5, Constanța