Garsoniera Spatioasa / Hils Titanium Faza 2 / 5 minute Metrou / Comision 0%

74.500 € + TVA

Theodor Pallady, București

Nr. cam.:
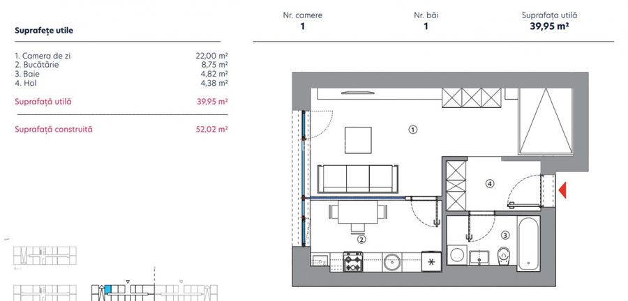
1
Sup. utilă:
39,95 mp
Etaj:
Parter / 12
An constr.:
2026 (În construcție)
  • • Comision 0%
  • • Locație exactă

Descriere apartament

HILS Titanium – un nou standard de calitate in estul Capitalei HILS Titanium te aduce mai aproape de confortul pe care ti-l doresti, intr-un apartament modern, bine compartimentat si perfect amplasat in Sectorul 3. Situat in zona Theodor Pallady – Nicolae Teclu, complexul ofera un mix echilibrat intre confort, siguranta si accesibilitate, intr-o zona cu infrastructura completa si acces rapid catre metrou, A2 si Centura Capitalei. Localizare excelenta La doar 500m de statia de metrou Nicolae Teclu, Hils Titanium se afla in imediata apropiere a unor puncte de interes majore: IKEA Pallady, Metro, Auchan, Dedeman, Jumbo, Decathlon, scoli, gradinite si numeroase optiuni comerciale. Despre proiect Faza 2 a complexului Hils Titanium se afla in dezvoltare, cu termen de finalizare estimat la sfarsitul anului 2026. Proiectul include cladiri moderne cu design contemporan, finisaje premium, spatii verzi si multiple facilitati pentru locatari: -Lifturi moderne si spatii comune elegante; -Zone verzi si locuri de joaca; -Parcare subterana si supraterana; -Acces controlat si sistem de supraveghere video; -Paza 24/7; -Finisaje de calitate superioara si compartimentari eficiente. Disponibilitati garsoniere: 1A - 37,98 m2 1C - 38,60 m2 + 5,89 m2 balcon 1D parter - 39,95 m2 + 23,41 m2 gradina 1D parter - 39,95 m2 Locuri de parcare Subteran Demisol: 14.000 € + TVA Subteran Nivel -1: 13.000 € + TVA Subteran Nivel -2: 12.000 € + TVA Termen de finalizare: Sfarsitul anului 2026 Indiferent daca iti cauti o garsoniera pentru investitie, un apartament cu 2 sau 3 camere pentru locuire, sau un duplex spectaculos cu terasa panoramica, iti pot oferi toate variantele disponibile in Hils Titanium Faza 1 sau 2, cu cele mai bune preturi si oferte de sezon. Contacteaza-ma pentru detalii, planuri, vizionari si oferte actualizate! Comision 0%
Citește mai mult Citește mai puțin
Confort 1 Decomandat Nemobilat Curte comună Aer condiționat Calorifere Centrală proprie

Detalii apartament

ID anunț: XFN4100UH Copiat! 275181947 Copiat!
Actualizat în: 03 Martie 2026
Nr. bucătării: 1
Nr. băi: 1
Structură rezistență: Beton
Tip imobil: Bloc de apartamente
Regim înălțime: P+12E

Utilități

Destinație
Rezidențial
Pereți
Vopsea lavabilă Faianță
Podele
Parchet Gresie
Ușă intrare
Metal
Uși interior
Celulare
Izolații termice
Exterior Bloc izolat termic
Utilități
Curent Apă Canalizare Gaze CATV Telefon
Facilități imobil
Interfon Videointerfon Lift Spații agrement

Certificat energetic:

Clasa energetică: A

Disponibilitate proprietate:

imediat

Puncte de interes

Mijloace transport
bus-station
statie tramvai STIROM :23- 27 - 40
Stații autobuz aprox. 87 m
tram-station
STIROM
Stații tramvai aprox. 93 m
bus-station
Statia Policolor, Linia N111, 23, 27, 40
Stații autobuz aprox. 200 m
metro-station
Metrorex.Stația Nicolae Teclu (M3)(2008)
Stații metrou aprox. 433 m
Școală
kindergarten
Gradinita Nr. 160
Gradinițe aprox. 755 m
kindergarten
Gradinita Nr. 160 - "soarelui"
Gradinițe aprox. 760 m
school
Scoala Nr. 149
Școli aprox. 765 m
school
Colegiul tehnic de chimie "Costin Nenitescu"
Școli aprox. 1062 m
Recreere
supermarket
Penny
Supermarket aprox. 635 m
sports-ground
Teren de fotbal
Terenuri sport aprox. 647 m
park
Parc
Parcuri aprox. 841 m
hypermarket
Decathlon
Hipermarket aprox. 845 m

Detalii despre preț și costuri

Prețul pe piață

Preț cerut: 74.500 €

Preț min. zonă 33.500 €
Preț max. zonă 92.888 €

54% dintre proprietățile similare ca zonă și nr. camere au prețul cerut mai mare. mai multe...

Bine de știut: prețul unei proprietăți este influențat și de alte caracteristici, cum ar fi: vechime, localizare, vecinătăți, suprafață, compartimentare, amenajări, dotări, etc. mai puțin...

Costuri cu achiziția

Fără credit
5.648 RON
Credit ipotecar
7.115 RON
Noua casă
600 RON+ taxe notariale

i

Costuri adiționale mai puțin știute la achiziție: taxe notariale, comisioane etc.

Proprietăți similare

Garsonieră decomandată în Theodor Pallady
74.000 € + TVA
București, Theodor Pallady
1 camere
40,54 mp
Etaj 4
Garsonieră decomandată în Theodor Pallady
78.408 €
București, Theodor Pallady
1 camere
43,42 mp
Etaj 1
Garsonieră decomandată în Theodor Pallady
77.000 € + TVA
București, Theodor Pallady
1 camere
39,4 mp
Parter

Detalii de contact

MP ESTATE

MP Estate

4.93(5 review-uri)

MP ESTATE

Abonează-te la newsletter să fii primul care primește cele mai noi recomandări de proprietăți și sfaturi de la experți.

CONTACT

Creează alertă

Salvează căutarea ca să primești pe email ultimele anunțuri publicate

Garsoniere de vânzare în zona Theodor Pallady, Sector 3