Garsonieră boemă | Mântuleasa – Sf. Ștefan | Balcon, centrală, etaj 4

79.000 €

P-ța Sfântul Ștefan, București

Nr. cam.:
1
Sup. utilă:
36 mp
Etaj:
4 / 6
An constr.:
1947 (Finalizată)
  • • Locație aproximativă

Descriere apartament

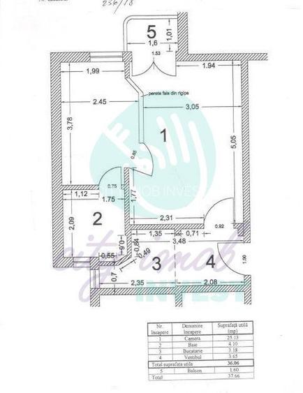
CityImob Invest vă propune spre vânzare o garsonieră luminoasă și primitoare, situată într-una dintre cele mai plăcute zone centrale ale Bucureștiului, între Mântuleasa și Pache Protopopescu, în apropiere de Piața Sfântul Ștefan. Zona este cunoscută pentru străzile liniștite, clădirile cu regim mic de înălțime și atmosfera de comunitate, oferind în același timp acces rapid către restaurante, cafenele, magazine și mijloace de transport în comun. Garsoniera are o suprafață de aproximativ 38 mp și este decomandată, oferind o compartimentare practică și confortabilă. Este situată la etajul 4 din 6 al unui imobil construit în 1947 și beneficiază de orientare către vest, ceea ce asigură lumină naturală plăcută în a doua parte a zilei. Locuința dispune de balcon cu vedere frumoasă, un spațiu perfect pentru cafeaua de dimineață sau momentele de relaxare. Camera este suficient de generoasă pentru a permite amenajarea unui mic separeu între zona de dormit și cea de zi, creând astfel un spațiu mai bine organizat. Baia este dotată cu cadă și are aerisire naturală. Apartamentul beneficiază de centrală termică proprie și jaluzele electrice, iar scara blocului este mare și bine întreținută, cu lift nou. Deși imobilul este încadrat în categoria U3, apartamentul este asigurat integral în caz de cutremur și poate fi achiziționat prin credit ipotecar. Datorită poziționării centrale și atmosferei speciale a zonei, proprietatea este potrivită atât pentru locuință personală, cât și pentru investiție, inclusiv pentru închiriere în regim Airbnb. Doriți să o descoperiți? Vă invităm la o vizionare! Pentru detalii suplimentare sau pentru a programa o vizionare, nu ezitați să ne contactați. Oferim consultanță GRATUITĂ pentru achiziții prin credit ipotecar! Vizionarea se face doar în baza semnării unui acord de vizionare conform art. 2.096–2.102 din Codul Civil.
Citește mai mult Citește mai puțin
Confort 1 Decomandat Parțial mobilat 1 Balcon / Terasă / Logie Aer condiționat Calorifere Centrală imobil Necesită renovare

Detalii apartament

ID anunț: XC3T106V5 Copiat! 275264676 Copiat!
Actualizat în: 12 Martie 2026
Nr. bucătării: 1
Nr. băi: 1
Structură rezistență: Beton
Tip imobil: Bloc de apartamente
Regim înălțime: P+6E

Utilități

Pereți
Faianță Vopsea lavabilă
Podele
Gresie Parchet
Ușă intrare
Metal
Uși interior
Lemn
Ferestre cu geam termopan
PVC
Contorizare
Apometre Contor gaz
Facilități imobil
Acoperiș Lift
Utilități
Curent Apă Canalizare CATV Gaze Telefon
Internet
Cablu
Amenajare străzi
Iluminat stradal Mijloace de transport în comun Asfaltate
Comision
standard

Disponibilitate proprietate:

Imediat

Puncte de interes

Mijloace transport
tram-station
Statia Hala Traian; Liniile: 14, 40, 55, 56
Stații tramvai aprox. 218 m
bus-station
Tepes Voda
Stații autobuz aprox. 225 m
trolleybus-station
Statia Foisorul de Foc linii : 79,86
Stații troleibuz aprox. 630 m
metro-station
Statia Soseaua Mihai Bravu, linia 14
Stații metrou aprox. 1188 m
Școală
school
Asociatia Euritmia
Școli aprox. 23 m
school
Scoala 85 Vasile Bunescu
Școli aprox. 85 m
kindergarten
Gradinita Waldorf
Gradinițe aprox. 263 m
university
Universitatea Hyperion (en)
Universități aprox. 343 m
Recreere
supermarket
Mega Image - Hala Traian
Supermarket aprox. 232 m
park
Parc
Parcuri aprox. 266 m
public-square
Piata Latina
Piețe publice aprox. 717 m
mall
Bucharest, Calea Vitan nr. 8, Bl V51, near VITAN Mall
Mall aprox. 1440 m

Detalii despre preț și costuri

Prețul pe piață

Preț cerut: 79.000 €

Preț min. zonă 33.000 €
Preț max. zonă 112.000 €

54% dintre proprietățile similare ca zonă și nr. camere au prețul cerut mai mic. mai multe...

Bine de știut: prețul unei proprietăți este influențat și de alte caracteristici, cum ar fi: vechime, localizare, vecinătăți, suprafață, compartimentare, amenajări, dotări, etc. mai puțin...

Costuri cu achiziția

Fără credit
5.121 RON
Credit ipotecar
6.499 RON
Noua casă
542 RON+ taxe notariale

i

Costuri adiționale mai puțin știute la achiziție: taxe notariale, comisioane etc.

Proprietăți similare

Garsonieră semidecomandată, mobilată în P-ța Universității
85.000 €
București, P-ța Universității
1 camere
26 mp
Etaj 4 / 7
Garsonieră, mobilată în Universitate
72.000 €
București, Universitate
1 camere
20 mp
Parter / 2
Garsonieră decomandată, mobilată în Calea Victoriei
80.000 €
București, Calea Victoriei
1 camere
19,61 mp
Etaj 9 / 9

Detalii de contact

CITY IMOB INVEST

Andreea Manea Associated Sales Coordinator

4.55(11 review-uri)

CITY IMOB INVEST
PRO

Abonează-te la newsletter să fii primul care primește cele mai noi recomandări de proprietăți și sfaturi de la experți.

CONTACT

Creează alertă

Salvează căutarea ca să primești pe email ultimele anunțuri publicate

Garsoniere de vânzare în zona P-ța Sfântul Ștefan, Ultracentral