Vad Comercial Ridicat

3.125 € + TVA / lună
25 € + TVA / mp / lună

Astra, Brașov

Sup. utilă / mp. utili:
125 mp
Tip prop.:
Bloc de apartamente
Niv.:
7
An constr.:
2022 (Există)
  • • Exclusivitate
  • • Locație exactă

Descriere spațiu comercial

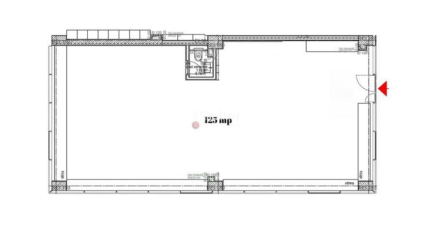
Imobilul accesat este situat in zona ROMAN, in imediata apropiere a Urban Plaza. LAYOUT: Acesta este de tip open space. - acces din strada; - grup sanitar; SUPRAFATA COMERCIALA VITRATA: - 16 ml; DOTARI: - Centrala termica; - Tamplarie aluminiu; - Grup sanitar; AVANTAJE: - Suprafata generoasa; - Zona cu vad comercial; - Suprafata vitrata ampla. DESTINAȚIE COMERCIALA: - magazin vestimentar; - show room; - sediu firmă; - cabinet stomatologic; - centru infrumusetare. FACILITATI SI SERVICII: - Transport public, la 5m; - Zona Relaxare; - Receptie. IMPREJURIMI: - Spatiul este situat intr-o zona comerciala cu vad comercial, cu acces pietonal si auto intens. DEZVOLTARE ZONA: - Zona rezidentiala, - Zona mixta - retail | rezidential, NOTA: Posibilitate de extindere a spatiului cu inca 125 mp (pret 20euro/ mp) Perioada Minima Inchiriere Acceptata: 12 luni; NOTA: Informatiile prezentate reflecta situatia reala a proprietatii, fara a constitui o oferta contractuala. Aceste date au fost obtinute verbal, de la titularul de drept al imobilului. Structura acestei prezentari nu poate fi reprodusa, fara acordul scris al The Seller and Partners.
Citește mai mult Citește mai puțin

Detalii spațiu comercial

ID anunț: X3I014J32 Copiat! 257698627 Copiat!
Actualizat în: 27 Ianuarie 2026
Suprafață utilă: 125 mp
Regim înălțime: 2S+P+7E
Stadiu construcție: Există
Vitrină: Da

Utilități

Utilități
Curent Apă Canalizare Gaze
Comision
standard

Disponibilitate proprietate:

Imediat

Subspații disponibile

Chirie / u.m. / lună:
25 EUR/mp (total: 3125 EUR/lună) + TVA, Comision: standard
Înălțime spațiu (m):
3
Suprafață disponibilă:
125
Disponibilitate spațiu:
imediat
Etaj:
Parter / 7
Vitrină:
Da

Puncte de interes

Mijloace transport
bus-station
Statia "Poaianelor", linia 33,5barat,7
Stații autobuz aprox. 82 m
bus-station
Poienelor
Stații autobuz aprox. 82 m
bus-station
Statia "Roman SA", linia 5,5barat,7,17barat,33
Stații autobuz aprox. 196 m
bus-station
Terminalul ROMAN S.A.
Stații autobuz aprox. 210 m
Școală
kindergarten
Gradinita cu program normal nr. 19A (fosta nr. 41)
Gradinițe aprox. 370 m
school
Scoala Generala 28
Școli aprox. 442 m
kindergarten
Gradinita cu program saptamanal nr. 18 (fosta nr. 58)
Gradinițe aprox. 572 m
university
Universitatea "George Baritiu"
Universități aprox. 1487 m
Recreere
restaurant
Cantina "Roman" (en)
Restaurant aprox. 169 m
sports-ground
Teren Metrom
Terenuri sport aprox. 346 m
park
Parc
Parcuri aprox. 370 m
supermarket
Rapid Barbu Lautaru
Supermarket aprox. 546 m

Proprietăți recomandate

Detalii de contact

The Seller & Partners

Ciprian Coman Senior Advisor

The Seller & Partners
PRO

Abonează-te la newsletter să fii primul care primește cele mai noi recomandări de proprietăți și sfaturi de la experți.

CONTACT

Creează alertă

Salvează căutarea ca să primești pe email ultimele anunțuri publicate

Spații comerciale cu o cameră de închiriat în zona Astra, Brașov