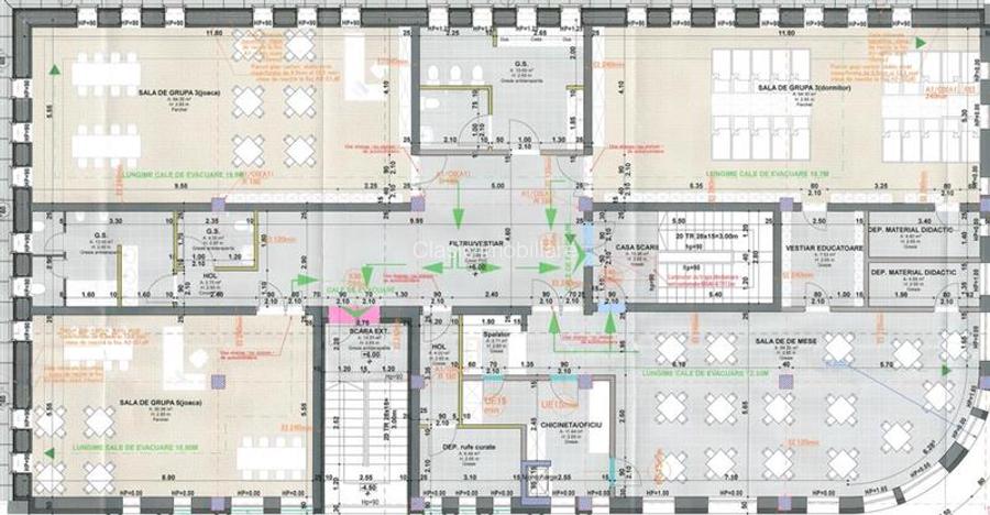
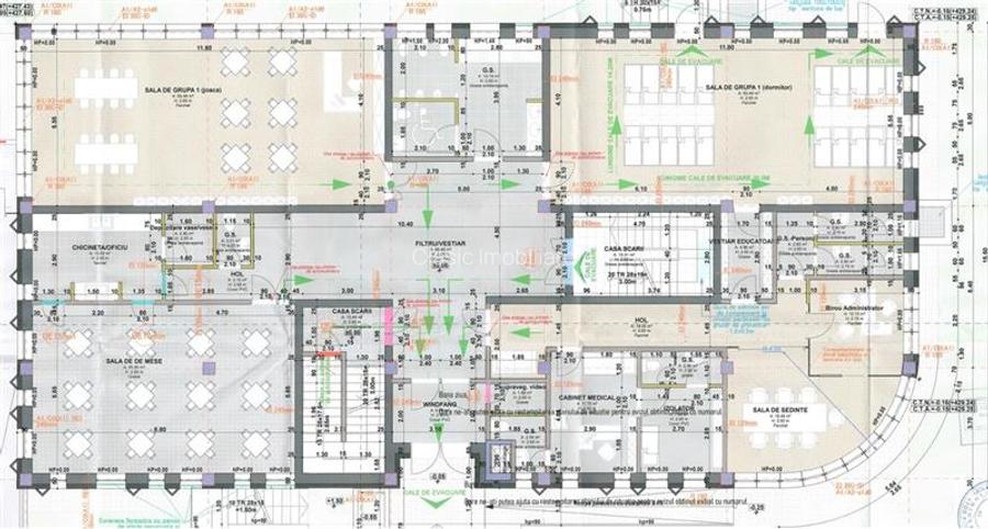
CLASIC Imobiliare va propune spre inchiriere o cladire noua cu suprafata utila de 1600 mp, autorizata pentru gradinita in cartierul Dambul Rotund si este desfasurata astfel: n n n nDEMISOL- suprafata de 400 mp utili, aproximativ 14 locuri de parcare, camera tehnica n n n nPARTER- patru incaperi generoase, cabinet medical, chicineta, vestiar, patru grupuri sanitare n n n nETAJ 1- patru incaperi generoase, chicineta, vestiar, trei grupuri sanitare n n n nETAJ 2- patru incaperi generoase, chicineta, vestiar, patru grupuri sanitare n n n nCladirea se preda finisata complet, cu incalzire in pardoseala, tarchet, lavabil, corpuri de iluminat, centrala termica proprie, geamuri termopan 3 sticle. Are curte libera de aproximativ 500 mp cu spatiu de joaca pentru copii si acces separat exterior pentru fiecare nivel in parte. n n n nIn cazul in care sunteti interesat de o vizionare sau alte detalii suplimentare nu ezitati sa ne contactati. ID intern: CC38112619 n n n nPret 19.000 euro+TVA n n
Sediul central - Timișoara
Bulevardul Victor Babeș nr. 2, 300230, Timișoara, România
Tel: +40.374.40.44.98 / Fax: +40.256.401.179
Email: suport@imobiliare.ro
Luni - Vineri 08:00 - 20:00
Punct de lucru - București: Iride Business Park, Bld. Dimitrie
Pompeiu 9-9A, Clădirea B2B,
020335, Sector 2, București, România
CONTACT
Sediul central - Timișoara
Bulevardul Victor Babeș nr. 2, 300230, Timișoara, România
Tel: +40.374.40.44.98 / Fax: +40.256.401.179
Email: suport@imobiliare.ro
Luni - Vineri 08:00 - 20:00
Punct de lucru - București: Iride Business Park, Bld. Dimitrie
Pompeiu 9-9A, Clădirea B2B,
020335, Sector 2, București, România
Sună acum și cere detalii sau programează o vizionare.
Cere detalii prin email
*
*
*
*
Stații autobuz
Stații tren
Stații tramvai
Gradinițe
Școli
Supermarket
Parcări
Terenuri sport
Parcuri
Piețe publice
Farmacie
Restaurant
Bar
Cafenea
Bancă
Maramuresului
aprox.
1108 m
Trandafirilor
aprox.
1122 m
Senina Nord
aprox.
1125 m
Fagaras
aprox.
1133 m
Statia Trandafirilor, Linia 31
aprox.
1133 m
Senina Sud
aprox.
1142 m
Statia Fagaras, Linia 31
aprox.
1143 m
Statia Senina, Linia 39
aprox.
1144 m
Autogara
aprox.
1193 m
Statia Autogara 2, Linia 31, 39
aprox.
1207 m
Autogara
aprox.
1301 m
Dragos Voda Nord
aprox.
1305 m
Dragos Voda Sud
aprox.
1317 m
Giordano Bruno
aprox.
1328 m
Statia Autogara 1, Linia 31, 39
aprox.
1341 m
Gara Cluj-Napoca
aprox.
1795 m
Gara Noua / "Gara de scurt parcurs"
aprox.
1863 m
Statia P-ta Garii 2 TRV, Linia 100, 102, 31
aprox.
1822 m
Piata Garii
aprox.
1823 m
Piata Garii
aprox.
1861 m
Grăd.Neghinițăstr. 1
aprox.
812 m
Grăd.Neghiniță
aprox.
1142 m
Gradinita Neghinita
aprox.
1818 m
Grăd.Bambi str.5
aprox.
1990 m
Colegiul Național George Barițiu
aprox.
895 m
Scoala generala nr. 7 / Emil Isac
aprox.
916 m
Scoala Generala si Liceul Waldorf
aprox.
1095 m
Școala de Agenți de Poliție "Septimiu Mureșan" Cluj Napoca
aprox.
1244 m
Grup Școlar Industrial Tehnofrig
aprox.
1787 m
Lidl
aprox.
1922 m
Oncos
aprox.
1959 m
Parcare
aprox.
1333 m
Parcare pentru clienti
aprox.
1592 m
Parcare
aprox.
1825 m
Parcare pentru clienti cu plata
aprox.
1880 m
Parcare
aprox.
1942 m
Parcare
aprox.
1949 m
Teren sportiv
aprox.
878 m
Teren sportiv
aprox.
880 m
Teren sportiv
aprox.
916 m
Teren sportiv
aprox.
1192 m
Teren sportiv
aprox.
1245 m
Fabrica de Sport
aprox.
1748 m
CFR 1907 Cluj
aprox.
1934 m
Parcul CFR
aprox.
1608 m
Parc
aprox.
1618 m
Parc
aprox.
1871 m
Piata Garii-RailwayStation Square (en)
aprox.
1820 m
Farmacia Catena
aprox.
1810 m
Farmacia Ducfarm
aprox.
1898 m
Farmacie Veterinara
aprox.
1932 m
Farmacia Richter
aprox.
1935 m
Restaurant
aprox.
1214 m
suson farm (en)
aprox.
1682 m
Restaurant Autoservire
aprox.
1804 m
Mama Manu
aprox.
1810 m
Simigerie
aprox.
1858 m
Pralina Fresh Fast-food
aprox.
1875 m
Autoservire Horea 89
aprox.
1892 m
Pizzeria Ciao
aprox.
1913 m
Ilinca
aprox.
1978 m
Bar
aprox.
1799 m
Cafe Bar Horea 2
aprox.
1934 m
Vegas caffe
aprox.
1961 m
Banca Transilvania
aprox.
1161 m
Banca Transilvania
aprox.
1175 m
BRD
aprox.
1325 m
BRD
aprox.
1325 m
BRD
aprox.
1814 m
Banca Transilvania
aprox.
1908 m
CEC Bank
aprox.
1918 m
BCR
aprox.
1944 m
Raiffeisen Bank
aprox.
1980 m
Printre principalele artere care străbat această zonă a Clujului se numără, în partea de sud, strada Septimiu Mureșan (aceasta merge, pe bună parte din lungimea sa, paralel cu râul Nadăș); în centrul cartierului se află Strada Dâmbul Rotund "“ de unde îi vine, de fapt, și numele; în nord, Strada Gheorghe Sion și Strada Viile Dâmbul Rotund marchează, practic, limita nordică a cartierului. Comparativ cu alte zone ale Clujului, Dâmbul Rotund este, pe alocuri, destul de deficitar în ceea ce privește infrastructura rutieră. Deși este deservit, ca și alte zone clujene, de o serie de mijloace de transport în comun, zona de nord a cartierului ar necesita extinderea liniilor parcurse de acestea. Dacă vrei să cumperi o proprietate aici, interesează-te, așadar, ce distanță ai de parcurs până la cele mai apropiate stații.
Dacă ești părinte "“ sau deocamdată doar îți dorești să devii "“, cu siguranță că, atunci când vine vorba de alegerea unei locuințe, un aspect important la care te gândești este reprezentat de oportunitățile de educație disponibile într-o zonă sau alta. În această privință, poți să stai liniștit: în Dâmbul Rotund se găsesc, ca și în celelalte subdiviziuni ale orașului de pe Someș, mai multe unități de învățământ. O școală cu tradiție din cartier este Școala Gimnazială "Emil Isac", situată chiar în apropiere de Strada Dâmbul Rotund, din zona centrală. În ceea ce privește oportunitățile de continuare a studiilor după liceu, de menționat este Școala de Agenți de Poliție "Septimiu Mureșan" "“ localizată în zona de sud a cartierului, dar dincolo de cursul râului Nadăș.
Ca și în Gruia, în Dâmbul Rotund nu există, momentan, un mall și nici un hipermarket (lucru cât se poate de firesc, de altfel, ținând cont de faptul că este vorba de un cartier mărginaș și cu o densitate a populației relativ redusă). Locuitorii acestei zone nu sunt, însă, lipsiți de alternative când vine vorba de cumpărături "“ astfel, pentru nevoile de zi cu zi există o serie de magazine de dimensiuni mai reduse, dintre care unele afiliate unor rețele internaționale. Chiar dacă nu strict între granițele cartierului, opțiuni există și pentru aceia care sunt pasionați de shopping. Fără prea mare efort, aceștia pot ajunge rapid în zona Centrală a orașului, unde pot vizita numeroasele magazine existente în materie de fashion (și nu numai).
Dacă ai "“ sau intenționezi să-ți achiziționezi "“ o mașină, parcarea nu ar trebui să reprezinte, în mod normal, o problemă, dată fiind densitatea redusă a populației din acest cartier. Dacă dorești, totuși, să închiriezi un spațiu al tău de la autoritățile locale, te poți interesa la sediul central al Primăriei Clujului (amplasat pe Strada Moților, nr. 3).
Spre deosebire de locuitorii altor zone ale Clujului, cei din Dâmbul Rotund nu au la dispoziție un parc în toată puterea cuvântului, cartierul fiind, în general, deficitar și la capitolul locuri de joacă pentru copii. Totuși, având în vedere multitudinea zonelor verzi, poți spera să găsești câteva trasee bune de plimbare. Dacă ești pasionat de sport, iar mersul pe jos și joggingul nu sunt suficiente pentru tine, în Dâmbul Rotund găsești o oportunitate importantă, cunoscută localnicilor sub numele "Fabrica de Sport". Amplasat în sudul cartierului, în fosta zonă industrială, acesta este considerat a fi unul dintre cele mai moderne complexuri sportive din oraș, fiind deschis atât amatorilor de fotbal, cât și celor de fitness, aerobic, kickboxing etc.
Dacă te gândești să te muți în Dâmbul Rotund, poate că vei fi dezamăgit să afli că aici nu există niciun spital de stat. Nu e cazul, însă, să te descurajezi: având în vedere proximitatea față de Centru, pentru serviciile medicale de urgență poți ajunge rapid la multitudinea de spitale care se găsesc în "inima" orașului: Spitalul Clinic Județean de Urgență Cluj-Napoca, Spitalul Clinic Municipal Cluj-Napoca, Spitalul Universitar C.F. Cluj-Napoca etc. Nu sunt de neglijat, desigur, nici cele câteva cabinete medicale particulare ce pot fi găsite în cartier "“ pe acest segment vei găsi atât câteva opțiuni în materie de medicină de familie, cât și în ceea ce privește anumite servicii medicale de specialitate (stomatologie, spre exemplu).
În afară de câteva fast food-uri de cartier, locuitorii cartierului Dâmbul Rotund beneficiază, în apropierea casei, și de câteva oportunități demne de luat în seamă la capitolul restaurante. De menționat este restaurantul "Stejarul", amplasat pe Strada Corneliu Coposu, nr. 95, ce dispune de terasă și oferă și servicii de livrare la domiciliu, dar și restaurantul "Fabrica", de pe Strada Tudor Vladimirescu, nr. 22, unde pot fi organizate și evenimente. Pentru a beneficia de o gamă mai largă de opțiuni pentru ieșirile în oraș cu prietenii, locuitorii acestui cartier au la dispoziție, desigur, și zona Centrală.
Dacă ai nevoie să efectuezi o operațiune bancară, trebuie să știi că strict între granițele acestui cartier nu prea ai opțiuni la acest capitol. Cu toate acestea, imediat sub limita sudică a cartierului, la granița dintre Gruia și zona Centrală (reprezentată de Strada Horea), se găsesc trei sucursale bancare: una din rețeaua BCR, o Banca Transilvania, alături de un sediu Raiffeisen Bank. Consultă harta și află unde sunt localizate și alte bănci sau ATM-uri în cartierul Dâmbul Rotund:
Înainte să pleci...
Ești sigur că ai văzut și aceste proprietăți?
16.000 € / lună
Cluj-Napoca, Ultracentral
1.416 mp utili
Bloc de apartamente
2E
15.002 € / lună
Cluj-Napoca, Calea Turzii
1.267 mp utili
Bloc de apartamente
2011
16.200 € / lună
Cluj-Napoca, Exterior Est
Logistică
Creează alertă
Salvează căutarea ca să primești pe email ultimele anunțuri publicate
Spații comerciale cu 4+ camere de închiriat în zona Dâmbul Rotund, Cluj-Napoca
Cere detalii prin email
*
*
*
*
Detaliile tale de contact vor fi partajate cu Clasic Imobiliare