Spatiu 369mp, Rond Uricani, aproape de Metro

2.583 € + TVA / lună
7 € + TVA / mp / lună

Exterior Vest, Iași

Sup. utilă / mp. utili:
369 mp
Tip prop.:
Showroom
Niv.:
1
An constr.:
2023 (Există)
  • • Locație exactă

Descriere spațiu comercial

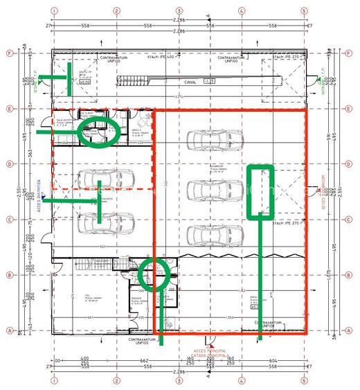
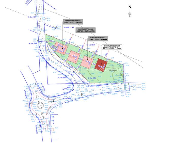
Spatiu 369mp, Rond Uricani, aproape de Metro Spatiu comercial de inchiriat in zona centurii Iasului pentru: - showroom (mobilier, scule, utilaje), - eventual unele depozitari (in special unele care pot avea si un birou de vanzari), - birou (de ex. un birou de proiectare cu showroom integrat), - poate sala sport (fitness), - un restaurant - ori o clinica veterinara “si nu numai”; Zona Uricani - Centura Iasi; 369mp sau eventual alte suprafete; 369mp total = 280mp p + 88,4mp et.; 6,5mH grinda streașina; 7,5mH coama; Suprafata totala teren: 9617mp, repartizata pentru mai multe cladiri; Parcare, acces TIR; Retea apa si apometru, fosa, eventual gaz si contor, 380V si contor - aprox. 75KW; caldura/ rece cu ventilatie/ inverter pe energie electrica; Grup sanitar, 1-2 cai de acces; pereti sandwich 100mm; 7-8 Euro+TVA/mp ar fi pretul orientativ al chiriei, 1,2 Eur+TVA/mp teren; De cand ai avea nevoie? Ce finisaje? Cand sa vizionam? Lucian Creanga - consultant imobiliar cu 400+ oferte spatii comerciale si 100.000mp+ tranzactionati - iti stau la dispozitie!
+4074**** Vezi tot numărul
(tel., sms, whatsapp),
lucia**** Trimite email
; Poate cea mai simpla si eficienta modalitate de a analiza astfel de spatii? Am pregatit pentru tine un portofoliu cu peste 400 de oferte, tocmai ca sa cunosti mai bine piata, sa-ti clarifici criteriile de selectie si sa-ti maximizezi termenii de inchiriere. Esti agent imobiliar? Haide sa facem echipa eficienta impreuna pe termen lung.
Citește mai mult Citește mai puțin
30 Parcări Căldură Modernizat

Detalii spațiu comercial

ID anunț: XB8Q040JC Copiat! 274278715 Copiat!
Actualizat în: 25 Februarie 2026
Regim înălțime: P+1E
Stadiu construcție: Există
Suprafață teren: 1000 mp

Utilități

Utilități
Gaze Curent Apă

Vecinătăți:

Rond Uricani

Subspații disponibile

Spatiu 369mp, Rond Uricani, aproape de Metro

Chirie / u.m. / lună:
7 EUR/mp (total: 2583 EUR/lună) + TVA
Înălțime spațiu (m):
7.5
Suprafață disponibilă:
369
Disponibilitate spațiu:
imediat
Etaj:
Parter / 1
Vitrină:
Da
Posibilitate parcare:
Da

Puncte de interes

Mijloace transport
bus-station
Statia "Troita", linia 20
Stații autobuz aprox. 1714 m
bus-station
Statia "Antibiotice", linia 20
Stații autobuz aprox. 1777 m
bus-station
Statia "Daewoo", linia 20
Stații autobuz aprox. 1936 m
Școală
school
Scoala Noua
Școli aprox. 1752 m
Recreere
sports-ground
stadion
Terenuri sport aprox. 294 m
sports-ground
Teren sportiv
Terenuri sport aprox. 1620 m
restaurant
Stef
Restaurant aprox. 1694 m
supermarket
Carrefour Era
Supermarket aprox. 1986 m

Proprietăți recomandate

Detalii de contact

Abonează-te la newsletter să fii primul care primește cele mai noi recomandări de proprietăți și sfaturi de la experți.

CONTACT

Creează alertă

Salvează căutarea ca să primești pe email ultimele anunțuri publicate

Spații comerciale de închiriat în zona Exterior Vest, Iași